马略卡岛帕尔马的历史中心,位于Carrer de Sant Magi的一栋三层楼的建筑改造平衡了对现有的恢复和更新的需求。两个豪华公寓位于上层,而一个协同工作空间占据了底层。
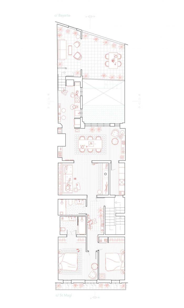
Palma de Mallorca’s historic center, a three-story building renovation in Carrer de Sant Magi balances recovery of the existing with a need for updating. Two luxury flats are located on the upper floors, while a coworking space occupies the ground floor.




圣马吉协同工作。办公设施横跨建筑的宽度,同时向街道和后面的室内庭院开放。这个横向体量的慷慨是通过努力开放这些以前封闭的空间而实现的。整体操作被室内和室外的植被所点缀,创造了不同程度的隐私。为满足用户的需求,提供了多种工作方案。
COWORKING SANT MAGÌ. Coworking facilities span the width of the building and open simultaneously to the street and to an indoor patio at the back. The generosity of this transversal volume is accomplished by an effort to open these formerly closed-up spaces. The overall operation is punctuated with indoor and outdoor vegetation that creates varying degrees of privacy. A variety of working options are available to meet the needs of users.




该方案容纳了一个开放的空间,有一个定制的木质接待台、舒适的焦点展位、思考台,以及一个独立的会议室、一个额外的工作间和一个与天井相连的寒暄区。物质性承担了主导作用。当地材料的使用平衡了中立性和独特性,而彩色元素的加入则为空间增添了现代感。在主要的工作区,回收的当地马列斯墙与木材定制的家具和坐垫亭的柔软性和谐地搭配在一起。
The program accommodates an open space with a bespoke wood reception desk, comfortable focus booths, thinking desks, as well as an independent meeting room, an extra work room, and a chill area connected to the patio. Materiality assumes a leading role. The use of local materials balances neutrality with uniqueness, while the addition of colorful elements adds a contemporary feel to the space. In the main workspace, the recovered local marès wall harmoniously plays with the softness of the timber custom-made furniture and the cushioned booths.




圣玛吉住房。为了加强当地遗产的传统形态,每个家庭空间都占据了一整个楼层。虽然它们有相似的特点,但公寓对建筑的亲密性表现出不同的程序化方法。一楼的公共区域被安排在小区的后面,面向天井,以获得宁静。相比之下,二楼公寓的公共空间面向Sant Magì的主要街道,而套房则俯瞰着天井。
HOUSING SANT MAGÌ. In order to enhance the traditional morphology of the local heritage, each domestic space occupies an entire floor. Although they share similar characteristics, the apartments display a different programmatic approach toward the building’s intimacy. First-floor common areas are organized towards the back of the plot, facing the patio for peace and quiet. In contrast, the second-floor apartment common spaces face the main street of Sant Magì, while the suite overlooks the patio.


珍惜岛上的风格,公寓的设计很简单。其定制的特殊功能是它们相互之间的区别。位于一楼的第一套公寓的起居区有一个定制设计的壁炉。在二楼,你可以找到一个中央客房,其拱形的钢架和玻璃墙给空间带来精致的氛围。望向天井的室外露台在城市的中心创造了一片绿洲。这是一个独特的空间,可以放松和享受可爱的地中海天气。响应审美和程序化的目的,天井向天空开放,让建筑在夏天自然凉爽。
Cherishing the island’s style, the flats are designed with simplicity: Its bespoke special features are what sets them apart from one another. Located on the first floor, the living area of the first flat accommodates a custom-designed fireplace. On the second floor, you can find a central guest room with an arched steel frame and a glass wall that gives the space a refined atmosphere. The outdoor terraces looking towards the patio create an oasis in the center of the city. It is a unique space to relax and enjoy the lovely Mediterranean weather. Responding to aesthetic and programmatic purposes, the patio opens up to the sky and allows the building to naturally cool during summer.




















Architects: BARRI Studio
Area : 459 m²
Year : 2022
Photographs :José Sanchez Masterton, Pauline Personeni
Manufacturers : JUNG, ETHNICRAFT, FARO Barcelona, HAY, INCLASS, Marset, Menu, Nemo Lighting, Viccarbe, FLOS, Gofi, Santa & Cole
Lead Architects : Jordi Barri Segon, Xavier Zanuy Justribó
City : Palma
Country : Spain