我们有机会在圣罗莎市设计一座混合用途的建筑,这个小镇位于与阿根廷的边界附近。它的水平景观以周围的农田为标志,这些农田仍然塑造着城市的可见界限。在过去的十年中,大量的新建筑出现,用大多与城市生活和身份相悖的结构改变了城市的形状。
The opportunity came for us to design a mixed-use building in the city of Santa Rosa, a small town located near the border with Argentina. Its horizontal landscape is marked by the surrounding farming fields, which still shape the visible limits of the city. In the last decade, a great number of new buildings have emerged, transforming the shape of the city with structures mostly alien to its urban life and identity.






我们所面临的挑战正是要开发一个公寓楼项目,使其能够对城市产生积极的动力,同时提供一个不只是通过平方米来评估的居住场所。
The challenge we took was precisely to develop a project for an apartment building able to generate a positive dynamic towards the city while offering a place to live that would not be assessed merely by means of square meters.

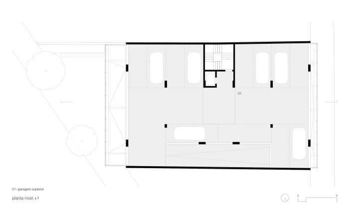
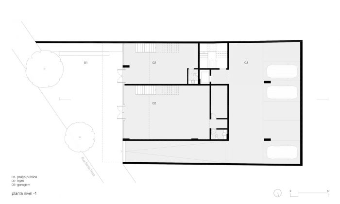
我们决定利用场地的不规则形状和它有两个开放面的事实--面向不同的街道--将建筑的体量集中在它的北部,以便在它的南部边缘为一个小公共广场创造空间。街道之间的水平差异使我们能够在建筑的底部创建两个商业店铺,直接从广场进入,吸引人们并创造一个活力的节点。作为一个结果,我们成功地打破了人行道上的狭窄和持续的中性体验,通常被沿街的栅栏和墙壁所阻挡。广场扩大的空间旨在成为人们在本土树木的阴影下聚会的场所,成为城市生活的露天客厅。
We decided to use the site’s irregular shape and the fact that it had two open sides – facing different streets – to concentrate the mass of the building on its northern portion in such a way to generate space for a small public square on its southern edge. The level difference between the streets allowed us to create two commercial shops on the base of the building, accessed directly from the square, attracting people and creating a node of vitality. As an outcome, we managed to break the narrow and continuously neutral experience along the sidewalk, usually blocked by fences and walls along the street. The square’s expanded space is meant to become a place for people to meet under the shadow of the native trees, an open-air living room for city life.

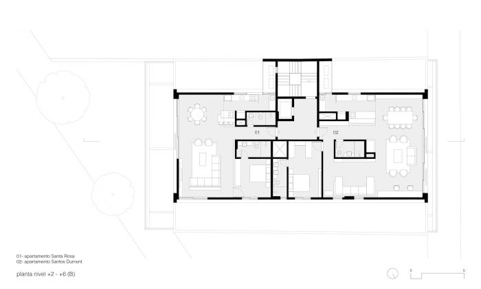
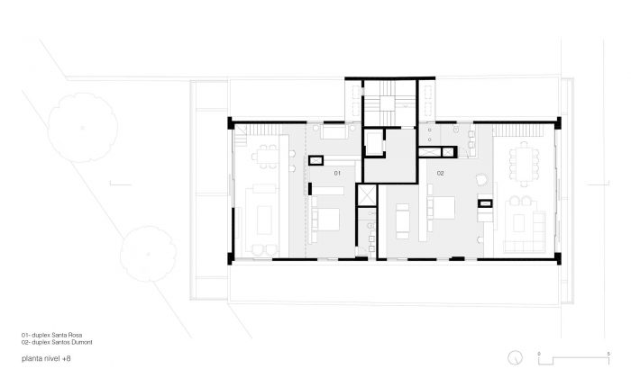
住宅通道通过几米高的对立街道,在那里我们也创造了一种外部大厅。面对人行道,一块木板隐藏了技术、存储和停车区的入口,所有这些都位于建筑的两层基座内。在它上面,耸立着一座塔楼,12套公寓成对分布,每套公寓都面向其中一条街道。为了创造具有自由感的优雅生活空间,我们将所有需要严格定位的用途集中在垂直循环轴上。
The residential access is made through the opposing street a few meters above, where we also created a sort of external hall. Facing the sidewalk, a wooden panel hides the entrances for technical, storage and parking areas, all situated within the two-storey base of the building. Above it, a tower rises with twelve apartments grouped in pairs, each facing one of the streets. Trying to create elegant spaces to live with a sense of freedom, we concentrated all uses demanding rigidity of position around the vertical circulation axis.

这使得为生活和卧室创造更宽广和更灵活的空间成为可能,其分布可以随着时间的推移而改变。塔楼四角有四根强有力的柱子,这使得外墙上的窗户变得宽大--城市的景色通过膨胀金属的滑动百叶窗穿透进来。在建筑顶部创建了一个露台,这样建筑也可以成为一个小社区,当太阳躲在大豆田的地平线后面时,聚集在一起观看。
That made possible the creation of wider and more flexible spaces for living and bedrooms, whose distribution can be changed over time. The structure with four powerful columns on the tower’s corners allows windows to grow wide on the façade – where views of the city penetrate through the sliding louvers of expanded metal. A terrace was created on top of the building, so that the building could also become a small community, gathered to watch as the sun hides behind a horizon of soybean fields.
















Architects: Atelier Kohlmann Lorentz
Area : 31215 ft²
Year : 2020
Photographs :Marcelo Donadussi
Lead Architects : Rafael Lorentz
Interior Design : Andrya Kohlmann
Work Monitoring : Heinz Lorentz e Tony Lorentz
Structural Designers : L2 Projeto Estrutural
Hydraulic Project And Electrical Installations : Walter Lorentz
Work Execution : Lorentz Construções
Country : Brazil