建筑始终是转型。最好是向好的方面发展。但并不总是如此。
我以前去过那里,但只是为了看看圣科斯梅农场。还有一块岩石,坐在一个战略位置上,风景很好。我又去了那里。他们想整修一座早已被遗弃的老房子。
Architecture is always transformation. Preferably for the better. But not always.
I had been there before, but just to see the São Cosme farm. And a rocky outcrop, sitting in a strategic location with great views. I went back there. They wanted to refurbish an old house that had long been abandoned.



我甚至都不记得这所房子了,因为之前那块宏伟的花岗石已经夺走了我所有的注意力。这座房子是为看守人建造的。它是用各种材料混合建成的。切割石头的石匠是个好手,石制品也有一定的质量。然而,负责混凝土工程的建筑大师却留下了他无能的证据。
I didn’t even remember the house, as previously the magnificent granite outcrop had claimed all my attention. The house had been built for the caretakers. It was built in a mixture of materials. The stonemason, who cut the stone, had been good and the stonework showed some quality. However, the master-builder responsible for the concrete work had left evidence of his incompetence.

遗弃是一个糟糕的建筑商,迅速破坏了已经完成的工作。无论是坏的部分还是好的部分。农业建筑的状况稍好,因为它们没有被遗弃,这是积极的东西。
Abandonment is a bad builder that rapidly destroys what’s been done. Both the bad parts and the good. The agricultural buildings were in slightly better condition as they hadn’t been abandoned, which is something positive.

我已经认识了客户,因为我们以前一起做过其他项目。项目简介相对简单,但也有一定的复杂性。这种复杂性是由于陡峭的山坡和现有的各种建筑分布在不同的梯田上。
I already knew the Client, as we’d done other projects together before. The brief was relatively simple, but with a degree of complexity nonetheless. This complexity was a result of the steep slope and because the various existing buildings were spread over different terraces.

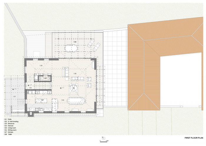
我马上就想做一个倒置的房子。上面是客厅,下面是卧室。起初,人们对这个想法有些担心。这个项目经过准备、讨论,并立即进行了施工。这就是我喜欢的方式,也是它的乐趣所在。
Right away I wanted to make an upside-down house: Living Rooms above and Bedrooms below. Initially, there was some apprehension about this idea. The project was prepared, discussed, and went on to be constructed immediately. That’s how I like it to be and what makes it fun.



拆除工作揭示了美好和不美好的惊喜。屋顶,直到那时还隐藏着,完全是用桉树建造的,而且状况良好,因为没有任何白蚁或真菌的证据。与桉树这种具有挑战性的木材结构一样,木材上有很多扭曲和裂缝。这是木材的特性,总是在工作。
The demolitions revealed both nice and not-so-nice surprises. The roof, up until then hidden, was fully constructed in eucalyptus and was in reasonable condition, as there was no evidence of any termites or fungi. As usual with structures in eucalyptus, a challenging species of wood, there were a lot of twists and cracks in the timbers. It’s the nature of wood to be always working.

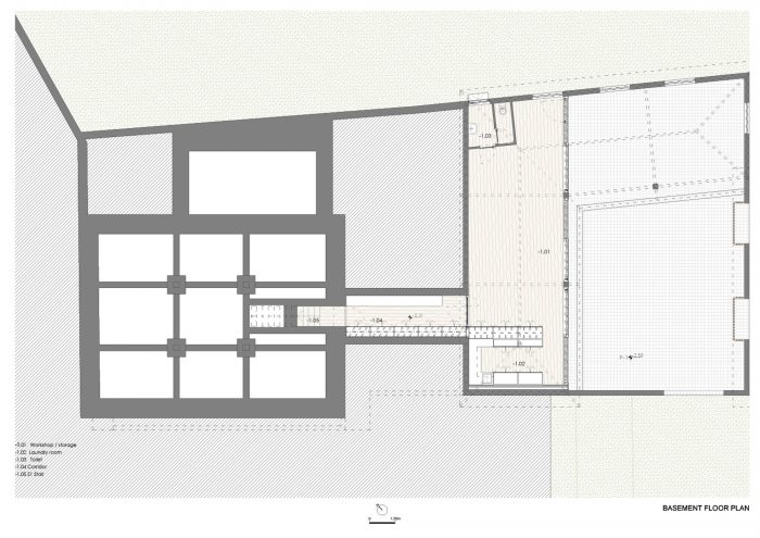
在较低的楼层,即半地下室,他们在地基上做了些手脚,所以这些地基必须要重新设计。因此,我们利用这个机会略微降低,以增加房间的高度。轻质楼板在各方面都很轻。在加固方面,甚至在实际的混凝土方面。非常轻。它必须被加固,甚至在这里和那里被替换。
On the lower floor, a semi-basement, they had scrimped on the foundations, so these had to be re-invented. So, we took the opportunity to go slightly lower, in order to increase the room height. The lightweight slab was light in all aspects. In the reinforcement and even the actual concrete. Very light. It had to be reinforced and even replaced here and there.



在上面,屋顶结构只是坐在四面外墙上。就像这样,没有任何修饰。窗户在光线和通风方面都令人满意,符合商定的布局。它们符合所需的要求。有以前开窗和后来关闭的痕迹。可能的改正或调整。我们清除了我们认为过分的东西,我们打开了很多。因为窗户的存在不仅仅是为了满足照明和通风的需要。它们还必须把外面的东西带进来。当然,我们希望能一直生活在户外。
Up above, the roof structure simply sat on the four outside walls. Just like that, with no frills. The windows were satisfactory both in terms of light and ventilation in accordance with the agreed layout. They corresponded to what was needed. There were traces of previous openings and their later closing up. Possible corrections or adaptations. We cleared away what we thought excessive and we opened up a lot. Because windows are not there solely to satisfy the need for illumination and ventilation. They must also bring the outside in. Of course, we would like to live outdoors all the time.


我增加了一个新的体量,即主卧室,在此之上还有一个露台,直接与客厅相连。阳台和悬架使我们能够控制光线水平,以及控制降雨。一条隧道将房子和低层的新体量连接起来,洗衣房、车间和停车场就设在这里。这实际上是房屋的服务入口,并连接着所有的楼层。
I added a new volume, the Master Bedroom, and above this a Terrace, directly connected to the Living Room. Verandas and overhangs allow us to control light levels, as well as controlling the rainfall. A tunnel connects the House with the new volume at the lower level, where the Laundry, Workshop, and Car Parking are located. This is, in fact, the service entrance for the House, and connects all the floors.

屋顶结构得到了修复和稳定。添加了一些钢筋来加强连接。稳定器。我们将木材用于新的结构和悬挑,用于天花板,也用于窗框。
The roof structure was repaired and stabilized. Some steel was added to reinforce connections. Stabilizers. We used timber for the structure of the new volume and the overhangs, on the ceilings, and also for the window frames.

起居室是一个宽敞的空间,一切都在这里发生。或者说几乎是全部。厨房、起居室、交流室,甚至一个小厕所都位于这个空间,在四面倾斜的天花板下。楼下有三间卧室。洗手间。
The Living Room is a generous space where it all happens. Or almost all. The kitchen, Living, Circulation, and even a small Toilet are located in this space, under the four-sided, pitched ceiling. Three Bedrooms downstairs. Bathrooms.

外面的区域被美化了,因为它不再只是用于农业。卧室前面的打谷场被修复了。在天井和小路上铺设了鹅卵石。一切都经过设计。大部分的设计是在现场完成的。我喜欢这样。所有的项目都应该是这样的。没有其他的,总是负面的意见。当我们回到那里的时候,就好像,它已经是这样的年代了。但已经发生了实质性的转变。为了更好的发展。这就是建筑学应该有的样子。
The outside area was landscaped, as it is no longer just for agriculture. The threshing floor in front of the Bedrooms was repaired. Cobbles were laid in the Patios and Pathways. Everything was designed. Much of the design was done on-site. As I like it. All projects should be like this. Without other, always negative, opinions. When we go back there, it’s as if, it has been this way for ages. But a substantial transformation has taken place. For the better. This is the way Architecture should be.

现在,我们将把注意力转移到这个突出的地方,因为它看起来像是有人想在上面建房子。
Now we will turn our attention to the outcrop because it looks like someone wants to build a house on it.
























Architects: Carlos Castanheira
Area: 374 m²
Year: 2021
Photographs: Fernando Guerra | FG+SG
Manufacturers: - A. Sousa Alves, Revestimentos de Zinco e Cobre, Lda.
Structural Engineer: HDP – Construction and Engineering Projects Lda.
Carpentry: Carpincunha Madeiras Lda
Architect:Carlos Castanheira
Project Coordinator:Rita Ferreira, Mariana Mendes
Project Team:Sofia Conceição, Maria Arez
Portugal Office:CC&CB – Architects Lda
Metalwork:Obvicerto - Unipessoal Lda
City:Vila Nova de Famalicão
Country:Portugal