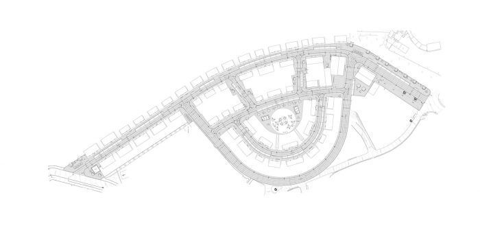
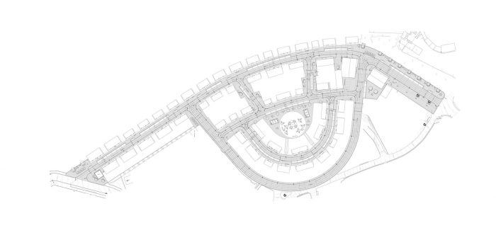
São João de Deus的社会住宅区最初是按照英国 "花园城市 "运动的设计参数进行调整的:小规模的建筑,以零散的方式合理地排列在地面上,遵循地形的性质,适应阳光的照射,配置在一个同心的平面上。
The social housing neighbourhood of São João de Deus, was originally adapted to a layout that followed the British design parameters of the ‘Garden City’ movement: small scale buildings, arranged rationally and in a fragmented way over the ground, following the nature of the topography and adapting to sun exposure, configured in a concentric plan.





随着时间的推移,街区发生了巨大的变化,失去了其起源的特征,改变了其主要的城市和类型,并以无政府和非正式的方式进行了一般性的建设,造成了严重的居住和社会破坏。
Over time, the neighbourhood has undergone dramatic alterations that have lost the character of its origins, changed its main urban and typological qualities, and generalised construction in an anarchic and informal way, causing serious residential and social damage.

从城市的角度来看,修复项目提出要重新定位街区原有的设计特征,特别是加强容积尺度、公共空间、自然空间以及景观和地形环境之间非常平衡的关系,这一点在20世纪40年代进行的干预中可以看出。
From an urban point of view, the restoration project proposes to reposition the original design characteristics of the neighbourhood, in particular enhancing the very balanced relationship between the volumetric scale, the public, and natural space, and the landscape and topographical context that can be seen in the intervention carried out in the 1940s.

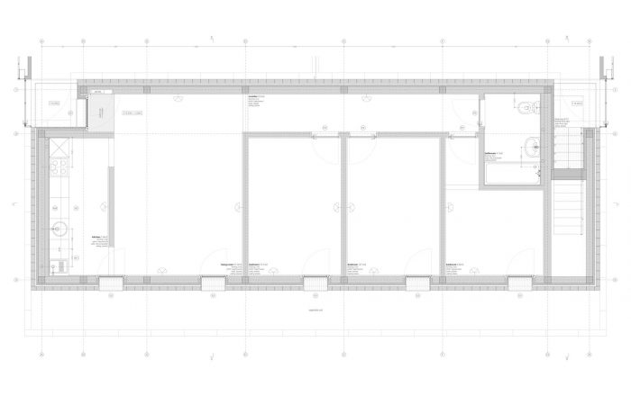
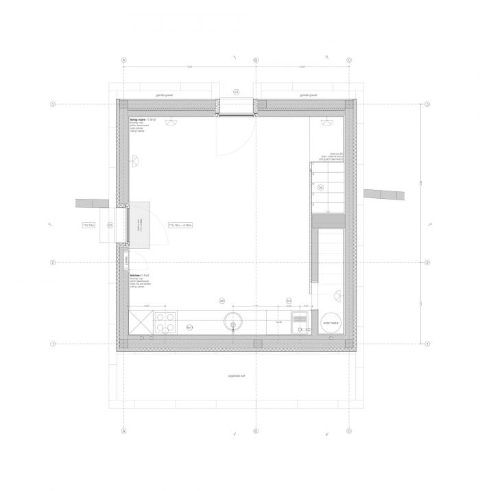
对现有建筑的改造,恢复了它们原有的体积尺度,赋予它们一个当代的形象,这不是任意的,而是改造其空间和形式的建筑选择极端合理性的结果。
The transformation of the existing constructions restores their original volumetrics, giving them a contemporary image that is not arbitrary but the result of the extreme rationality of the constructional options for the transformation of its space and form.

原有类型的重新配置是为了实现更大的居住面积,更高的质量,更大的空间灵活性,并适应当前的规定的公寓。在对建筑进行改造的同时,也对整个公共空间进行了重新设计。
The reconfiguration of the original typologies was developed in order to achieve apartments with a larger living area, of higher quality, with greater spatial flexibility, and adapted to the current regulations. This process of renovating the buildings was accompanied by a redesign of the entire public space.

与规模经济原则相关联的技术决策,对建筑和建筑元素(主要和结构)的彻底维护至关重要,形成了现有核心区改造的可持续本质。
The technical decisions associated with a radical principle of economy of scale, of what is essential to the construction and the thorough maintenance of its built elements (principal and structural) formed the sustainable essence of the transformation of the existing core:

在所有的开口处连续使用一个跨度(现有的跨度),这涉及到相同的门窗细节重复700多次,在标准的木质型材中;整体维护结构石的外墙,以及木质屋顶支撑。对屋顶结构进行重新覆盖,采用轻质系统(以免现有木质支撑过重)的防水和保温层,由一层PIR+沥青布组成,表面用黑色石板装饰,增加重力排水系统,避免整个建筑群对水力基础设施的需求;对外墙进行强力保温,加强厚石结构的热惯性,表面用白色热石膏装饰。
Continuous use of a single span (the existing span) for all openings, which involves the repetition of the same window and door details more than 700 times, in standard wooden profile; Integral maintenance of the external wall of structural stone, as well as the wooden roof supports; Re-covering of the roof structure with a light system (so as not to overload the existing wooden supports) of waterproofing and insulation, formed of a layer of PIR + asphalt fabric, finished with black slate, adding a gravitational drainage system that will avoid the need for hydraulic infrastructures throughout the complex; Strong insulation of the external walls, strengthening the thermal inertia of the thick stone structure, finished in white thermal plaster.

新建筑的建设完成了南面从未完成的建筑群的建立,并使可用房屋的数量增加,尊重了早期建筑和城市背景的规模。新建筑的规模、语言和在地面上的位置都是基于原项目的构成和类型学假设。
The construction of the new buildings completes the establishment of the complex that was never finished to the south and allows for an increased number of available houses, respecting the scale of the earlier architectural and urban context. The scale, language, and position on the ground of the new constructions are based on the compositional and typological assumptions of the original project:

平行管道的体量适应了现有的地形,它们使用了综合体中已经使用的相同的窗户,并在城市综合体和南部的景观之间创造了一个有机的过渡(使用裸露的砖块),仍然是乡村的和期待的。
The parallelepiped volumes adapt to the existing topography, they use the same window already used in the complex and create an organic transition (using exposed brick) between the urban complex and the landscape to the south, still bucolic and expectant.











































建筑师:Brandão Costa
面积:7805平方米
年份:2019年
摄影师:Francisco Tavares Ascensão,André Cepeda
制造商: CIN, Cinca, Gercima, Knauf, Robbialac, Soprema, Cimenteira do Louro, Forbo, Spirella
负责建筑师:Nuno Brandão Costa
小组协调员:Rita Leite、Charlotte Jeanjean、Francisco Pereira、Inês Loureiro、João Fânzeres、Maria Souto Moura、Mariana Santos、Maria Pathé
电气工程:Afaconsult
城市:波尔图
国家:葡萄牙
Architects: Brandão Costa
Area: 7805 m²
Year: 2019
Photographs:Francisco Tavares Ascensão,André Cepeda
Manufacturers: CIN, Cinca, Gercima, Knauf, Robbialac, Soprema, Cimenteira do Louro, Forbo, Spirella
Architect In Charge:Nuno Brandão Costa
Team Coordinators:Rita Leite, Charlotte Jeanjean, Francisco Pereira, Inês Loureiro, João Fânzeres, Maria Souto Moura, Mariana Santos, Maria Pathé
Electrical Engineering:Afaconsult
City:Porto
Country:Portugal