80平米的阁楼应该完全符合客户年轻单身的生活方式。另一个需要解决的问题是,该房产是租来的。考虑到这些事实,我们决定设计公寓中的大部分家具,以便它们可以在其他地方以不同的方式重复使用。
The 80m2 loft should fit perfectly with the way of life of the client who is young and single. Another issue to be addressed was the fact that the property was rented. Considering these facts, we decided to design most of the furniture in the apartment, so that they could be reused in different ways elsewhere.



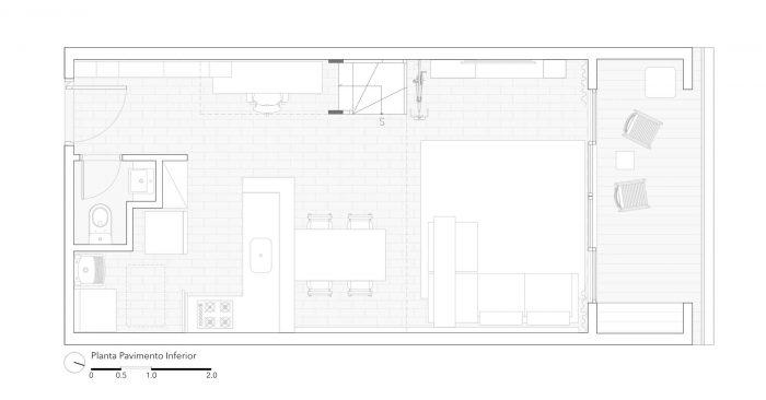
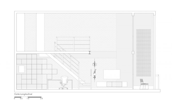
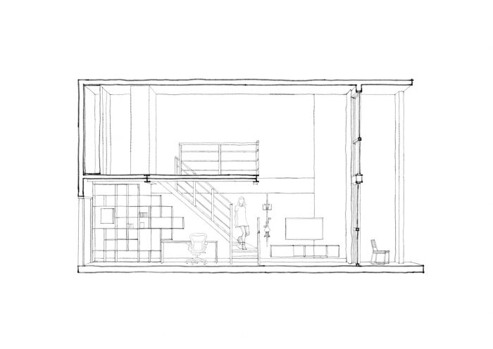
公寓的入口处有一条小走廊,限制了它的使用,因此,我们设计了一个架子,它可以通过个人物品传递住户的个性,同时也是日常使用物品的组织者。同样的架子从梯子上往下推进,它们(架子和梯子)共同创造了一个更加个人化的空间,以便于集中精力和工作,这也是客户的简报所要求的。
The access of the apartment is marked by a small corridor that limited its use, with that, was designed a shelf that could transmit the personality of the resident through personal objects and also be an organizer of objects of daily use. This same shelf advances down the ladder, and together (shelf and ladder), they create a more personal space for concentration and work, as requested by the client's briefing.

下层以及公共空间的开发是为了接待几个人的坐席。沙发除了宽敞之外,还应该是灵活的,因此是模块化的。这套房子还有一个长度为2.00米的梳妆台,此外还可以作为长椅使用。
The lower floor and also the common space was developed to receive several people seated. The sofa beside being spacious should be flexible, and therefore modular. The set also has a dresser of 2.00m in length, which in addition serves as a bench.

阳台应该有助于开会,包含更多的椅子和桌子,可以作为座位,而且在宴请日可以很容易地移到客厅。墙面和结构的材料性保持了未完成的状态,以及通过明显的砖块突出的照明管道,从一开始就保持了所期望的年轻和荒废的气氛。
The balcony should help with meetings, containing more chairs and tables that could serve as a seat and that could easily be moved to the living room on feast days. The materiality of the walls and structure was maintained unfinished, as well as the lighting ducts highlighted by the apparent bricks, keeping the young and despoiled atmosphere desired from the start.















建筑师:Treszerosete
占地面积:80 m²
年份:2017年
摄影:Ana Mello
制造商:Herman Miller, Acier Metálica, DAZZE móveis, Oppa, Tok&Stok
建筑师负责:André Britto, Caio Ferraz, Kamal Yazbek
合作者:Acier Metálica
城市:Itaim Bibi
国家:巴西
Architects: treszerosete
Area: 80 m²
Year: 2017
Photographs: Ana Mello
Manufacturers: Herman Miller, Acier Metálica, DAZZE móveis, Oppa, Tok&Stok
Architects In Charge:André Britto, Caio Ferraz, Kamal Yazbek
Collaborator:Acier Metálica
City:Itaim Bibi
Country:Brazil