该设施是为有心理、身体、社会问题或因成瘾而产生的问题的人提供的住宿、职业和保健中心,旨在为其客户提供一个封闭的、有组织的环境,同时为他们重新融入社会做准备。新设施位于罗纳河谷的果园中,在萨克森村和夏拉特村的中间,与当地的农村结构紧密相连。果园、田地和葡萄园的排列方式决定了建筑及其周围环境的设计。该建筑被纳入这一正交逻辑中。
This facility, a residential, occupational, and healthcare center for persons with psychological, somatic, or social issues or issues arising from addiction, aims to offer its clients a contained, structured environment while they prepare for their reintegration into the community. Located amongst the orchards in the Rhone valley, halfway between the villages of Saxon and Charrat, the new facility is anchored in the rural structure of the locality. The way the orchards, fields, and vineyards are arranged dictated the design of the building and its surroundings. The building is incorporated within this orthogonal logic.




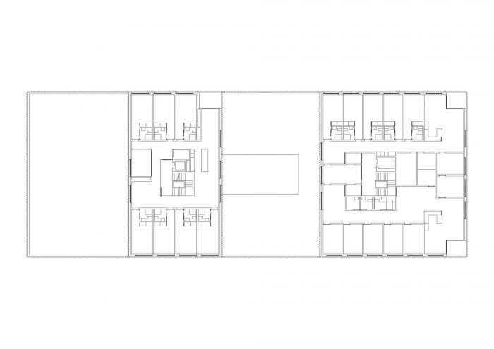
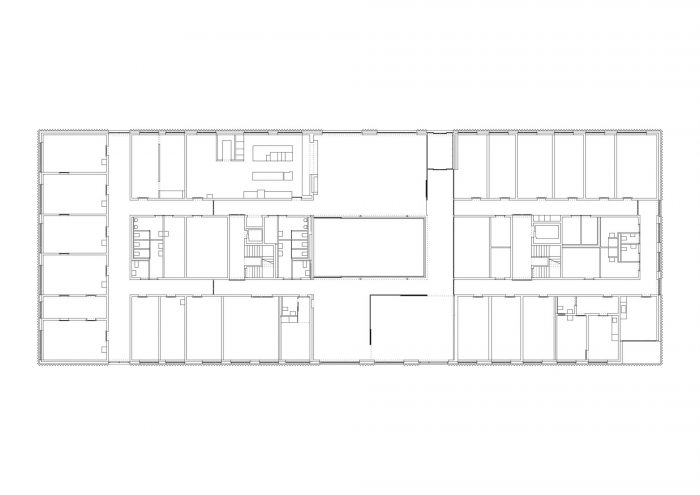
该项目将各种功能聚集在一个屋檐下,体量的剖分构成确定了各个部门。地面层形成了一个大的基座,在中央天井的两侧容纳了公共功能,天井是设施的核心,围绕天井衔接了接待/会议、餐饮和娱乐空间--一个开放、包容和欢快的社交场所。南翼包含行政办公室、保健和管理功能,而北翼则是职业工作室。
The project gathers the various functions under one roof, the dissected composition of volumes identifying the various sectors. Forming a large pedestal, the ground floor houses the common functions on either side of the central patio, the heart of the facility around which articulate the reception/meeting, dining and recreational spaces – a place for socializing that is open, contained, and convivial. The south wing contains the administrative offices and the healthcare and stewardship functions, while the north wing houses the occupational workshops.

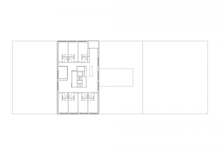
该设施的入口和内部天井的位置是为了保护居民不受山谷中盛行风的影响。住宅空间位于上层--横向排列的是有紧急社会需求的人和短期居住者,纵向排列的是三个长期居住的公寓。因此,这两种类型的住宿是自然分开的,并且可以清楚地识别。住宅单元的功能就像大型的独立公寓,有卧室和一个开放式的厨房、餐厅和休息区,还有一个封闭的阳台。
The entrance to the facility and interior patio is positioned in such a way as to protect the residents from the prevailing wind which ascends the valley. The residential spaces are on the upper floors – arranged horizontally for persons with urgent social needs and short-stay residents, and vertically for the three long-stay apartments. Thus the two types of stay are naturally separated and clearly identifiable. The residential units function like large autonomous apartments with bedrooms and an open-plan kitchen, diner, and lounge area with an enclosed balcony extension.


室内的材料是严格的:可见的混凝土墙,光滑的沥青地板,以及具有大肋骨的金属假天花板。在假天花板和墙面上使用层压松木板,使公寓充满了家庭氛围,而有色玻璃将彩色光线引入公共空间。各个空间都向山谷开放,以享受最有趣的景色,并利用早晨和傍晚的阳光。
The interior materiality is rigorous: visible concrete walls, smoothed asphalt floors, and metallic false ceilings featuring large ribs. The use of laminated pine panels for the false ceilings and wall cladding imbues the apartments with a domestic atmosphere, while the tinted glazing brings colored light into the common spaces. The various spaces are open towards the valley for the enjoyment of the most interesting views and to take advantage of the morning and evening sun.


外立面的大窗户创造了一个有规律的节奏。窗户的开口部分受到穿孔金属表皮的保护,而该表皮是由外墙覆盖的。开口部分从一个楼层换到另一个楼层,在窗户的穿孔处创造出一种交错的效果--这种效果在晚上开灯时消失。包层的深色棱线及其铜色的色调为该设施注入了自己的特色。工业金属的使用是对山谷中的水果机库的一种点头。
The large windows in the façade create a regular rhythm. The opening part of the window is protected by the perforated metallic skin with which the façade is clad. The opening part swaps position from one floor to another, creating a staggering effect in the window piercings – an effect that disappears at night when the lights are on. The deep ribbing of the cladding and its copper hue imbues the facility with an identity all its own. The use of industrial metal is a nod to the fruit hangar in the valley.




























Architects: BW Arch
Area: 3200 m²
Year: 2015
Engineering:Protech SA, TECSA, Philippe Bruchez
Collaborators:Arnaud Zehnder
Work Director:Nunatak architectes Sàrl
Clients:Fondation CAAD
City:Sebnitz
Country:Germany