"美景和光线 "这两个概念对于一个好房子来说应该是兼容的。然而,集体住宅区Pangyo仅由功能逻辑组成,以容纳尽可能多的房屋。
“The great view and the light” These two concepts should be compatible for a good house. However, Pangyo, the collective housing area, is composed only of functional logic to accommodate as many houses as it can.


它有一个封闭的视野,紧挨着南方的其他建筑,而面向北方,从那里可以看到清溪山。因此,这个项目有它的功能限制,如果重要的房间被安排在南方以获得自然的阳光,那么这些房子就不能获得北方的美丽景色。该项目一开始就必须解决这种不兼容的情况。
It has a closed view being next to other buildings in the south, while facing the north from which Cheonggyesan is seen. Therefore, this project had its functional limitation that the houses couldn’t get the beautiful view in the north if the important rooms were arranged in the south for the natural sunlight. The project began with this incompatible situation which had to be resolved.

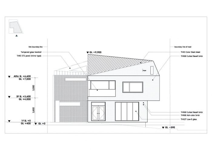
从高处优化分配平面和灯光。主人房和起居室被分配在北方,以捕捉美丽的风景。在这种情况下,平面设计有一个弱点,就是自然光不能进入房间。为了解决这个问题,我们设计了不同的高度,将屋顶分为四个部分,这样光线就可以进入房间。
Optimal allocation of flat surface and lights from a high position. The Master Room and Living Room were allocated in north to capture the beautiful scenery. In this case, the plan design has a weakness that the natural lights do not come into the rooms. To solve the problem, it was designed to have a difference of height, with the roof divided into four parts, so that the light could come into the rooms.

屋顶的高度是不同的,所以灯光从东、南、西不同的角度射进来。由于从窗户射出的自然光,人们有可能感受到建筑内的季节性变化。这是一个光学空间组织,可以克服北侧的物理弱点,并获得最大的太阳光。此外,自动上窗在夏季将室内的热量排到室外,使南面和北面的门窗可以交叉通风。这个项目的设计是基于自然对流,以创造一个生态友好和热效应的空间。
The height of the roof was different, so the lights came in from various angles from the east, south, and the west. It became possible to feel the seasonal changes inside the building thanks to the natural lights coming from the windows. This is the optical space organization that can overcome the physical weakness of the north side and get the maximal sun lights. Moreover, the automatic upper windows discharged the heat inside to outside in summer, making the cross ventilation possible with the windows and doors in the south and north. This project design was based on the natural convection current to make an eco-friendly and heat-effective space.

玄武岩,材料的本质。砖建筑是由每块砖作为一个像素产生的,它揭示了材料的性质以及组合形状。特别是,玄武岩与一般的砖不同,因为人们把宝石加工成砖的形状。因此,玄武岩砖可以保持其玄武岩宝石的基本含义。这个项目的重点是承包玄武岩的特点,包括其粗糙的孔隙和与烧制砖不同的表面。
Basalt, the nature of materials. The brick architecture is produced by each brick as one pixel, it reveals the nature of materials as well as a combined shape. In particular, basalt is different from the general bricks, because people process the gemstone in the shape of a brick. Therefore, basalt brick can keep its essential meaning of basalt gemstone. This project is focusing on contracting the features of basalt including its rough pores and its surface that is different from a fired brick

材料的重新组合--冷、热和中性物质的特性。建筑形式由玄武岩砖、普通砖和不锈钢组成。除了一般的砖,还有大约20000块玄武岩砖,它们是构成粗糙表面的主要材料,根据它们的角度被分成两部分,并在建筑形式上重新组合。玄武岩砖在水平方向上被分配为五部分,范围从5度到45度。此外,它在垂直方向上被分为压花和雕刻部分。
The recomposition of materials- Cold, warm and neutral matter properties. The architectural form consists of basalt bricks, general brick, and stainless steel. As well as general brick, about 20,000 basalt bricks, which are the main material to compose the rough surface, are divided into two parts according to their angles and recomposed on the architectural form. The basalt bricks are allocated horizontally in five parts ranging from 5 degrees to 45 degrees. In addition, it is divided into the embossed and the engraved parts vertically.

两段式玄武岩砖与一般的砖块重新组合,并通过压花和雕刻部分改变了垂直和水平的形式。这些变化是由砖的特征引起的,因为材料在对比中呈现出地层的变化。玄武岩的粗糙孔隙给我们提供了重新组合的表面内的材料的基本信息。砖块通过重新组合的形式揭示了它们的存在,浮雕和雕刻改变了光线的角度。材料被重新组合,图像被重新构造。
The 2-parted basalt bricks are recomposed with the general bricks and changes both the vertical and horizontal form with the embossed and engraved parts. The changes are caused from the features of the bricks as the material presents the changes of strata in contrast. The rough pores of the basalt gives us an essential message of the materials inside the recomposed surface. The bricks are revealing their existence by the recomposed forms with the embossing and engraving that changes the angles of the light. The materials are recomposed and the image is re-structured.















Architects: JOHO Architecture
Area : 128 m²
Year : 2013
Photographs :Namgoong Sun
City:SEONGNAM-SI
Country:SOUTH KOREA