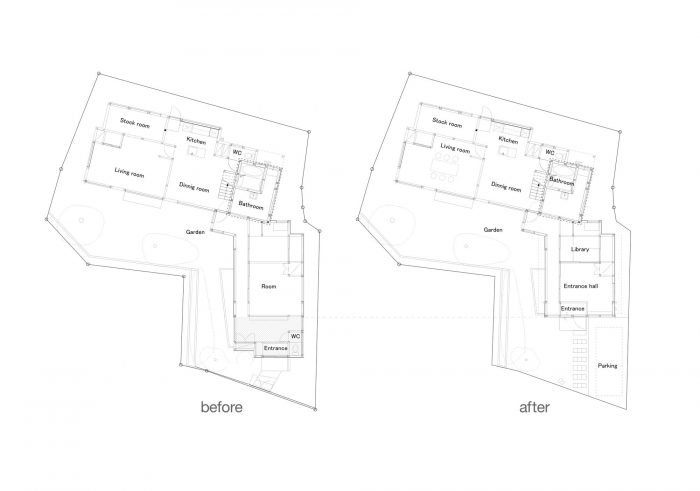
一座有43年历史的木制房屋,根据与业主共同制定的设计进行了翻新。业主有两个家庭成员,4年前搬进了这所房子。他们搬进来的时候,后面的房子大部分都装修好了,只有入口处有一个等待大厅,供编辑们等待前任房主,他恰好是个小说家。尽管等待大厅没有被完全使用,但它却占据了相当大的空间。业主想用这个空间来停车,所以我们决定缩小房子的规模。
A 43-year-old wooden house has been renovated based on the design that was jointly developed with the owner. The owner has two family members and moved in to this house 4 years ago. The majority of the house at the back was renovated when they moved in, except for the entrance, which had a waiting lobby for editors to wait for the previous owner, who happened to be a novelist. The waiting lobby took a decent amount of space despite the fact that it was not used in full. The owners wanted to use that space for parking, so we decided to scale down the house.



即使在翻新后,房子的大部分仍然保持不变,所以这次我们保留了现有的结构,并将新的立面与现有建筑联系起来。外墙的设置是为了追踪房屋的横截面。我们决定用砂浆与旧的结构和简单的设计很好地搭配,这将创造出一种温暖和遗产的感觉。新屋檐板的颜色与现有结构相匹配,以达到一种连续性的感觉。
The greater part of the house remained the same even after the renovation, so this time we preserved the existing structure and linked the new façade to the existing building. The outer wall of the façade is set up to trace the cross section of the house. It was decided that mortar would go well with the old structure and simple design, which willcreate a sense of warmth and heritage. The new gable board color is matched with the existing structure to achieve a sense of continuity.









Architects: ROOVICE
Area :121 m²
Year :2013
Country:Japan