Stöckli,在一些瑞士地区被称为 "Auszughaus",它起源于古老的传统。当农场和所有工作都传给下一代时,即将退休的农民有权把它作为一个家。
The Stöckli, as it is called in some Swiss regions, finds its origins in the old tradition of the ‘Auszughaus’. Retiring farmers are entitled to this as a home when the farm and all its work are passed on to the next generation.



我们遇到了一个家庭,他们非常谨慎地管理自己的农场,热爱自己的工作,并意识到要生产优质产品。Ettershof家园配备了一个宏伟的农舍,在Aare平原的环境中自信而醒目地突出,是独一无二的。农场及其建筑被耕地所包围,使这个地方具有瑞士中部地区很少见的宁静,因为它是集聚式发展的。
We met a family who manages their farm with great care, love of their work, and awareness of producing quality products. The Ettershof homestead, equipped with a magnificent farmhouse that stands out confidently and strikingly in the surroundings of the Aare plain, is unique. The farm with its buildings is otherwise surrounded by the fields to be cultivated, giving this place a tranquility rarely found in Switzerland with its agglomerative sprawl in the midlands.


在这个美丽的风景中增加一座建筑,同时又不破坏其脆弱的魅力,是我们必须为自己设定的任务。不言而喻的是,新建筑必须恭敬地融入景观中,而且必须与现有建筑的质量保持一致。
To add a building to this beautiful landscape, without violating its fragile charm, was the task we had to set ourselves. It was self-evident that the new building had to fit respectfully into the landscape and that it had to do justice to the quality of the existing building.




更加难以想象的是,几十年来从黎明到黄昏不知疲倦地工作的农民们的生活现在要如何改变,使他们能够享受空间和周围的环境,而不是强调工作,并使他们在退休后能够以不同的方式生活,同时保持社区的一部分。
More difficult to conceive of was exactly how the lives of the farmers, who had spent decades working tirelessly from dawn until dusk, were now going to change, to allow them to enjoy the space and their surroundings, without the emphasis on work and to enable them to live differently as they settle into retirement while remaining part of the community.

因此,新建筑的设计正是为了应对这些变化的生活条件。Stöckli明确地试图不成为农庄、喧嚣和工作的一部分。相反,它位于农庄的南部。足够接近,以保持财产的一部分,但不必成为日常事务的一部分。
Therefore, the design of the new building was intended to respond precisely to these changed living conditions. The Stöckli explicitly tries not to be part of the farmyard, the hustle, and the bustle of work. Instead, it is located in the south of the farmstead. Close enough to remain part of the property, but not having to be part of the daily happenings.

虽然老农舍以其规模和宏伟的屋顶形状在景观中具有标志性,但新建筑试图更巧妙地融入广阔的景观中。
While the old farmhouse, with its size and magnificent roof shape, stands iconographically in the landscape, the new building attempts to fit more subtly into the expansive landscape.

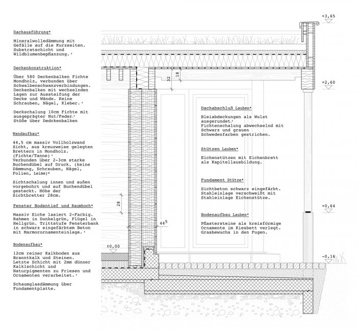
尽管老农舍通过其规模和形式保持着一种独特的风格,但除了照明之外,它在内部空间方面并没有对周围环境进行任何参考。这些需求在1808年建造时并不相关。相反,新建筑将自然、景观的存在作为其主题。房子里的所有房间都是沿着南边的围墙方向,或者通过结构性的开口包括这个参考点。
Although the old farmhouse holds a distinctiveness through its size and form, it does not make any reference to its surroundings in terms of interior space, except for lighting. These needs were not relevant at the time of construction in 1808. On the contrary, the new building makes the presence of nature, of the landscape, its theme. All rooms in the house are oriented along an enfilade to the south or include this reference point via structural openings.

所有的窗户都从地板延伸到天花板,使周围的环境几乎可以到达房子的内部。草地上的花朵只被铺设了图案的凉亭保持着舒适的距离。这些凉亭由橡木柱子覆盖和支撑。一方面,这些柱子是景观和室内之间的重要空间,另一方面,它们向南和向北创造了一个强大但不激动的屏蔽存在。因此,房子甚至对远处的观察者和徒步旅行者来说也变得可见,但却与农舍保持了一个有尊严的距离。
All windows span from floor to ceiling and allow the surroundings to almost reach up to the house interior. The flowers of the meadow are kept at a comfortable distance only by the arbors, which are paved in patterns. These arbors are covered and supported by oak pillars. On the one hand, the pillars are an important space between the landscape and the interior, and on the other, they create a powerful but unagitated shielding presence to the north and south. The house thus becomes visible even to a distant observer and hiker but keeps a dignified distance from the farmhouse.










Architects: Meier Unger
Area : 105 m²
Year : 2019
Photographs :Philip Heckhausen
Lead Architects : Jan Meier, Lena Unger
Structural Design : Schnetzer Puskas Ingenieure
Shell Construction : Küng Holzbau
City : Selzach
Country : Switzerland