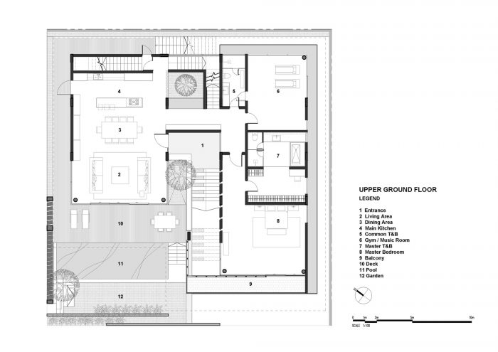
这座位于菲律宾奎松市一个私人村庄的热带住宅通常被视为 "屏风屋",是为一对夫妇(都是商人)和他们的两个孩子(都在上大学)组成的小家庭设计的。屏风房将是这个家庭的第二所房子。他们觉得他们的第一个房子不足以满足他们不断增长的生活方式,所以他们决定建造第二个房子。这一次,根据他们想要实现的生活方式,解决了一个新的设计概要;一个符合热带风情的、放松的氛围,以及更大的空间。这导致了 "屏风屋 "的构思。
Often regarded as the “screen house”, this tropical home in a private village in Quezon City, Philippines was designed for a small family of 4— the couple, both businessmen, and their two children who are both in college. The Screen house will be the second house of the family. They felt that their first home was inadequate for their growing lifestyle, so they decided to build a second house. This time, addressing a new design brief according to the lifestyle that they want to achieve; a tropically responsive, relaxing vibe, and bigger spaces. This resulted in the conception of the “Screen House”.





新房子坐落在一块长方形的土地上,略微倾斜,三面都是邻居。该地块的正面向西开放,街道对面种植的一系列茂盛的树木成为这个项目的视觉焦点。为了利用西侧的焦点景观,建筑师的解决方案是将房子的空间朝向西侧,并引入全高的窗户,以保持空间与街对面茂密树木的视觉联系。然而,面临的挑战是,由于房子将朝向西方,它将接受刺眼的光亮,自然会导致过度的热增益。
The new house sits on a rectangular lot, slightly sloping and bounded by neighbors on its 3 sides. The site’s frontage opens to the west where an array of lush trees planted on the opposite side of the street becomes the visual focal point for this project. To take advantage of the focal view on the west side, the architects’ solution is to orient the spaces of the house to face west and introduce full-height windows to preserve the visual connection of the spaces with the lush trees across the street. The challenge however is that since the house will be oriented facing west it will receive the harsh gleam that naturally results in excessive heat gain.



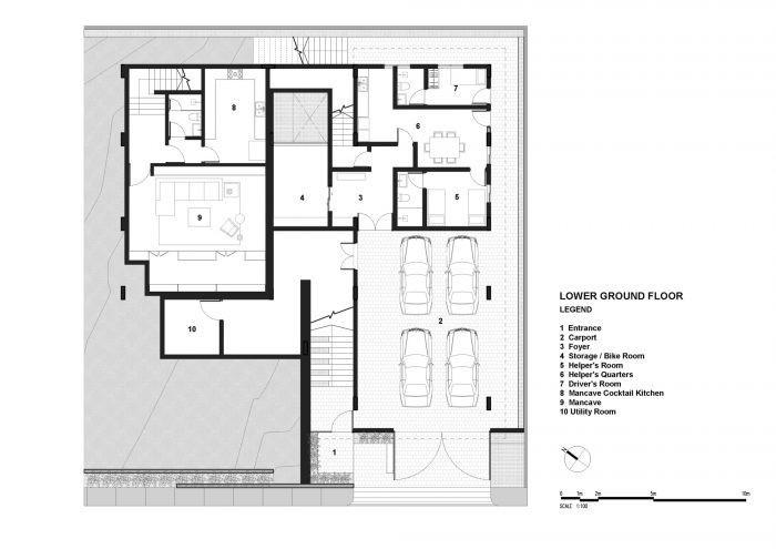
作为回应,建筑师引入了过度延伸的屋檐和木制百叶窗,作为外墙的一个桥顶。添加这些百叶窗主要是为了过滤进入房屋的正午阳光,但仍然提供足够的内部视野。次要的目的是将用户遮挡在公众视线之外,这些屏风在保持房屋自然通风的同时提供了内部隐私。这种由当地柚木制成的面纱主要是对建筑师认为是项目的难题的回应。为了进一步提高隐私性,所有的主要空间都被抬高,远离路人的注视。所有的服务区都放在地下低层,与街道水平相接,同时部分嵌入地下。放在这一层的辅助空间成为地面上层主要区域的基座,而二层则保留给家庭区域和其他卧室。所有这些设计技术都给人以清晰的视觉效果,同时使内部免受强烈的热量和公众视野的影响。
As a response, the architects introduced overly extended eaves and timber louvers that act as a brise-soleil in the facade. These louvers were primarily added to filter the midday sunlight into the house but still provide adequate vision from the inside. With the secondary intent to obscure the users out of public view, the screens provide privacy inside whilst keeping the house naturally ventilated. This veil of locally sourced teak wood is mainly a response to what the architects consider as the puzzle aspect of the project. To further heighten privacy, all the main spaces were elevated away from the gaze of passersby. All the service areas are put on the lower ground floor which meets the street level while being partially embedded underground. The ancillary spaces put at this level become a pedestal for the main areas on the upper ground floor while the second floor is reserved for the family area and the other bedrooms. All these design techniques give a clear vision to the line of trees fronting the property while shielding the inside from intense heat and from public view.



被木头和石头包裹的外观,吸引了那些希望自己的家有永恒但温暖氛围的客户。其外部景观的组成部分在生活空间之间的口袋里稀疏地进行着。室内主要保持开放,但郁郁葱葱的景观和砾石床被用来创造视觉分隔,暗示着从一个区域到另一个区域的过渡。用当地制造的家具来完成这个房子,辅以手工挑选的配件,完美地满足了客户的要求,使他们的家充满了活力和温馨的感觉。
The exterior, enveloped in wood and stone, appeals to clients who wanted a timeless but warm vibe to their home. The components of its exterior landscapes are sparsely carried out in pockets between the living spaces. The interior is kept predominantly open but lush landscaping and beds of gravel were used to create visual separation, implying the transition from one area to another. Finishing the house with the addition of locally made furniture, complemented by hand-picked accessories perfectly suited the request of the clients to complete a vibrant yet welcoming feel to their home.











Architects: PXP Design Workshop Co
Area : 700 m²
Year : 2022
Photographs :Greg Mayo
Manufacturers : Aoceres, Kaufmann, Kblanco, LIXIL
Lead Architects : Patrick Espiritu, Spencer Sy
Landscaping : Plontur
Program / Use / Building Function : Residential
City : Ciudad Quezon
Country : Philippines