这座醒目的木质结构矗立在塞比区一个紧密包裹的新建筑区的边缘。由于通过相对较小的转角处的微妙的山坡位置,它很容易通过直接与北面接壤的人流密集的街道到达。为了死守这个位置,该建筑是一个内敛的四合院,有其他触发点。
The striking wooden structure stands on the edge of a closely parceled-out new building area in Sebi. Due to a subtle hillside location through the relatively small corner property, it is easily accessible via a heavily frequented street that borders directly to the north. In order to die in this position, the building is an introverted courtyard house with other trigger points.



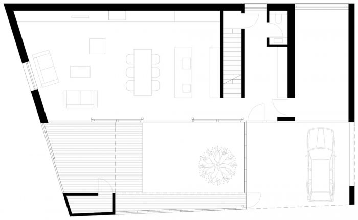
建筑物的核心:一个受保护的、功能性的内院。围绕他自己的房子。可选的是,它可以用木制滑动元件做成相同的或封闭的,可用于立面的占用和同质化的外部景观。因此,在阳光明媚的日子里,北面的通道有机会将大自然带入屋内,并在必要时迅速得到它。
The heart of the building: a protected, functional inner courtyard. Around him himself the house. Optionally, it can be made the same or closed with wooden sliding elements that can be used in the façade occupations and for homogeneous exterior views. Thus north access the opportunity to bring nature into the house on sunny days and to get it quickly if necessary.




该建筑采用高度隔热的木材建筑工艺。外壳完全采用粗锯冷杉作为 "开放式 "公共模板。入口处有盖的潜力和露台也是以杉木为整体,作为计划中的 "封闭 "平滑表面的发展。
The building is in highly thermally insulated timber construction processes. The outer shell is completely in rough sawn fir as "open" public formwork. The covered potential at the entrance and the terrace are also in fir overall as planned, "closed" smooth surface developments.









Architects: Architekt Torsten Herrmann
Area: 172 m²
Year: 2019
Photographs: Adolf Bereuter
City:SEBI
Country:Austria