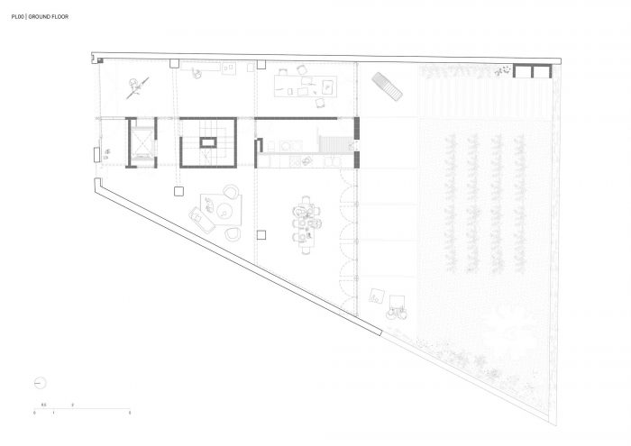
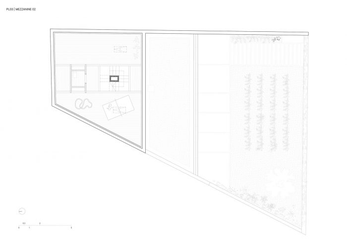
该项目建议对一个农业仓库进行改造,重新规划为一个 "高级 "同居区。为了在同一建筑中容纳两个家庭单位,我们研究了每个家庭的生活方式。这使我们能够根据每种用途来规划和重组空间,具体到每个时刻所需的集体化程度。个人、夫妇、集体、甚至邻里空间都被纳入其中。
The project proposes the rehabilitation of an agricultural warehouse, reprogrammed as a "senior" cohabitation. In order to accommodate two-family units in the same building, the lifestyle of each individual family was studied. This allowed us to plan and reorganize the spaces according to each use, specific to the degree of collectivization required at each moment. Individual, couple, collective, and even neighborhood spaces were incorporated.






为了解决从仓库到同居室的规模过渡,使用空间的多样性,以及隐私的梯度,该项目建议插入一个中央配备的块。这个新元素允许将原有的开放空间重新配置成多个子空间,这些子空间在平面和剖面上都有分布。
In order to solve the scale transition from warehouse to cohousing, the multiplicity of use spaces, and the gradients of privacy, the project proposes the insertion of a central equipped block. This new element permits the reconfiguration of the pre-existing open space into multiple subspaces, which are distributed both in plan and in section.



核心是通过使用压实的土块(CEB)墙来解决的。砌块通过3个适应程序的大单元分布;它产生了用于存储或设施的开放空间,具有自己程序的封闭空间,以及相互连接或分离区域的通道空间。同时,为了不改变原有的石墙,该街区集中了同居住宅的所有设施。
The nucleus is resolved by using a wall of compacted earth blocks (CEB). The block is distributed through 3 large units adapted to the program; it generates open spaces for storage or facilities, enclosed spaces with their own program, and passage spaces that interconnect or separate areas. At the same time, in order not to alter the original stone walls, the block concentrates all the installations of the cohousing.

在舒适性方面,这种大土块提供了高吸湿性,弥补了现有石墙的低湿度调节能力。此外,它还补偿了部分热惯性,这些热惯性是通过其内侧的现有外墙的保温层损失的。
In terms of comfort, this large earth block provides a high hygroscopic property, which compensates the low capacity of existing stone walls to humidity regulation. In addition, it compensates for part of the thermal inertia that is lost through the thermal insulation of the existing façades on its interior side.













Architects: arqbag
Area: 302 m²
Year: 2020
Photographs: Marc Díaz
Architects:Bernat Colomé Franco, Marc Díaz Gallego, Jordi Mitjans, Simona Cerri, Adrià Vilajoana, Alfonso Godoy
Colaborators:Esther Orús Alcalde, Carmen Bodelón De Frutos, Toni Quirant Garrido
Structural Consultants:Sergi Díaz Valdivia, Quim Escoda Llorenç
Technical Architect And Director Of Works Execution:Rafel Casanovas i Peñalver
City:Guimerà
Country:Spain