该项目位于台中市的边缘地带。和台湾大多数农村地区一样,这里人口密集,有低矮的住宅楼和农田,但很少有区域被保留给公共设施。它要求为社区建立一个图书馆和一个学校体育馆,就在现有的一所小学旁边。这个项目的挑战不仅仅是简单地将这两座建筑和项目放置在一个非常困难的地点,而是通过扩大活动层次、自然条件、构造细节和氛围来创造一种场所感。由于场地非常狭长,建筑必须分布在边界的两端。这两座建筑应相互面对,并在中间创造一个公共广场。广场成为新的焦点,也是学校新的侧门,将社区和学校编织得更加紧密。室外露台、屋顶花园和从这两座建筑中伸出的坡道,试图扩展公共广场的外围。
The project locates at the fringe of Taichung City. Like most rural areas in Taiwan, it is densely populated with low-rise residential buildings and farmland, however very few areas are reserved for public amenities. It has called for a library for the community and a school gymnasium, right next to an existing primary school. The challenge of this project is more than just simply placing these two buildings and programs in a very difficult site but creating a sense of place through expanding layers of activities, natural conditions, tectonic details, and ambiance. Because the site is very long and narrow, buildings have to be distributed at two ends of the boundary. These two buildings shall face each other and create a communal square in the middle. The square becomes the new focus as well as the new side entry for the school which knitted the community and school even closer. Outdoor terraces, roof gardens, and a ramp projecting out from these two buildings try to extend the periphery of the communal square.





该场地和学校被一条废弃的灌溉渠隔开,里面种满了本地水生植物和栖息地,现在被用作学校科学课的观察区。与其说灌溉渠是场地的限制因素,不如说它已经成为图书馆形式以及其周围景观的刺激因素。现在,该渠道被扩展为一个池塘,环绕着图书馆的三面。它作为学校的围栏,没有破坏景观的视觉延续性。
The site and the school are separated by an abandoned irrigation channel filled with native aquatic plants and habitats and are now used as an observation quarter for a science lesson in school. Rather than treating the irrigation channel as a site constraint, it has become the stimulus for the form of the library as well as the landscape surrounding it. Now the channel is expanded as a pond and surrounded three sides of the library. It serves as the fence for the school without disrupting the visual continuation of the landscape.


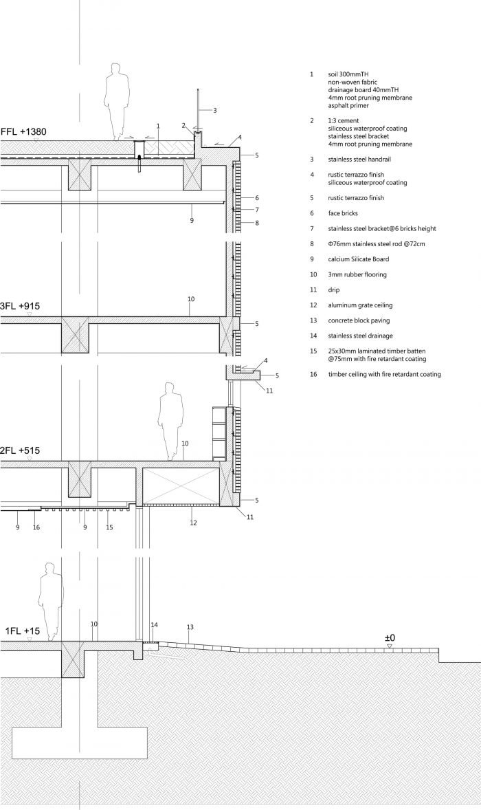
由于场地在南北方向上很长,建筑物大部分暴露在下午的西晒下,这对图书馆的书籍是不利的。因此,西部的墙体倾斜了一定的角度,使缝隙得以打开,并有窗户朝北,以享受充足的间接阳光。为了对付从西方刺眼的阳光中获得的热量,建筑物受益于双层墙结构,因为砖墙后面的空气空洞起到了隔热层的作用。下午时分,从这些窗户射出的光线在红砖墙上反弹后变成了粉红色,给人一种超现实的时间变化感。
Because the site is long in a north-south direction, buildings are largely exposed to the afternoon western sun which is detrimental to books in the library. Therefore, walls at the west are tilted at an angle to allow slits to be opened and have windows facing north to enjoy ample indirect sunlight. To combat the heat gained from the harsh western sun, buildings benefit from double wall construction, as air cavities behind brick walls act as a layer of heat insulation. The light coming from these windows turns pinkish in color as it bounces off the red brick wall during the late afternoon and offers a surreal sense of changing time.

图书馆的想法是成为书籍的中性容器,以及空间和周围环境。内部不同材料的表面都被涂成白色,以加强自然阳光的丰富性,它的温暖和不同时期的颜色。这些材料表面的纹理投射出微妙的阴影,并提供不同的白色色调,以丰富空间感。一旦进入图书馆,人们就会看到门厅里丰盛的室外景观,这要归功于一侧朝北的大窗户。另一侧是一个通风的中央中庭,作为图书馆所有空间的枢纽。中庭的丝带状楼梯蜿蜒于图书馆的三个楼层,引导或暗示着其他空间。
The idea of the library is to be a neutral container of books as well as the space and its surroundings. The surfaces of different materials inside are all painted in white, to heighten the abundance of natural sunlight, its warmth, and colors at different times. Textures of these materials surfaces cast subtle shadows and offer different shades of whiteness to enrich the sense of space. Once entered the library, people will be greeted with a sumptuous view of the outdoor landscape in the foyer thanks to large windows facing north at one side. On the other side is an airy central atrium that acts as a pivot to all spaces in the library. The ribbon-like stair in the atrium meander three floors of the library, directing or hinting at spaces beyond.


底层被用作社区客厅和儿童区。大窗户紧挨着现在放大的自然雕刻的水渠。晨光在摇曳的柳树上跳舞,读者可以听到水流的声音。二楼是普通阅读区。所有开放的书架都保持在110厘米以下,以确保整个空间的视野不受阻碍。即使其开放性,不同的阅读区也被其周围的环境所界定,从户外露台花园旁的休闲沙发到安静的学习角落。
The ground floor is served as a community living room and children’s quarter. Large windows are placed right next to now enlarged naturally sculpted aqueducts. Morning lights dance through swaying willow trees, as the sound of water flowing through the landscape can be heard by the readers. The second floor is for general reading. All open-book shelves are kept below 110cm to ensure an unobstructed view of the entire length of the space. Even with its openness, different pockets of reading areas are defined by their immediate surroundings, ranging from relaxing sofas next to outdoor terrace gardens to quiet study corners.


三楼有一个多功能教室和青年部,这是最吵闹的项目。因此,它们被放置在顶部,远离下面的安静阅读。年轻人区的屋顶可以升起,让南方的间接柔和阳光洒满整个空间。当人们认为图书馆的空间序列即将结束时,人们会突然发现,当他们转过头时,一个大型的户外屋顶花园正在等待着他们。屋顶花园是倾斜的,所以人们只能瞥见向上和向外的景观,因此鼓励读者走到外面去,进一步发现我们应该在知识的海洋里。
The third floor contains a multi-purpose classroom and young adult section, which are the nosiest programs. Therefore, they are placed on the top, away from the quiet reading below. The roof of the young adult section lifts to allow indirect soft southern sunlight to fill the space. As one thinks the spatial sequence of the library is about to end, people will suddenly discover a large outdoor roof garden awaits as they turn their heads. The roof garden is inclined so people will only be able to get a glimpse of the landscape up and beyond, therefore encouraging readers to step outside and discover further as we should in the sea of knowledge.

























Architects: David Hong Architects
Area : 3500 m²
Year : 2022
Photographs :Studio Millspace
Lead Architects : David Hong
Structural Design : ENVISION Engineering Consultants Co., Ltd.
MEP Design : Zhengyi MEP Engineering Consultants
Landscape Design : Studio Xichuan
City : Taichung
Country:China