Draindot的开始
我们的客户似乎很困惑。她在一次度假时买了一块地,她爱上了这块地,出于一个简单的想法,她想在济州岛生活,这就是Draindot的开始。带着很高的期望开始的,第一个建筑设计是失败的,对她来说事情很艰难,直到她遇到ilsang_workroom重新设计,并开始和我们STARSIS一起一步一步地重新建设。正如你所看到的,Draindot开始时只有一个模糊的想法。
The Beginning of Draindot
Our client seemed to be confused. She purchased a land lot she fell in love with during a vacation, out of a simple thought that she wanted to live in the Jeju Island, and that was the beginning of Draindot. Started with high expectation, the first building design was a failure, and things were rough for her until she met ilsang_workroom to re-design, and started re-building with us, STARSIS, step by step. As you can see, Draindot started with just a vague idea.





没有什么大的总体主题,如'表达济州岛的美丽文化'。毕竟,这个地方已经是济州的一部分了。作为一个在济州岛生活了短短五年的人,我必然对济州岛的许多方面不了解,这就是为什么我希望无声地融入济州岛。我想在不与他人交流的情况下获得一种健康的放松体验。我的期望是,时间的流逝会让我们了解济州岛。
There was no big overarching theme such as ‘express the beautiful culture of Jeju Island.’ After all, this place is already a part of Jeju. As someone living in Jeju for just five years, I am bound to be unaware of many aspects of Jeju, and that is why I wanted a silent blending into Jeju. I wanted to achieve a wholesome relaxing experience without interacting with the others. My expectation was that the passage of time would teach us about the Jeju Island.

我们想 "一起 "建造一个好的建筑,不受承包商和客户关系的约束。我们都想摆脱繁琐的虚张声势,坦诚相待。Draindot就是在这样的诚意中建成的,因为这是大家的愿望。
We wanted to make a good building “together”, not bound by the norms of contractor-client relationship. We all wanted to get rid of cumbersome bluffing and be frank. Draindot was built in such an earnestness, because that was what everyone wanted.


为家庭提供一个放松的地方
虽然现在宾客盈门,但我们的客户最初的计划是把这个地方当作家。因此,这个空间在这里和那里都有我们客户的影子。因为最初的开发是在2015年开始的,所以她从那时起就开始了准备工作。被可爱地储存起来的复古照明设备被放置在适当的位置。除了灯饰之外,到处都有细心的痕迹,产生于许多小而周到的细节。
A Place to Relax for Families
Though guests fill the house now, our client originally planned to make this place home. Thus the space has hints of our client here and there. Because the initial development started in 2015, she started preparations since then. Vintage lighting fixtures that had been stored endearingly have been placed on appropriate spots. In addition to the lightings,there are delicate traces of caretaking everywhere, arising from many small and thoughtful details.

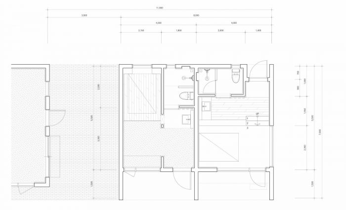
8/1-8/4室
每一天,每一次! 客户在看8/1-8/4房间时,每天都要问我好几次。"它不漂亮吗?" 现在,在质疑她指的是什么之前,答案就出来了。她一直问,直到我说是。由于每个人都有自己的品味,我自信地说 "我不这么认为,但我尊重你的意见。" 事实上,我认为放松和和平是比漂亮更合适的词,但我努力不大声说出这一点。
Room 8/1 – 8/4
Every day, every time! The client asks me several times a day while looking at rooms 8/1 – 8/4. “Isn’t it pretty?” Now, the answer comes before questioning what she is referring to. She keeps asking until I say yes. Since everyone has their own taste, I confidently say: “I don’t think so, but I respect your opinion.” In truth I think relaxing and peaceful are more appropriate words than pretty, but I strive not to speak this out aloud.


这个空间的设计从开始到结束都需要大量的思考,因为我想用各种物品和配置在小空间里给予不同的丰满和舒适的感觉。最终的空间是干净、清爽、放松的,但又隐藏着许多有趣的小细节。
Designing of this space required a lot of thought from the beginning to the end, since I wanted to give different kinds of voluminous and cozy feeling in small spaces using various objects and configurations. The resulting space is clean, crisp, and relaxing, yet hides many interesting small details.

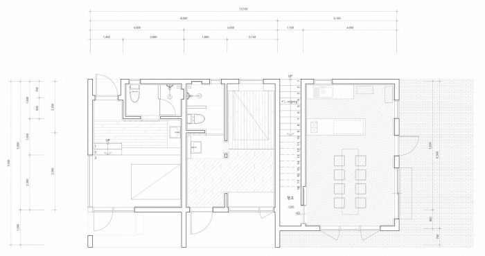
公共空间(接待台)
公共空间是人们沿着长长的水泥路行走时遇到的第一个空间。这里是Draindot的起点。我们希望,即使主人不在,空间本身也能欢迎我们的客人。在这个空间里,我们希望为来访者提供早餐,并倾听和分享关于你的生活的故事。
Common Space (reception desk)
The Common Space is first space that one encounters when walking along the long concrete road. This is where Draindot starts. We hope that the space itself can welcome our guests even if the owner is not present. This is the space where we want to provide breakfast to visitors, and listen to and share stories about how you are living.

收尾工作
人们会逐渐了解济州岛的生活,这并不总是一个简单的过程,但我希望Draindot能逐渐融入到这个岛上。
Wrapping Up
One will gradually learn about the life in Jeju Island, which will not be always an easy process, but I hope Draindot will gradually blend in to the island.


























Architects: STARSIS, ilsang workroom
Area: 724 m²
Year: 2018
Photographs: Hong, Seok-Gyu
Manufacturers: LIMAS, E plus, JEVISCO, Mabee Studio, cemento lab
Lead Architects: Choi, Kwang-ho, Yoo, Jee-Eun, Lim Hee-Jun
City:Jeju-si
Country:South Korea