一家老啤酒厂正在被改造成一个家庭。所述地块是一个内部区域的一部分,该区域正处于家庭住宅侵权项目的全面开发中。棚顶被打破了。现有的混凝土结构成为新计划的蓝图。
An old brewery is being converted into a home. The plot in question is part of an inner area that is in the full development of a family home infringement project. The shed roofs are broken down. The existing concrete structure becomes the blueprint for the new plan.



一个新的钢结构在旧的混凝土结构之间被开发出来。混凝土把自己画成了 "旧 "和 "新 "之间的一条铅笔线。
A new steel structure was developed between the old concrete structure. The concrete draws itself as a pencil line between "old" and "new".



现有的元素需要高质量的空间和诚实的材料的微妙交织,与现有的粗糙结构进入对话。粗糙和精致之间的矛盾形成了张力,以框住整体。
The existing elements require a subtle interweaving of quality spaces and honest materials that enter into a dialogue with the existing rough structure. The contradiction between roughness and refinement forms tension to frame the whole.

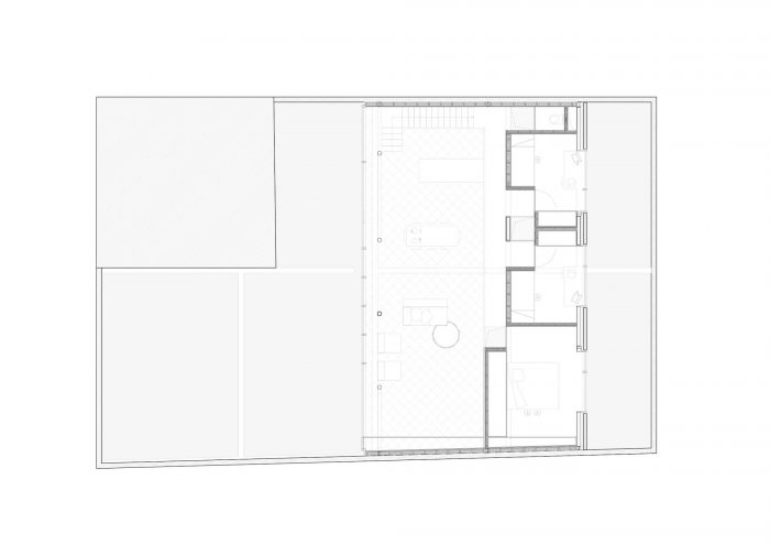
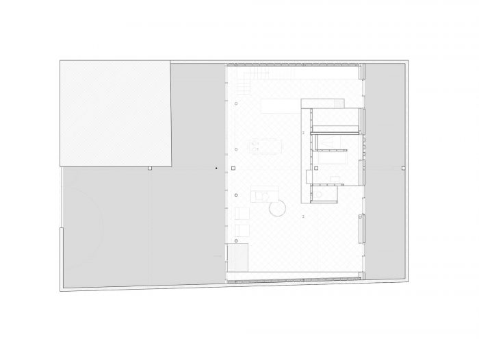
新家依偎在现有的棚屋轮廓中。这使房子在生活空间中拥有一个大的户外空间,在更多的私人空间中拥有亲密的户外空间。公用花园成为整个场地的绿色核心。
The new home nestles in the existing contours of the shed. This gives the house a large outdoor space in the living spaces and intimate outdoor space in the more private spaces. The communal garden becomes the green core of the entire site.










Architects: Atelier Janda Vanderghote
Area: 245 m²
Year: 2018
Photographs: Alexander Meeus, Sarah Van Hove, Indra Jandra
City:GHENT
Country:Belgium