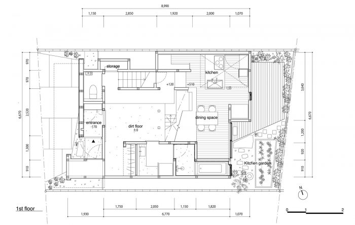
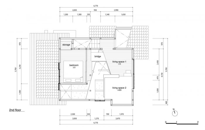
这是一座有40年历史的木屋的翻新,建在通往京都下鸭神社的路上。它的位置很好,前面是一个森林般的公园,后面是一条河。它有一个地下储藏室和一个阁楼,我们认为有可能是一个垂直展开的空间。因此,我们考虑用一堵墙做对角线结构,打开从地下室到阁楼的四层,把内部空间分成两部分,即森林一侧和河流一侧。
This is a renovation of a 40-year-old wooden house built on the approach to Shimogamo Shrine in Kyoto. It is in a great location with a forest-like park on the front and a river on the back. It had an underground storeroom and a loft, and we think the possibility of a space that spreads vertically. Therefore, we considered a wall for a diagonal structure that opens the four layers from the basement to the loft and divides the internal space into two, the forest side and the river side.






森林一侧是一个黑暗和安静的空间,有一堵接近的对角线墙,使它成为个人可以集中精力工作的地方。河边是一个明亮的空间,由于斜墙向上蔓延和自然光,有一种上升的感觉,它是一个家庭聚会的地方。
The forest side is a dark and quiet space with an approaching diagonal wall, making it a place where individuals can concentrate on their work. The river side is a bright space with a feeling of rising due to the slanted walls spreading upward and natural light, and it is a place where families gather.

每层楼的高度是一点一点改变的,它与斜墙的距离略微拉开。这在地板和墙壁之间形成了很多小的缝隙。这些不同的缝隙将空间连接起来,创造了一个明亮和黑暗散发的空间。
The height of each floor is changed little by little, and it is slightly distanced from the diagonal wall. This created a lot of small gaps between the floor and the walls. These various gaps connect the spaces, creating a space where brightness and darkness exude.



我们可以通过在建筑中像螺旋一样上下移动和在对角墙之间来回走动来体验丰富的空间。这是一个可以享受许多小空间集合的房子。
We can experience a rich space by moving up and down in the architecture like a spiral and going back and forth between diagonal walls. It is a house where you can enjoy a collection of many small spaces.











Architects: ENDO SHOJIRO DESIGN, td-Atelier
Area: 109 m²
Year: 2020
Photographs: Matsumura Kohei
Manufacturers: Adobe, Astage, Jw-CAD, LIXIL , Sanwa Company, YAZAWA
Landscape Design:Michikusa, Michikusa, Ogasahara Satoru
Architects:td-Atelier, ENDO SHOJIRO DESIGN
Construction:Fuzisaki Gumi Company Limited
City:Kyoto
Country:Japan