作为振兴标志性的玛丽广场及其河岸的大型项目的一部分,Sid Lee建筑事务所自豪地介绍了领先的创意公司Sid Lee的新办公室,该公司现在的总部设在以前由加拿大皇家银行占据的四个象限中的三个。
As part of a larger project to revitalize the iconic Place Ville Marie and its esplanade, Sid Lee Architecture is proud to present the new offices of leading creative firm Sid Lee, which is now headquartered in three of the quadrants formerly occupied by the Royal Bank of Canada.



这些空间的建筑改造是蒙特利尔市中心振兴的一部分,也是对该机构致力于创造与城市中心的新联系的肯定。它还具有对该城市最具代表性的空间之一进行发光和开放的更新。随着工人们回到办公室,生物广场作为一个创造性的地方脱颖而出,漂浮在市中心,一个通过思想的自由流动连接街道和室内的边缘空间。
The architectural makeover of the spaces is part of the revitalization of downtown Montreal and an affirmation of the agency’s commitment to creating new links with the urban epicenter. It also features a luminous and open renewal of one of the city’s most iconic spaces. With workers returning to offices, the Biosquare stands out as a place for inventiveness, floating in the heart of downtown, a liminal space bridging the street and the interior through the free flow of ideas.

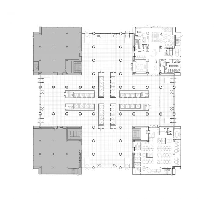
一个向城市开放的微观世界。空间的重新设计是基于两个主要的原则,并以使原来的办公室更轻盈、更温馨的愿望为基础。
A microcosm open to the city. The redesign of the space was based on two major principles and grounded in the desire to make the original offices lighter and more welcoming.

首先,城市平台的自由流动决定了设计,目的是实现外部城市和内部办公室之间的连续性。园区--由于其形状和亲生物元素,建筑师也称之为生物广场--因此是其所在的城市环境的延伸,处于学科和社会领域的交汇处。
First, the free flow of the urban platform dictated the design, with the aim of achieving continuity between the city outside and the offices within. The campus — which the architects also call the Biosquare because of its shape and biophilic elements – is thus an extension of the urban environment in which it is located, at the intersection of disciplines and social spheres.

这种连续性原则也体现在构建空间组织的无限网格中。覆盖整个办公区的网格使得概念化的开放区域成为可能,不同的功能在这里轻松自由地共存。与孤岛式的、零散的办公室相比,Sid Lee建筑事务所将这一模板作为一个平台,将所有的空间和在其中活动的人联系起来。因此,生物广场是一个共享的微观世界,具有无限的可能性;是一个集体的世界,在这里职业交融,功能之间的界限模糊不清。
矿物空间。在底层,希德-李办公室的主入口提供了一个不间断的公共广场的视野。这一层的主要材料类型是矿物,由丛林锤击的石头制成的单体上升,形成了咖啡馆、厨房和洗手间空间。这一层的不同用途给人的印象是每个功能都是独立出现在地面上的。在这里,我们可以推断出对地下城市的参考,它为附近地区的城市活动的活力提供了一个环境。
That continuity principle is also found in the infinite grid structuring the organization of the space. Covering the entire office area, the grid made it possible to conceptualize an open zone where different functions coexist easily and freely. In contrast to siloed, fragmented offices, Sid Lee Architecture used that template as a platform to link all of the spaces and the people moving within them. The Biosquare is thus a shared microcosm with endless possibilities; a collective world where professions mingle and the boundaries between functions are blurred.
Mineral space. On the ground floor, the main entrance to the Sid Lee offices provides an uninterrupted view of the public plaza. The dominant material type on this floor is mineral, with monoliths made of bush-hammered stone rising to form the café, kitchen, and washroom spaces. This level’s different uses create the impression that each function is emerging from the ground independently. Here, we can infer a reference to the underground city, which provides a setting for the vitality of urban activity in nearby areas.


在大群的石头中,细节上的细腻触感保留了一种轻盈的感觉。形状和材料相互摩擦,仿佛漂浮。每一个元素都被自由地添加到其他元素中,加强了完整性和流动性的印象,同时让自然形成自己的道路。
亲生物环境。当我们登上第一个夹层,进入西德-李的主要创意和工作空间所在的两个大的石头象限时,已经开始从地面出现的自然元素现在占据了中心位置。我们已经来到了一个充满活力的地方,神奇的事情发生了。在现有的两座桥的基础上,又增加了第三座桥,以一种敏捷和流动的方式连接这两个立方体。
In the large clusters of stones, the delicate touch in the details preserves a sense of lightness. Shapes and materials brush against each other as if floating. Each element is freely added to the others, strengthening the impression of completeness and fluidity while letting nature make its own path.
Biophilic environment. As we ascend to the first mezzanine and gain access to the two large stone quadrants where Sid Lee’s main creative and working spaces are located, the natural elements that were already starting to emerge from the ground now take center stage. We have arrived in a dynamic place where the magic happens. A third bridge has been added to the two existing ones to connect these two cubes in an agile and flowing manner.

在这一层,网格作为一种组织概念在每个元素中都很明显,无论是建筑还是美学。每个象限的中心作为一个agora,提供一个更受欢迎的氛围,鼓励人们聚集。当我们把目光向上和向外看时,自然会产生一种阳台效应。在公共空间的象征性核心周围,房间变得更小、更私密。
On this floor, the grid as an organizational concept is apparent in each element, whether architectural or aesthetic. The center of each quadrant serves as an agora, offering a more welcoming atmosphere that encourages people to gather. A balcony effect is created naturally when we turn our gaze upward and outward. Around the symbolic core of the common space, the rooms become smaller and more private.

在这里,网格结构作为一个框架,将不同的世界聚集在一个生态系统中。它是一块大画布,允许我们部署创造性的领土,并给人一种视觉印象,即任何东西都可以被建造,我们可以在它们出现时整合块状物、墙、新功能和新想法。这个建筑隐喻也提醒我们,在自由漂浮在空中的时候,一切都相互联系。
Here, the grid structure serves as a framework for bringing together different worlds in a single ecosystem. It is a large canvas that allows us to deploy creative territories and gives the visual impression that anything can be built, that we can integrate blocks, walls, new functions, and new ideas as they appear. This architectural metaphor also reminds us that everything is connected while free-floating in the air.

激发创造力。在翻新过程中,原有的石灰华地板被揭开并得到加强,天窗也被剥离,露出其结构,其中几个天窗还被战略性地放大。由于空中网格的线性,我们的视线被引向广阔的天空,这些天空被刻意突出,并从大多数工作站中可见。
Inspiring creativity. The original travertine floors were uncovered and enhanced in the renovation process, and the skylights were stripped to reveal their structure, several of which were also strategically enlarged. Thanks to the linearity of the aerial grid, our gaze is led upward to the vast swaths of the sky that were deliberately highlighted and made visible from most workstations.

这个空间被当地照明和设计工作室Lambert & Fils的多个灯具所点缀,而一系列展示强烈和独特的概念性身份的房间则站在主网格和广场的外围。这些空间旨在为公司的团队提供鼓舞人心的环境,最终成为充满想象力的工作的沉浸室。它们的灵感来自于自然参考和熟悉的纹理,从某种意义上说,它们体现了汇集在喜德利的多种想象力。
The space is punctuated with multiple light fixtures by local lighting and design studio Lambert & Fils while a series of rooms displaying strong and distinctive conceptual identities stand on the periphery of the main grid and agoras. Created with the intent of providing inspiring environments for the firm’s teams, these spaces are ultimately immersion rooms for imaginative work. Inspired by natural references and familiar textures, they embody, in a sense, the multiplicity of imaginations that come together at Sid Lee.








Architects: Sid Lee Architecture
Area : 78400 ft²
Year : 2022
Photographs :Maxime Brouillet, David Boyer
Electromechanical Engineer : Planifitech inc.
Structural Engineer : Stantec
City:Montreal
Country:Canada