这组学校是应对巴黎郊区维勒尤夫镇中心和北部地区校舍短缺问题的一部分。它所在的水库地块在该镇是很特别的,有两点:它受到保护,不受声音干扰,而且除了水景之外,还有一些大树。
This group of schools is part of the response to the shortage of school premises in the center and northern parts of the town of Villejuif, on the outskirts of Paris. The reservoir site where it is located is exceptional in the town, on two counts: it is protected from sound disturbance, and it has a number of large trees in addition to its water feature.



该地块的地形和几何形状也非常不寻常:非常小的--甚至是间歇性的--场地占据了一组平台,虽然建筑只占用了极少的空间,但却能看到远处的风景。其紧凑的解构式外墙软化了整体效果,使人很容易分辨出不同的层次。它们的语言、使用的材料和它们的混合给人以拼贴的感觉,并肯定了该建筑作为人口的学校设施的地位。
The topography and geometry of the plot are also very unusual: the very small - even interstitial - site occupies a set of platforms, and although the building takes up only a minimal amount of space it offers views out over the landscape in the distance. Its compact deconstructed facades soften the overall effect and make it easy to discern the different levels. Their languages, the materials used, and their imbrication give the appearance of a collage and affirm the status of the building as a school facility for the population.


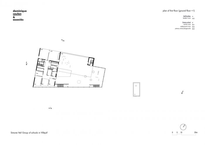
在这个封闭的场地内,三条不同的通道通过提供几个目的地来保持流动性,包括一个共享的前院。幼儿园和校外活动空间占据了底层,向一个大操场开放。挨着中央天井的图书馆占据了两个高度,从而引入了与上层小学的视觉联系。这些都可以通过楼梯直接通向一楼的操场。一个大的悬臂释放了空间,并提供了巴黎的全景。它的写作和材料都很出色。
Within this enclosed site, three different access routes preserve fluidity by offering several destinations, including a shared forecourt. The nursery school and space for out-of-school activities occupy the ground floor, opening out onto a large playground. A library, next to a central patio, occupies a double height, thereby introducing a visual link with the elementary school on the upper levels. These may be accessed by stairs leading directly to the playground on the first floor. A large overhang frees up space and provides a panoramic view of Paris. It is remarkable for its writing and its materiality.



因此,这个上层操场被设计成一个巨大的空旷空间,在容纳小学班级的烧焦的木头体积下伸展开来。所使用的不同色调的绿色与树林中的场地相呼应。建筑与景观相呼应,创造了和谐的关系。
Thus this upper playground is designed as a large empty space stretched out beneath the volume of scorched wood that houses the elementary classes. The different shades of green that are used are in keeping with the wooded site. The building echoes the landscape, creating harmonious relationships.



教室清晰的几何形状为学生们提供了地标,并使安装照明和视觉系统成为可能,从而提高了使用和使用的质量。幼儿园的教室可以看到大树,花园层的食堂区域也是如此;小学的教室也有很多窗户。
The clear geometry of the classrooms provides the pupils with landmarks and makes it possible to install lighting and visual systems that add quality to their use and appropriation. The nursery classes look out onto the large trees, as do the canteen areas on the garden level; the elementary classes are also well-endowed with windows.


整个建筑都有丰富的自然光,甚至对尺寸宽大的交通路线也有好处,把它们变成既有趣又实用的区域。
There is abundant natural light throughout the building, to the advantage of even the generously dimensioned traffic routes, turning them into areas that are playful as well as functional.


这所学校提供了一个非常多样化的情况;其不同的组成部分因其自然对比而获得了价值。
The school offers a great diversity of situations; its varied component parts gain in value from their natural contrast.











Architects: Dominique Coulon & associés
Area : 8913 m²
Year : 2021
Photographs :Clément Guillaume
Manufacturers : Camille Ascenseur, Decor Acoustic, Flipo, Hunsinger, Normen, Simon
Lead Architects : Dominique Coulon, Olivier Poulat, Steve Letho Duclos
Structural Engineering : Batiserf Ingénierie
Electrical Engineering : BET G. Jost
MEP : Solares Baue
Acoustics : Euro Sound Project
Assistant Architects : Ali Ozku, Javier Gigosos-Ruipérez
Construction Site Supervision : Olivier Poulat, Mehmet Davaz
Landscape : Bruno Kubler
Kitchen Specialist : ES Service Energétique
Programmer : Philippe Monnot
Cost Estimator : E3 Économie
City : Villejuif
Country : France