天气很强,它主导着济州的生活,经常刮风,天气瞬息万变。 玄武岩到处都是,划定了田地和房屋的界限。像小山丘一样的奥林到处都是,在济州岛有350多座。形成了一个场景。在韩国人眼中,济州岛算是一个世外桃源,天气和植被让他们想起了热带地区。在过去,这里是许多来自大陆的流亡者的家园。这里的时间流向相当不同。天气是统治者。
The weather is strong, it dominates jeju life, it is very windy quite often, and weather changes instantaneously. The basalt rocks are everywhere, demarcating fields, and individual houses. The orum, which is like a little hill, is everywhere, more than 350 of them in jeju island. It creates a scene. The island is sort of an exotica among Koreans, weather and vegetation reminds them of tropics. In the past, it was home for many exiles from the mainland. Time flows rather differently here. Weather is the ruler.



客户隐秘的生活方式是建筑师的假设和想象。因此,地堡一样的房子挖进土里,中间有一个中庭是第一个计划。横向的缝隙像别墅萨瓦耶一样,将住宅一分为二,一个淹没在水中,另一个漂浮在水中。沉重的存在中难以承受的轻盈,是一种被反重力理念裹挟的愿望。卑微的低矮的弧形屋顶,向济州的传统民居致敬。很多时候,一个好不容易达成的方案,会因为富裕的客户突然的情绪变化而放弃,这也是其中的一个案例。这也是其中的一个案例。
The secretive life-style of the client is presumed and imagined by the architect. Thus the bunker like home trenched into the earth, with an atrium in the middle was the first plan. The horizontal slit like villa savoye cut the home in half, one submerged, the other floating. The unbearable lightness of the heavy being is an aspiration to be held hostage to the idea of anti-gravity. The humble low lying curved roof paid much homage to the traditional homes of jeju. Many times a well agreed upon scheme is dropped due to sudden mood changes of the well-off clients. This was another one of those cases.




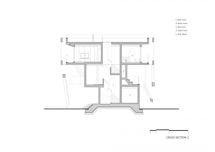
由于客户的情绪变化,一个相当炫耀和奢侈的姿态被要求。最后的形式与第一个设计完全对立,因此,如果同时目睹这两个设计,效果是无效的。最初的1层住宅被挖掘出来,并使其垂直而立。尺寸的变化带来了一个非常线性的空间,相互叠加,提供了3层楼,2楼正中间有一个开口。竖立的房子现在已经很有存在感了,但还需要更多的东西来赋予它鲜明的个性。然后强风大雨开始让地板开裂,慢慢的三层楼和旋转的家就出现了。风太大了,让人感到恶心和焦虑。必须要做点什么,于是就有了端点与其他点之间的绑定结构。
A rather showy and extravagant gesture was called upon to the mood changes of the client. The final form is a complete antithesis of the first design, therefore the effect is nullifying if you witness both of them simultaneously. The initial 1 storey home was dug up, and made to stand vertically. The dimension change brought about a very linear space stacked on top of each other, providing three storeys with an opening right in the middle of the 2nd floor. The erected houses now boasted much presence, but needed something more to give it a distinct character. Then the strong wind and rain started cracking the floors, and slowly three floored and rotating home came into existence. Too much wind gave nausea and anxiety. Something had to be done, thus the binding structures between the end points to other points.




旋转给生活空间带来了多个视点。同时也催生了许多大阳台,可以满足不同的户外功能。最后客户的愿望实现了,建筑师也相当高兴,因为他已经到了空间品质和体验的两个极端。
The rotation has brought multiple view points to the living spaces. It also gave birth to many large verandas where different outdoor functions could be accommodated. Finally the client’s wish is fulfilled, and the architect is also quite happy, because he has been to two extremities of spatial qualities and experiences.














































建筑师:Moon Hoon
面积:206平方米
年份:2017年
摄影作品:Moon Hoon
设计团队:Kim jaekwan, Kim haeree, Park jeonguk, Song giwon, Tomasz Kisilewicz
结构:RC
客户:JJ
场地面积:714m²
建筑占地面积:133.48平方米
建筑面积:206.40平方米
建筑范围:3层
高度:11.05米
建筑物与土地比率:18.70%
建筑面积比:28.90%。
城市:济州市
国家:韩国
Architects: Moon Hoon
Area: 206 m²
Year: 2017
Photographs: Moon Hoon
Design Team:Kim jaekwan, Kim haeree, Park jeonguk, Song giwon, Tomasz Kisilewicz
Structure:RC
Client:JJ
Site Area:714m²
Building Area:133.48 m2
Gross Floor Area:206.40 m2
Building Scope:3F
Height:11.05m
Building To Land Ratio:18.70%
Floor Area Ratio:28.90%
City:Jeju-si
Country:South Korea