这栋房子是为利蒂亚附近的一对夫妇准备的,他们正处于第三个生命期的门槛上,他们勇敢地决定卖掉老旧的超大户型房屋,在地块较美丽的南部建造一栋新的一层房屋。
The house is intended for a couple near Litija, who are on the threshold of a third life span and who have courageously decided to sell the old oversized family house and build a new ground floor house on the more beautiful southern part of the plot.


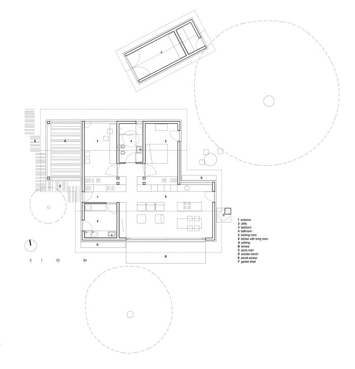
由于新址只建在一个狭窄不利的三角形区域内,空间构成由两座纵向略微偏移的百叶窗组成的较大的、活泼的主楼和一个较小的独立园棚组成。奢华并不集中在昂贵的材料上,而是通过将房子向南开放,将周围的山丘和远处利蒂亚附近的Smartno美景尽收眼底,并将现有的树木尽收眼底,从而实现了对生活品质的充分考虑。背靠着,房子面对的是靠近通路和老楼的建筑群。
Since the new location is only being built in a narrow, unfavorable triangular area, the spatial composition consists of a larger, lively main building consisting of two louvers slightly offset lengthwise and a smaller separate garden shed. The luxury is not concentrated on expensive materials, but on well thought-out details and quality of life by opening the house to the south, with a beautiful view of the surrounding hills and Smartno near Litija in the distance and a view of the existing trees. With the back, the house faces a building block near the access road and the old building.


房子采用预制木框架结构,外覆灰色纤维水泥波纹。这种选择也决定了其他材料的选择,应遵循维护方便、简单、外观不显眼、经济实惠的原则。屋顶外侧的构造在不放弃的情况下依然可见,使建筑具有花园亭子的特点,这样屋顶就飞过了基本体量。
The house is built in a prefabricated timber frame construction and clad with gray fiber cement corrugations. This choice also dictated the choice of other materials, which should follow easy maintenance, simple, unobtrusive appearance and affordability. The outer roof construction remains visible without being abandoned, giving the building the character of a garden pavilion, so that the roof flies over the basic volume.



东面有一个曾经的披萨炉,是业主多年前建造并使用的,坚持将其保留并纳入新的设计中。新建的可见的混凝土结构以其纪念性赋予了垂直的雕塑重心相对水平的设计,而所有在前烤炉的聚会记忆都被保留下来并传递给新的一代。
To the east, a former pizza oven was located, which the owner built and used years ago and insisted on its preservation and inclusion in the new design. The newly built, visible concrete structure with its monumentality gives the vertical sculptural center of gravity a relatively horizontal design, while all the memories of the gatherings at the former oven are preserved and passed on to new generations.

我们和客户一起给室内设计了一个明确的准则:尽可能让屋内的生活变得简单。因此,所有的内置家具都由精选的旧电器和一些来自业主的椅子来补充。当轮椅要在屋内行驶时,我们也排除了任何障碍。光线充足的屋内环境和主人充满记忆的性格,将保证记忆留在屋内。
Together with our customers we have given the interior a clear guideline: to make life in the house as easy as possible. Thus, all the built-in furniture is supplemented by selected old appliances and some chairs from the owners. We have also removed any obstacles to the wheelchair when it is to be driven through the house. The light-flooded interior of a house and the memory-filled character of its owner will ensure that the memories will remain in it.

"房子的简约,并不一定意味着它只是它的设计或简单的建筑考虑。最重要的是,它意味着房子易于使用,并优先考虑生活中真正重要的东西。" (Ajda Bračič,《局外人》第21期)
”The simplicity of a house does not necessarily mean that it was only its design or a simple architectural consideration. Above all, it means that the house is easy to use and gives preference to the things that really matter in life.” (Ajda Bračič, Outsider #21)







建筑师:Skupaj Arhitekti, mKutin arhitektura
面积: 140 m²
年份:2019年
摄影:Miran Kambič
制造商:Ondapress-57、RIKO Basic、Valovitka 5
首席建筑师:Tomaž Ebenšpanger, Meta Kutin
设计团队:Tomaž Ebenšpanger, Meta Kutin
客户:私人
工程:Projektiranje gradbenih konstrukcij, Sašo Vozel, s.p.
独立花园面积:24,00 m2
城市:利蒂亚
国家:斯洛文尼亚Architects: Skupaj Arhitekti, mKutin arhitektura
Area: 140 m²
Year: 2019
Photographs: Miran Kambič
Manufacturers: Ondapress-57, RIKO Basic, Valovitka 5
Lead Architects:Tomaž Ebenšpanger, Meta Kutin
Design Team:Tomaž Ebenšpanger, Meta Kutin
Clients:private
Engineering:Projektiranje gradbenih konstrukcij, Sašo Vozel, s.p.
Area Separate Garden Shed:24,00 m2
City:Litija
Country:Slovenia