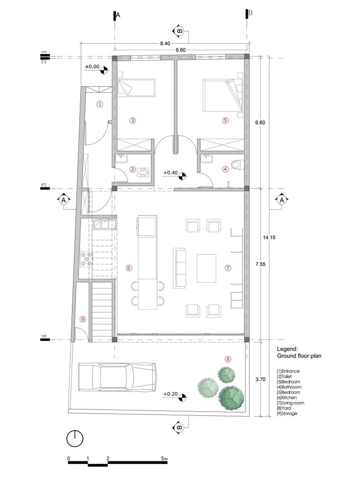
土地面积小,客户要求做一个经济的单层建筑,这是这个项目的挑战。考虑到客户与市政府的协议和他所要求的空间,大约80%的土地被分配给建筑。计划很简单,南边是客厅和餐厅,西边是狭窄的单壁厨房,北边是高度较低的两间卧室。
The small size of the land and the client’s request to make an economical one-floor building were the challenges of this project. Given the client’s agreement with the municipality and the spaces he demanded, approximately 80% of the land was allocated to the building. The plan was simple; a living room and dining room on the south, a narrow one-walled kitchen on the west, and two bedrooms with lower height on the north side.







由于土地的开放部分太小,无法创造一个南部的院子,而且事实上,我们必须建造唯一的单层建筑,屋顶的一部分充当了北部院子里的一个充满活力的空间。在西侧的楼梯,与小路相邻,提供了通往卧室屋顶的通道。因为建筑的西北角由于在巷子里的位置,必须要有斜面,所以在这部分的回处理使入口。这样一来,从私人区域和公共区域之间的距离进入房子就成为可能。
Since the open part of the land was too small to create a southern yard and the fact that, we had to build the only one-story building, part of the roof acted as a vibrant space along the yard in the north. A staircase on the west side, adjacent to the path, provides access to the roof of the bedrooms. Because the northwest corner of the building has to be beveled due to its position in the alley, retreatment in this part made the entrance. In this way, entering the house is possible from the distance between the private and the public areas.


客厅和餐厅被安排在一个大拱顶下,这个拱顶是根据在纳贾法巴德的历史房屋中看到的肋骨拱顶模式。它们往上走,使室内空间可以从北方看到上层院子(在私人区域的屋顶上)。这个院子和通往院子的楼梯通过西边相邻的小路的墙被保护起来,不让路人看到。这面墙还修改了土地的形状。为了整合整个建筑的主体和天花板,利用了在该地区发现的经济的乡土石材。这样一来,房子里所有的公共空间都统一在一个拱顶之下,为游客提供了一种与纳贾法巴德的历史房屋记忆相结合的愉悦感;这些房屋在附近的小巷里仍然可以看到,在当地人中被称为肋拱门。
The living room and dining room were arranged under a large vault based on the rib-vault pattern seen in the historical houses in Najafabad. They go up to allow the interior space to view the upper yard (on the roof of the private area) from the north. This yard and the staircase giving access to it are protected from the eye of the passerby through the adjacent wall of the path on the west. The wall also modifies the shape of the land. To integrate the entire body and ceiling of the building, vernacular stones that are economical and found in the region have been utilized. In this way, all of the public spaces in the house are united under one vault to offer the visitor a sense of delight combined with a memory of historical houses of Najafabad; the houses that are still seen nearby in the neighboring alleys and are known as the rib-vault houses among locals.









Architects : Ayeneh Office
Area : 122 m²
Year : 2016
Photographs :Farshid Nasrabadi
Lead Architects : Ali Soltani, Atefeh Karbasi, Ali Dehghani
Supervisor : Ali Rahimian
Design Assistants : Noushin Hosseini, Saba Masoudinejad, Arman Asgharloo
Architects : Ayeneh Office
City : Najafabad
Country : Iran