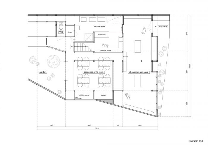
Sione银阁寺店是位于银阁寺附近的旧民居改造项目。该店销售客户自制的瓷器产品,并使用上述餐具作为咖啡馆经营。为了让顾客能从外面清楚地看到店内的情况,在入口处的外墙上安装了大型玻璃装置。入口门上的把手参考了餐具的金色和白色,而门框则采用了简单的木质饰面,中间是玻璃,这样顾客一走近店内就能看到餐具。进入店内后,瓷器产品被陈列在与墙面相连的架子上,并在房间中央摆放了一张桌子。
Sione Ginkakuji Branch is a renovation project of an old folk house located near Ginkakuji. The store sells porcelain products made by the client and operates as a café using the aforementioned tableware. Large glazing fixtures are placed on the entrance façade to allow for a clear view of the store from the outside. The entrance door has been decorated with a handle referencing the gold and white colors of the tableware while the frame is made from a simple wood finish with a glass middle so that customers can see the tableware upon approaching the store. Once entering the store, the porcelain products are displayed on shelves attached to the wall and a table at the center of the room.





为了突出餐具的美感,架子和家具的颜色在造型和色彩上都很简单。传统日式风格的茶室与店铺直接相连,具有咖啡馆的功能。后面的花园空间让自然的日光和绿色成为咖啡馆和商店的背景。
To highlight the beauty of the tableware, colors of the shelves and furniture have been kept simple in shape and color. A traditional Japanese styled tea room is directly connected to the store and functions as a café. The garden space located in the back allow for natural daylight and greenery to act as a backdrop of the café and store.

由于该建筑是新旧材料的混合体,因此保留了现有的粘土墙,而新建的隔墙则使用了硅酸钙板。新的板面与客户的瓷器餐具的白色亚光色相匹配。硅酸钙板使用镀金螺丝连接,使螺丝头的间距和高度排列,在白墙表面形成均匀的图案。
Since the building is a mixture of the old and the new materials, the existing clay wall was retained while calcium silicate board was used for the newly constructed partition walls. The new board finish matches the white matte color of the client’s porcelain tableware. The calcium silicate boards were attached using gold-plated screws so that the pitch and height of the screw head were arranged to create an evenly pattered design on the surface of the white wall.



硅酸钙板与石膏饰面混合,以配合质感,未经处理的木材与旧木材连接在一起。疏密有致的金色螺丝头让人联想到金点画瓷器在窑炉烘烤过程中的外观变化。当艺术家通过一种在日本被称为 "kindami "的工艺来涂抹金色表面时,附着物上显示的金色圆点与简单的白色背景形成了对比。店内的美学是一个具有统一感的空间,参考了瓷器的艺术表现。
Calcium silicate board is mixed with the plaster finish to match the texture and untreated wood is joined together with old wood. The sparsely located gold screw heads are reminiscent of the appearance of golden dots painted porcelain that changes during the baking of the kiln. As the artist applies the gold finish through a process known in Japan as “kindami”, the gold dots shown from the attachments in contrasted with the simple white background. The aesthetics of the store is a space with a sense of unity, referencing the artistic expression of porcelain.
















建筑师: Fumihiko Sano工作室
面积: 139 m²
年份:2016年
摄影:Omote Nobutada Omote Nobutada
厂家:Aica, JFE, Jimbo, SANWA SIGNWORKS
首席设计师: Fumihiko Sano
施工单位:Iwamura Construction Firm
城市:京都
国家:日本
Architects: Fumihiko Sano Studio
Area: 139 m²
Year: 2016
Photographs: Omote Nobutada
Manufacturers: Aica, JFE, Jimbo, SANWA SIGNWORKS
Lead Architect:Fumihiko Sano
Contractor:Iwamura Construction Firm
City:Kyoto
Country:Japan