位于伦敦帝国学院的迈克尔-乌伦爵士中心汇集了500多名工程师、临床医生和科学家的研究实验室、办公室和社交空间,他们参与了医疗技术的开发,以改善各种医疗状况的治疗和诊断,从寻找治疗痴呆症的方法到创造仿生肢体。
The Sir Michael Uren Hub at Imperial College London brings together research labs, offices, and social spaces for over 500 engineers, clinicians, and scientists involved in the development of medical technologies to improve the treatment and diagnosis of diverse medical conditions, from finding ways to cure dementia to creating bionic limbs.





作为英国最重要的水泥制造创新者之一,迈克尔爵士的遗产可以从建筑的结构中看到。他开发了磨碎的高炉矿渣(GGBS),这是一种制造钢铁的副产品,可以替代混凝土生产中的碳密集型水泥。我们对南北立面的设计,通过率先在建筑混凝土中使用GGBS,将这位慈善家的工作、减少排放的愿望和我们对白色外观的渴望联系起来。它取代了50%的水泥,减少了外墙的碳足迹。
As one of the UK’s foremost innovators in cement manufacturing, Sir Michael’s legacy can be seen in the very fabric of the building. He developed ground granulated blast-furnace slag (GGBS), a by-product of making steel, as a replacement for carbon-intensive cement in concrete production. Our design for the north and south facades connects the work of the benefactor, the aspiration to reduce emissions,s and our desire for a white appearance by pioneering the use of GGBS in architectural concrete. It replaced 50% of cement and reduced the carbon footprint of the facade.

这些外墙由1300个鳍片组成,每个鳍片高4米,以七种不同的组合方式安装。它们看似随意的排列提供了遮阳和隐私,并产生了一种有节奏的模式,唤起了建筑中的生物医学研究:人工和有机的结合,工程和医学的结合。
These facades are animated by distinctive fields of 1,300 fins, each four meters tall, cast, and installed in seven different permutations. Their seemingly randomized arrangement provides shading and privacy and yields a rhythmic pattern that evokes the biomedical research in the building: the coming together of the artificial and the organic, of engineering and medicine.


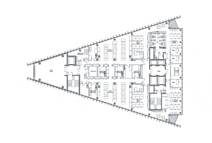
入驻者来自如此广泛的学科,每个人都有非常具体的需求:肌肉骨骼医学工程、关节置换、心血管科学、痴呆症、空气质量和公共卫生。为了适应这种多样性,需要高度灵活和高效的建筑和基础设施,在11种不同的装修布局中容纳9个研究小组。材料既实用又美观,它们的色调被仔细地克制,以提供科学的背景。高高的天花板和窗户为工作和思想交流创造了令人愉快的环境。
Occupiers come from this breadth of disciplines to co-locate, each with very specific needs: musculoskeletal medical engineering, joint replacement, cardiovascular science, dementia, air quality, and public health. To accommodate such diversity required highly flexible and efficient architecture and infrastructure, which houses nine research groups in eleven different fit-out layouts. Materials are functional yet beautiful, their palette carefully restrained to provide a backdrop to the science. Tall ceilings and windows create pleasant environments in which to work and exchange ideas.


该建筑位于帝国理工学院新白城校区快速变化的环境中。它的西北面的未来邻居将是公共卫生学院的专用住宅,目前也是由Allies and Morrison设计的。部分诊所、部分实验室、部分教室、部分办公室,乌伦大楼是城市科学建筑的一种新类型--混合型,能够在一个屋檐下培育多种科学发现,为社会造福。
The building is set within the rapidly changing environment of Imperial’s new White City campus. Its future neighbor to the northwest will be a purpose-built home for the School of Public Health, also currently in design by Allies and Morrison. The part clinic, part lab, part classroom, part office, and the Uren Building is a new typology of the urban scientific building – a hybrid one, able to nurture multiple strands of scientific discovery all under one roof for societal benefit.












Architects: Allies and Morrison
Area : 18150 m²
Year : 2021
Photographs :James Newton
City:London
Country:UNITED KINGDOM