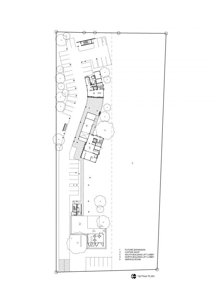
Siriphat是一个女生宿舍,位于玛希隆大学附近的宿舍区。由于土地面积有限,只能利用一半,留下一半供将来扩建,所以土地面积呈狭长的矩形,并面向狭窄的道路。建筑物分为两栋--北楼和南楼,从土地的前面到后面连续铺设。两栋楼之间的空间被规定为一个公共区域,南楼将全天为其遮阳。公共区域包括许多功能,如游泳池、图书馆和花园,分别从楼下到楼上。
Siriphat is a female dormitory, located in the dormitory zone nearby Mahidol University. The land area is limited to utilize only a half, and leaving a half for future expansion, so the land area is narrow rectangular shape and face the narrow side to the road. The buildings are divided into two buildings - North building and South building, lay continuously from the front to back of the land. The space between both buildings is provided to be a common area which will be shaded all day by the South building. The common area includes many functions such as swimming pool, library and garden from the downstairs to upstairs respectively.




由于建筑的形状很长,建筑师将建筑设计成两条平行的曲线,使走廊变得有趣,并与其他邻近的宿舍区别开来。地板和屋顶板像屋檐一样向南和向西扩展,以创造遮阳并减少热量传入墙壁。
Due to the very long shape building, architect designs the buildings as two parallel curves to make corridor interesting and distinctive from the other neighboring dormitories. The floor and the roof slab are expanded like eaves to the South and the West direction to create sun shading and reduce heat transmission into the wall.

裸露的砖块作为主要材料,表达了手工技能和施工意图,其颜色也与周围的建筑相区别。
Exposed brick, the main material, expresses the handcrafted skill and construction intention and its color also differentiates from the surrounding building.

建筑物的前面是商店、餐厅和咖啡馆的位置,为学生居民和外来人员服务。空间从内部、地下室连接到建筑的正面,被划分为不同功能的亭子以及休息区。
At the front of the buildings is where the shop, restaurant, and café located to serve the student residents and also the outsiders. The space is connecting from inside, the basement, to the front of the building which is divided into pavilions serving for different functions as well as the rest area.



































Architects: IDIN Architects
Area : 6700 m²
Year : 2016
Photographs :Spaceshift Studio
Structural Engineer : Pakanut Siriprasopsothorn
System Engineer : Eakachai Hamhomvong, Panot Kuakoolwong
Architect In Charge : Jeravej Hongsakul, Wichan Kongnok, Eakgaluk Sirijariyawat, Sakon Thongdoang, Thuwanont Ruangkanoksilp
City : Salaya
Country : Thailand