我喜欢那些能提醒我真的呆在这个城市里的酒店。
I like hotels that remind me I’m really staying in the city.



你可能认为我是在说显而易见的事,但有多少人可以说你在酒店住了一晚后真正体验了这个城市?
You may think I’m stating the obvious, but how many of you can say you’ve really experienced the city after spending a night in a hotel there?




通常情况下,你从街上通过前门进入酒店,到达一个相当隐蔽的大厅,在那里办理入住。当电梯带你上楼时,你坐在一个箱子里,走过一条昏暗的走廊,打开房间的门,穿过浴室前的狭窄空间,最后到达你要过夜的空间。笼罩在许多层中的房间是如此孤立,以至于你发现自己与东京城隔绝,我想你一定只意识到你住在某个酒店品牌中。
Usually, you enter a hotel from the street through the front door and reach a rather secluded lobby where you check in. You ride in a box as the elevator takes you up, walk down a dimly-lit corridor, open the door to your room and pass through the narrow space in front of the bathroom before finally reaching the space you’ll spend the night in. Enveloped in many layers, the room is so isolated that you find yourself separated from the city of Tokyo, and I think you must be aware only that you’re staying in a certain hotel brand.


我总觉得,这对旅行者来说一定非常无聊。所以,我们想在这里创造的是一个让客人体验城市的独特性的酒店。
I always feel that this must be really boring for the traveler. So, what we wanted to create here was a hotel where guests would experience the uniqueness of the city.


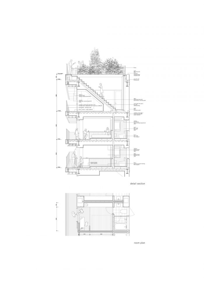
酒店的设计将东京分层的街道直接带入建筑中。每段楼梯,直接连接每层楼和城市,都有不同的设计,就像长崎和尾道等丘陵城市的楼梯一样。这些楼梯通向一个类似于木屋的露天走廊,微风可以吹过。每个房间都可以直接从这个类似于东京罗吉小巷的大厅进入。房间包括这种从走廊进入的engawa式通道和一个doma入口,都让人联想到旅馆的传统客栈,使其新颖、现代而又不失日式风格。推开窗帘和推拉门,你可以陶醉在池袋区的城市景观中,发现你的流浪生活得到了满足。
The hotel’s design brings Tokyo’s layered streets directly into the building. Every flight of stairs, which directly connects each floor with the city, has a different design, just like stairs in hilly cities like Nagasaki and Onomichi. The stairways lead to a loggia-like open-air hallway where breezes can blow through. Every room is directly accessed from this Tokyo roji alleyway-like hall. The rooms include this engawa-like access from the hallway and a doma entryway, both reminiscent of a ryokan traditional inn, making them novel, contemporary yet Japanese. By opening the shoji screens and sliding doors, you can revel in the cityscape of the Ikebukuro district spreading out below, and find your wanderlust fulfilled.

我听说,旅行者在德语中被称为 "流浪的鸟(wandervogel)"。
我希望你能在这家酒店里放松和睡眠,就像它是你飞过的城市的栖息地,依偎在城市的怀抱中。
- 原田正弘,富士山建筑工作室创始人兼建筑师
I’ve heard that a traveler is called “a wandering bird (wandervogel)” in German.
I hope you will relax and sleep in this hotel is if it were a perch in a city you’re flying over, nestled in the city’s embrace.
— Masahiro Harada, Founder and Architect, Mount Fuji Architects Studio










Architects: MOUNT FUJI ARCHITECTS STUDIO
Area: 962 m²
Year: 2020
Photographs: Ryota Atarashi
Structural Engineering: Graph Studio, Yuko Mihara, Graph Studio
MEP Engineering: TETENS
General Contractor: Fujiki Komuten Co.Ltd
Architects:Masahiro Harada+MAO, Takashi Takei
City:Toshima City
Country:Japan