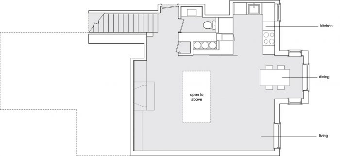
这个位于Dupont Circle的两层阁楼被完全改造成一个充满光线的开放空间。 现有的起居/用餐区的垂直度得到了加强,上面的地板上有一个大开口,用无框透明玻璃栏杆(取代了以前的干墙围墙)使其感觉更大。
This two-story loft in Dupont Circle was completely transformed into an open space filled with light. The verticality of the existing living/dining area is enhanced with a large opening in the floor above, which was made to feel larger with a frameless transparent glass railing (replacing a previous drywall enclosure).



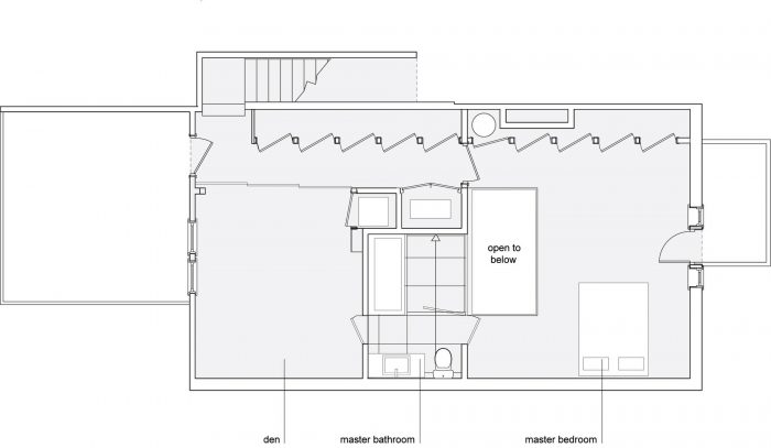
所有的附属房间(厨房、浴室、壁橱和楼梯)都被 "隐藏 "起来,以保持主要的两层楼体的纯粹性。 厨房被扩大了功能,可以 "消失 "在推拉门后面。 装饰性的架子也可以暴露或隐藏起来。
All ancillary rooms (kitchen, bathroom, closets, and staircase) are “hidden away” to preserve the purity of the primary two-story volume. The kitchen was enlarged for function, and can “disappear” behind sliding doors. Decorative shelving can also be exposed or hidden away.

在二楼,一排贯穿整个公寓的壁橱被隐藏在白色枢轴门后面,允许大量的意外存储。 主人的浴室被隐藏在大型磨砂玻璃板后面,从下面的客厅空间作为一个视觉焦点。 由于设计的透明性,中央天窗为每个房间提供了自然日光。
On the second floor a line of closets that runs the length of the apartment are concealed behind white pivot doors, allowing for a great deal of unexpected storage. The master bathroom is veiled behind large frosted glass panels, which serve as a visual focal point from the living room space below. The central skylight provides natural daylight to every room due to the transparency of the design.
















Architects: KUBE architecture
Year: 2014
Photographs: Greg Powers Photography
Contractor: Metrix Construction
Project Designers:Janet Bloomberg, Andrew Baldwin
City:Washington
Country:United States