十九世纪末,波特兰的西北区被命名为 "板坯镇",当时在诺斯鲁普街开设了一家木材厂。工厂废弃的原木边角料或 "板木 "被堆放在工人阶级的住宅前,作为廉价的取暖和烹饪燃料。
In the late nineteenth century, Portland’s northwest quadrant adopted the name Slabtown when a lumber mill opened on Northrup Street. The mill’s discarded log edges or “slab wood” were stacked in front of working-class homes as a cheap source of heating and cooking fuel.




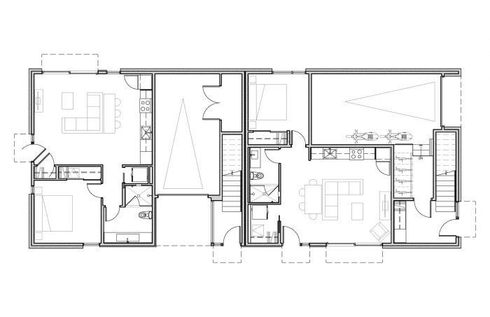
坐落在这个西北社区,Slabtown 4是一个四单元的项目,为一个多代同堂的家庭服务。所面临的挑战是设计两个单户住宅和两个附属住宅单元,每个单元都有私人户外空间和停车场,所有这些都在一个紧凑的占地面积上,以适应狭小的城市地段。四个单元中的三个将由家庭成员居住,第四个作为办公室或提供额外的租金收入。
Located in this northwest neighborhood, Slabtown 4 is a four-unit project for a multi-generational family. The presented challenge was to design two single-family dwellings and two accessory dwelling units, each with private outdoor spaces and parking, all on a compact footprint to fit a tight urban lot. Three of the four units were to be occupied by family members with the fourth as an office or to provide additional rental income.


形式的灵感直接来自于该地区的早期历史,两个木质的体积,或板状木材的堆叠,放置在一个坚实的基础之上。这个坚实的基地为结构提供了基础,并为居住者提供了安全感和隐私。为了保持基座的现代性和整体性,深色的锰铁斑纹砖与相匹配的深色灌浆料相搭配,并采用与周围环境互补的材料,为立面增加了质感。
Inspiration for the form came straight from the area’s early history, with two wooden volumes, or stacks of slab wood, resting on top of a solid base. This solid base grounds the structure and provides a sense of security and privacy for its occupants. To keep the base modern and monolithic, a dark manganese iron spot brick was paired with a matching dark grout with raked joints – adding texture to the façade with a material that complements the surrounding context.

地面层由两个带室外天井的一居室ADU单元组成,上面有两个两层的联排别墅单元,有私人屋顶平台,可以看到西山的景色。联排别墅的比例和重复性在附近的单户住宅和街对面的高密度四层公寓楼之间架起了一座桥梁。
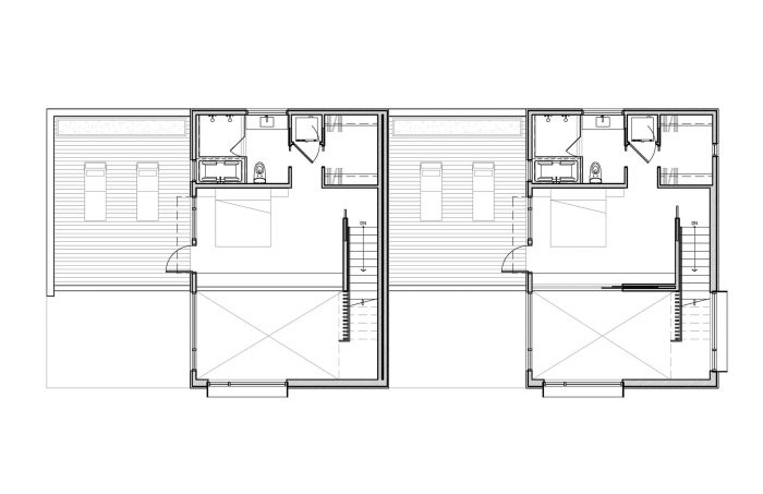
The ground level is comprised of two one-bedroom ADU units with outdoor patios, and two, two-story townhouse units above with private roof decks with views of the west hills. The proportion and repetition of the townhomes bridge the scale between the nearby single-family homes and higher-density four-story apartment buildings across the street.

室内设计干净、简单、现代、简约,略带日本风格。调色板包括天然材料、充斥着日光的白色表面、黑色金属点缀、以及带有整体抽屉拉手的现代白橡木内饰。联排别墅单元具有双层高的生活空间,阁楼式的主卧室,以保持室内空间的明亮、开放和通风。
The interior is clean, simple, modern, and minimal with a slight Japanese influence. The palette includes natural materials, white surfaces flooded with daylight, black metal accents, and modern white oak built-ins with integral drawer pulls. The townhouse units feature double-height living spaces with loft-style main bedrooms to keep interior spaces bright, open, and airy.


两层楼高的白橡木板条的垂直墙为空间增加了纹理元素,保持了透明度,同时作为两层楼梯的护栏发挥作用。当主要生活区位于上层时,保持与室外的联系是很重要的。大型折叠门使其与外部的过渡无缝衔接,并使起居室的面积扩大一倍,以便与较低的屋顶平台相邻,进行娱乐活动。
A two-story vertical wall of white oak wood slats adds a textural element to the space preserving transparency while functioning as a guardrail for the two flights of stairs. Maintaining a connection to the outdoors is important when the main living area is on the upper floor. Large folding doors make the transition to the outside seamless and allow the living room to double in size for entertaining with its adjacency to the lower roof deck.

我们选择了一种大规格的瓷砖,它可以用在带有辐射热的石膏混凝土底层上,也可以用在外面的可调节基座系统上,以保持一个连续的地板表面。三楼的卧室套房可以直接通向上层的屋顶平台,屋顶平台用木头包覆,为瑜伽和赤脚提供一个柔软、温暖的表面。
A large format tile was selected that can be used inside over a gypcrete subfloor with radiant heat as well as outside on an adjustable pedestal system to maintain a continuous floor surface. The third-floor bedroom suites have direct access to the upper roof deck, which is clad with wood to provide a soft, warm surface for yoga and bare feet.

通过尊重这个家庭的愿望,在一个高度适宜步行和充满活力的社区创建四个住宅,其结果是一个可以作为城市环境中多代人生活的典范的住宅。
By honoring the family’s wish to create four homes in a highly walkable and vibrant neighborhood, the result is a home that could serve as a model for multi-generational living in an urban environment.







Architects: Scott | Edwards Architecture
Area : 5000 ft²
Year : 2020
Photographs :Jeremy Bittermann
Manufacturers : AutoDesk, Endicott, Trespa, Sierra Pacific Windows, SketchUp
Lead Architect : Rick Berry
Landscape : Shapiro / Didway
Lighting : O- LLC
Structural Engineer : SFA Design Group
Design Team : Ryan Yoshida, Takanori Tomita, Kate Dougherty, Cameron Cruse
City : Portland
Country : United States