2020年,Atelier Guy建筑师事务所为Smartmill公司设计了新的总部和工厂,该公司为木材加工行业构思了下一代自动化系统。该项目的主要目的是创建一个符合公司愿景的全木材结构的建筑,并提供不仅是功能性的,而且是舒适、明亮和友好的空间。该项目在多个层面上使用了当地的木材和产品,通过将公司的价值观具体转化为新的总部办公室,见证了公司的愿景。
In 2020, Atelier Guy architects designed the new head office and factory for Smartmill, a company that conceives next-generation automated systems for the wood-processing industry. The main aim of the project was to create a building with an all-timber structure, in line with the company’s vision, and to offer spaces that would not only be functional, but also comfortable, bright and friendly. The use of local wood and products at several levels of the project bears witness to the company's vision by concretely transposing its values into its new head office.




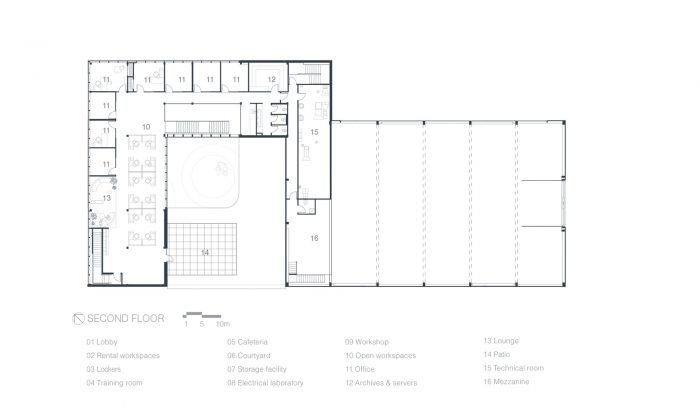
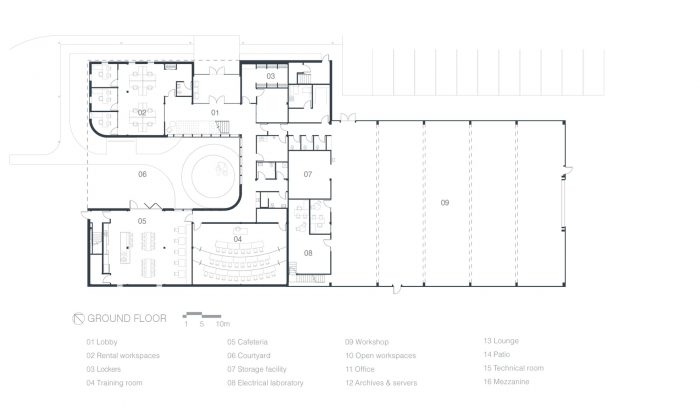
这个新的设施对于满足公司不断增长的需求是必要的,需要一个大约2000平方米的面积。作为创新的展示,该建筑被分为面向街道的行政亭和通往后院的工厂部分。该建筑以一个明亮的室外庭院为中心,充斥着绿色植物,使邻近的空间受益于大量的自然光。事实上,行政部分配备了大窗户,可以直接与中央外院和室外相连。此外,沿着与庭院接壤的透明墙的流通空间突出了内部和外部之间的协同作用。以公司鲜艳的色彩为特色的建筑楼梯穿过大厅,延伸到两层楼,可以通往上层的工作空间。在自然光的沐浴下,一个休息区和一个开放的工作区也可以俯瞰到院子。封闭的管理办公室、会议室、支持、卫生和技术空间沿着平面图的外围运行。行政部分的特点是它的透明度和从入口到内院的轻盈结构。该结构由三个大型的胶合木构件的三角形部分组成,提供了一个无柱的跨度,允许在布局上有很大的灵活性。从街上看,这种结构设计有助于项目的建筑特征,同时巧妙地与公司的标志相呼应。
This new facility was necessary to meet the company’s growing needs and required a surface area of approximately 2,000 square meters. Serving as a showcase for innovation, the building is divided into an administrative pavilion facing the street and a factory section that leads into the backyard. The building is centered around a bright outdoor courtyard, brimming with greenery, and allows for the adjacent spaces to benefit from a lot of natural light. In fact, the administrative section is equipped with large windows that allow for a direct connection with the central exterior courtyard and the outdoors. Moreover, the circulation spaces along the transparent walls bordering the courtyard accentuate the synergy between the interior and the exterior. The architectural staircase, featuring the company's vibrant colors, extends through the hall over two floors, giving access to the workspaces on the upper floor. Bathed in natural light, a lounge area and an open workspace also overlook the courtyard. Closed management offices, meeting rooms, support, sanitary and technical spaces run along the periphery of the floor plan. The administrative section is distinguished by its transparency and the lightness of its structure spanning from the entrance to the inner courtyard. Consisting of three large triangulated sections of glued-laminated timber elements, the structure offers for a column-free span, allowing for great flexibility in the layout. Visible from the street, this structural design contributes to the architectural signature of the project, while subtly echoing the company logo.


工厂空间通过底层直接与行政部分相连。它包括一个由长弧形胶合木桁架构成的拱形屋顶,其设计是为了获得尽可能长的无柱跨度。由此产生的令人印象深刻的空间使地板面积完全可以用于生产。它的特点是天花板很高,能够容纳操作所需的两台桥式起重机。简洁的木质屋顶和车间顶部宽大的水平窗的整合,为工作环境的显著质量做出了贡献。该建筑的大部分外墙覆层是由东部白雪松制成的,这是一种当地的、耐用的、低维护的材料。在外墙的某些部分添加了相同材料的木板和木条边框,使墙面更有质感,并通过由此产生的光和影来丰富外墙的内容。这些设计选择真正展示了在Smartmill的新总部发现的木材的不同侧面。
The factory space is connected to the administrative section directly by the ground floor. It consists of an arched roof made of long curved glued-laminated timber trusses, which was designed to obtain the longest possible span without columns. The impressive resulting space allows the floor area to be completely free for production. It features high ceilings capable of accommodating two overhead cranes required for operations. The simplicity of the timber roof and the integration of a wide horizontal window at the top of the workshop contributes to the remarkable quality of the work environment. The majority of the building's exterior wall cladding is made of Eastern white cedar, a local, durable and low maintenance material. Board and batten sidings of the same material were added to certain parts of the facade, giving the wall a more textured finish and enriching the façade with the resulting light and shadows. These design choices really showcase the different facets of wood found in Smartmill’s new headquarters.
























Architects: Atelier Guy Architectes
Area : 2000 m²
Year : 2022
Photographs :Charles O’Hara
Manufacturers : Ceratec, Juste Du Pin, Norbec, Novo Béton, OlympiaTile+Stone, Prévost Architectural, Sloanstone, Starwall, Tarkett, Teknion
Contractor : Ronam constructions inc.
Project Manager : SmartMill, Vincent Beaudoin
Engineering : Genie +
Design Team : Catherine Bouchard, Antoine Guy
Technical Team : Dany Berthelot
MEP & HVAC : CBTEC
City : Lévis
Country : Canada