从最初与客户的交谈中,sml.房子应该是实用主义和对自然环境的关怀。在材料选择上的常识,保持功能程序的控制,房间的分区,紧凑的身体和个性化的形式和技术解决方案,满足了这些原始的假设。
From the first conversations with customers sml. house was supposed to be pragmatism and care for the natural environment. Common sense in the selection of materials, keeping the functional program in check, zoning the rooms, a compact body and individual formal and technological solutions meet these original assumptions.




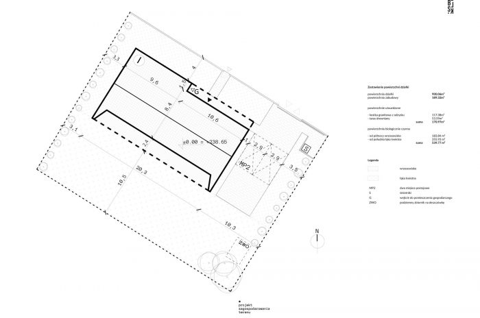
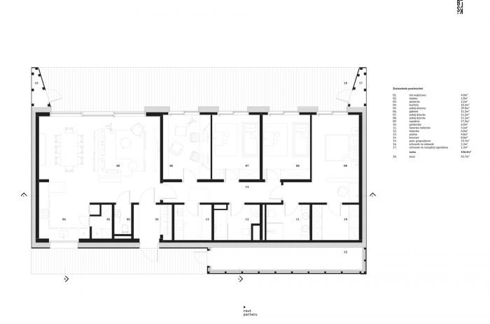
形状。通过保持功能系统的一致性和合理的形式决策,有可能将房屋的总可用能源需求降低到每年40.79千瓦时/平方米。由于需要保持良好的参数绝缘隔断,所有的暗房都位于北侧。从南面看,有一些房间适合长期居住:一个客厅、儿童房、一个卧室和一个书房。它们都有大的、露台式的推拉门,让人有可能从每个房间出去到一个共享的露台。
Shape. By maintaining consistency in the functional system and rational formal decisions, it was possible to reduce the demand for the total usable energy of the house to 40.79 kWh/m2 per year. Due to the need to maintain good parameters insulating partitions, all dark rooms have been located on the northern side. From the southern side, there are rooms for longer stays: a living room, children's rooms, a bedroom, and a study. They all have large, terrace sliding doors giving the possibility to exit from each room to a shared terrace.


建筑物毗邻耕地,在南侧,从长远来看,毗邻森林。为了享受美丽的风景,我们试图协调我们在南侧引进的大型玻璃窗和房屋节能的首要假设。为此,我们从南面使用了一段很深的屋顶露台,这是为了保护房屋在夏季高温时不会过热。同时,大的玻璃窗允许在冬天用太阳能加热房间,这时太阳在地平线上相对较低,太阳光通过玻璃窗直接落在房子里。我们还决定用墙封闭露台的短边,这样在开放空间吹来的东西向的风就不会冷却南面的玻璃幕墙。在封闭的墙壁上,有可能设置小型的公用事业单元。
The building is located adjacent to arable fields and on the southern side, in the longer term, adjacent to the forest. In order to enjoy the beautiful landscape, we tried to reconcile our introduction of large glazing on the south side with the overarching assumption of the house energy-saving. For this purpose, we used a deep section of the roofed terrace from the south, which is to protect the house from overheating during the summer heat. At the same time, big glazing allows for heating the rooms with solar energy in winter, when the sun is relatively low above the horizon and the sun's rays fall through the glazing directly inside the house. We also decided to close the shorter sides of the terraces with walls so that the east-west winds blowing in the open space do not cool the glassed south facade. In the closing walls, it was possible to locate small utility cells.



由于在南面和北面使用了预制屋顶桁架的技术,有可能创造出深的拱廊,而不需要额外的元素支持。由于北面的屋顶,我们能够放弃农场建筑,投资者最初计划将其作为花园里的独立棚子。我们把它缩减为一个隐藏在屋顶下的房间,沿着前门面延伸。由于这样,我们把花园从不必要的立方体中解放出来,干扰了田野和森林的景色。由于使用了可逆热泵和热回收系统,用过的空气流经杂物间,使其变暖,并提供了一个来自北方的额外的缓冲热。
Thanks to the use of the technology of prefabricated roof trusses on the south side and in the north, it was possible to create deep arcades without the need for additional elements supporting. Thanks to the roofing from the north, we were able to give up the farm building, originally planned by investors as a free-standing shed in the garden. We reduced it to a room hidden under a roof, stretching along the front facade. Thanks to this we freed the garden from unnecessary cubature disturbing the view of the fields and the forest. Thanks to the use of a reversible heat pump and a heat recovery system, used air, flowing outside through the utility room, warms it and provides an additional buffer thermal from the north.

材料。在选择建筑材料时,我们试图把重点放在正确的地方。我们专注于高质量、健康的建筑和建筑材料。我们已经把不必要的元素和装饰材料减少到最低限度。在房子的建设中,主要使用了预制技术。承重墙是由预制的膨胀粘土骨料制成的。屋顶桁架由预制的木质桁架制成,只支撑在外部承重墙上。12厘米厚的回收液体聚氨酯被用作地板保温层,其中的主要成分是聚苯乙烯废料。为了提高加热效率,无水石地板被用作装饰材料,它的特点是高导热性。对于屋顶和阁楼的保温,使用了从回收纸中获得的纤维素。同样的材料被用作隔断墙的隔音材料。
Materials. When selecting building materials, we tried to put accents in the right places. We focused on high-quality, healthy construction and building materials. We have reduced unnecessary elements and finishing materials to a minimum. In the construction of the house, mainly prefabricated technology was used. Bearing walls are made of prefabricated expanded clay aggregates. The roof truss was made of prefabricated, wooden trusses supported only on external load-bearing walls.12 cm thick recycled liquid polyurethane was used as a floor insulation layer where the main component is polystyrene waste. To improve heating efficiency anhydrite floor was used as the finishing material, which is characterized by high thermal conductivity. For the thermal insulation of the roof and attic, cellulose obtained from recycled paper was used. The same material was used as acoustic insulation in the partition walls.



















Architects: blsk. studio
Area : 189 m²
Year : 2020
Photographs :Maciej Spiess
Manufacturers : Ruukki, ISOCELL, HANTVERKARPOOLEN, Praefa, Schuco
MEP & HVAC : Grzegorz Krukowski
Designer Of Water And Sewage : Piotr Simka
Electrical & Lightning Designer : Piotr Świerk
Lead Architect & Interior Designer : Mateusz Skalski
Design Team : Paulina Skalska, Mariola Polimirska Mysiak, Sonia Kwiatkowska
Interior Design Team : Agata Pierożyńska, Sonia Kwiatkowska
Visualisations : Michał Laskowski
Usable Area : 189 m2
Total Surface : 146 m²
Volume : 1258 m3
Structural Engineers : Figura Team
City : Gliwice
Country : Poland