这座建筑是一个联排别墅社区的4层住宅楼,已有35年历史。流动 "的理念使人的使用和自然的感觉成为可能,因为多样化和流动的空间改善了沟通和信息交流,促进了工作或使用场景的情绪转换。开放的大窗户带来了光线,而树木则减少了热量。天窗实现了垂直和自由的光线流动,以适应不同的环境和景观。即使在室内也能感受到大自然的变化。
This building is a 4-story residential building of 35 years in a townhouse community. The idea of "flow" enables human use and natural feeling, as the diversified and flowing space improves communication and information exchange, facilitating mood switches for work or use scenarios. The large open windows bring in the light, while trees reduce heat. The skylight enables a vertical and free flow of light for different settings and views. Changes in nature can be felt even indoors.




为了创造空间,我们不得不从一个方案开始,随机分配空间和风格。这个项目却颠覆了这一规则,让空间的概念和场所的精神先入为主,这样,事情就可以按照或超出预期的方式进行。在自然界中没有固定的位置,也没有固定的功能:当人们走进自然界时,空间和功能自然而然地到达;当人们离开时,形式和功能消失。这就说明了自然空间的可能性。 通过去除功能,创造自然的流动,我们拉开了创造的可能性和想象力。
To create space, we had to start with a program and assign the space and style randomly. This project yet overturns the rule, allowing the concept of space and the spirit of place to precede, so that things may follow as or out of expectation. There is no fixation on place nor function in nature: when people walk into nature, the space and function arrive naturally; when they leave, the form and function disappear. Such illustrates the possibility of the natural space. By removing the functions and creating the flow of nature, we pull off the possibilities and imaginations for creation.


打破了住宅的布局和划分,我们关注 "森林和自然 "的主题。通过加入森林中事物流动和变化的空间暗示,我们将自然的活力感带入室内,如永远流动的水,树木和光线的变化的阴影,以及对开放和自由空间的灵活使用。
Breaking away from the residential layout and divisions, we focus on the theme of “forest and nature”. By adding the spatial hints of the forest, where things flow and change, we bring in the sense of natural vibrancy indoors, such as the always flowing water, the changing shadows from trees and light, and the flexible use of the open and free space.

设计要点。森林的印象被带入,以抽象的方式模拟生态,以获得自然的感觉: 天井恢复了户外环境,将山的印象带入室内。我们与艺术家合作,将沉木、岩石和各种本地的山地植物品种融合到一幅画中,模糊了室内外的感官界限。柱子和体量的有机呈现,以及茶馆的不规则形状,模拟了由石头和木板构成的山脊。森林的似曾相识的感觉以抽象和具象的方式被诠释出来。垂直的线条随后平衡了有机的曲线,调和了粗糙和浪漫的野性。平衡新与旧,空间的美是由时间催化的。空间和行为被期望成长、扩展和流动,在使用和特质上更接近于自然。
The Design Points. Impressions of the forest are brought in to simulate ecology in an abstract way for the feeling of nature: The patio restores the outdoor environment, bringing the impressions of mountains indoors. We work with artists to merge sunken wood, rocks, and various native species of mountain plants into a picture, blurring the sensorial boundary of in and out. The organic presentation of pillars and volumes, as well as the irregular shape of the teahouse, simulate the ridges made of stones and wood panels. The deja vu of a forest is illustrated in abstract and figurative ways. Vertical lines then balance the organic curves, toning down the rough and romantic wildness. Balancing the old and the new, the beauty of space is catalyzed by time. The space and behaviors are expected to grow, expand and flow, moving closer to nature in its use and traits.


重新设置物理布局,改变联排别墅的限制,使空间更加流畅。利用事务所提出的自然技术--微气候、多孔性、开放性、自由、流动和自然的引入--设计讲述了通过改造物理环境和使用台湾材料和自然技术来创造一个高度流动、多样化和多用途的生活/工作空间的设计理想。与老房子独特的永恒性相呼应,我们通过物品、设计和空白空间创造出一种时间感。
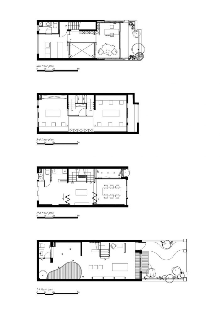
Reset the physical layout to transform the constraints of townhouses for more fluidity in the space: Leveraging natural techniques proposed by the firm— microclimate, porosity, openness, freedom, flow, and the introduction of nature— the design speaks to the design ideal of creating a highly fluid, diverse, and multipurpose living/working space by transforming the physical environment and use of Taiwanese materials and natural techniques. Echoing the unique timelessness of the old house, we create a sense of time via objects, design, and blank space.


在一个新颖的方法中,老台湾的材料被整合到建筑中,使其成为永恒的:为了体现老房子的本质,使用了各种代表台湾的材料。受台湾沿海老建筑墙面上嵌入的贝类碎片的启发,我们在底漆中加入牡蛎壳,向当地使用的精神致敬。水磨石地板选择了半透明的玉石,使得地板可以随着时间和光线的变暗而呈现出不同的外观。
In a novel approach, materials of old Taiwan are integrated into the building, making it timeless: To embody the essence of an old house, a variety of materials representing Taiwan are used. Inspired by the shellfish pieces embedded in the walls of old coastal buildings in Taiwan, we add oyster shells into the base paint, saluting the spirit of local use. The choice of semi-opaque jade for the terrazzo floor allows the floor to take on a different appearance as time and light darken.















Architects: Soar Design Studio
Area : 223 m²
Year : 2021
Photographs :Hey! Cheese
Lead Architect : Ray Chang
City : Taichung
Country : China