干预的重点是对一栋18世纪的农舍进行改造,该农舍是与圣地亚哥卡米诺大道北段相连的养老院,位于Madelos en Sobrado dos Monxes的传统核心区的郊区,与Concello de Boimorto接壤。随着时间的推移,该建筑有了不同的扩展,直到20世纪70年代,由于它的状况不佳而被放弃。在这段时间里,木质结构已经恶化,部分石板墙已经倒塌。如同许多农村地区由于从农村流向城市而被遗弃的过程,造成了景观的转变。因此,社会和文化的变化最终塑造了景观。
The intervention focuses on the reform of a farmhouse from the 18th century hosting a pension linked to the north part of the Camino de Santiago, located on the outskirts of the traditional nucleus of Madelos en Sobrado dos Monxes and bordering Concello de Boimorto. The building has had different extensions over time, until the 1970s when it was abandoned due to its poor condition. During this time the wooden structure has deteriorated and part of the slate walls have collapsed. The process of abandonment, as in many rural areas due to the exodus from rural to urban areas, causes a transformation in the landscape. Thus, social and cultural changes end up shaping the landscape.







建筑物通过从北部重新获得通道,作为小路的延续,与环境重新联系在一起。建筑的功能是一个过渡,通过底层的一个大空间,走向森林里的空地。所有可以从传统建筑中保留下来的东西都被保留下来。为了实现功能而增加的部分,如底层的房间或增加的高度,被保持在最低限度。在需要增加高度的地方和向东南方向开放的空间,由于墙壁的缺失或无法恢复,改革的姿态更为强烈。为了在整个结构中产生对等的外观,透明和传统材料被用于恢复的墙壁。这些新的形式被用来产生被动的气候系统,通过控制温度的窗户、控制阳光的落叶藤和产生热惯性和交叉通风的水池。在一楼,在室内的人行道上标出了寻找森林空地的小径,穿过中央的透光室,分布着建筑的程序。在一楼,一个共同的走廊围绕着面向露台的玻璃表面,通往各个房间。在大众建筑的常识基础上,寻求透明性和建设性的诚意。
The building is re-linked with the environment by regaining access from the north as a continuation of the trail. The building functions as a transition, passing through a large space on the ground floor towards the clearing in the forest. Everything that can be preserved from the traditional building is preserved. The additions that are made for functionality, such as the rooms on the ground floor or the increase in height, are kept minimal. The reformative gestures are stronger in areas in need of more height and the spaces that open towards the southeast, due to the missing or irrecoverable walls. In order to generate that reciprocal look throughout the structure, transparency and traditional materials are used for the recovered walls. These new forms are used to generate passive climatic systems, by means of windows that control the temperature, deciduous vine for solar control and the water pool generating thermal inertia and cross ventilation. On the ground floor, the trail is marked on the interior pavement in search of the forest clearing, crossing the central diaphanous room, which distributes the program of the building. On the first floor, a common corridor around the glazed surface facing the terrace leads to the rooms. Transparency and constructive sincerity were sought based on the common sense of popular architecture.





该项目是通过门户系统、板块、接头和传统材料的结构解决方案来实现的,并以回收的原有结构为支撑。其目的是将建筑与环境中的新需求相结合,通过传统材料和解决方案提供温暖和和谐。同样的事情也发生在内部,外部的力量和光线通过透明材料被引入,在一些区域通过镜子的反射得到加强。黄昏时分,在Souto的巨大黑暗中,建筑就像一个小灯塔,平衡了过去的协同作用,在环境和建筑之间,形成了一个时刻的总和,指向一个不断变化的现实。
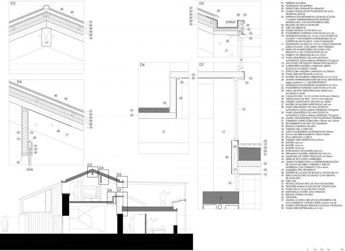
The project is materialized through structural solutions of portal systems, slabs, joints and traditional materials, supported on the recovered pre-existing structures. The intention was to integrate the building with its new needs in the environment with warmth and harmony provided by traditional materials and solutions. The same thing happens on the interior where the power and light of the exterior are introduced through the transparencies, reinforced in areas with reflections created by mirrors. At dusk in the great darkness of the souto, the building appears as a small lighthouse that balances the synergy of yesteryear, between the environment and the construction, forming a sum of instants referring to a changing reality.













Architects: EeG arquitectos
Area: 498 m²
Year: 2019
Photographs: Hector Santos Diez
Manufacturers: HASSLACHER NORICA TIMBER, JUNG, GALA, TEJA VEREA, Thermowood
Structure: E3 Arquitectos
Collaborators:Gabriel Alarcón Sabarís
Design Team:EeG arquitectos
Clients:Abeiro da Loba
Installations:CALCUGAL sl
City:Sobrado
Country:Spain