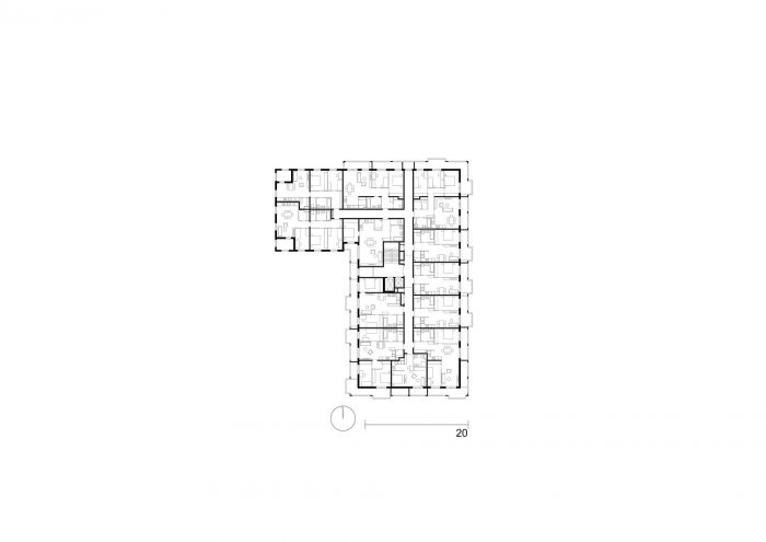
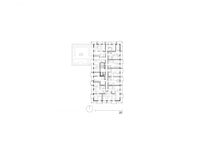
在公园和城市之间正在建立一个多层的木栅栏建筑,以创造社会住房空间。
A multi-story loggia building is being erected between the park and the city to create social housing spaces.



只需最小的干预,该建筑正在从一个没有面孔的现代主义转变为经典的维也纳建筑传统。
With only minimal intervention the building is being converted from a faceless Modernism to the classic Viennese architectural tradition.



尽管它位于城市,但前军营的地面有一个宽敞的绿色区域,有丰富的树木。
Despite its urban location, the grounds of the former barracks have a spacious green area with a rich stand of trees.


这也是建筑设计的出发点,宽敞的、充满光线的结构,特别注意从内部到外部的过渡。
This serves as the starting point for the architectural design, with generous, light-filled structures that pay special attention to the transitions from inside to outside.











Architects: Gangoly & Kristiner Architekten, O&O Baukunst
Area : 11350 m²
Year : 2021
Photographs :David Schreyer
Program : Social housing
City : Wien
Country : Austria