这座房子位于卢莱市的维拉莫拉,是阿尔加维最具旅游价值的地方之一,也是葡萄牙人的顶级度假胜地之一。
The house is located in Vilamoura, municipality of Loulé, one of the most touristic places in Algarve and one of the top vacation destinations of the Portuguese.



该项目位于一个单户住宅区,重点是一个80年代的现有建筑,建议对其进行干预,以扩大和适应新的方案。
Set in a neighbourhood of single-family houses, the project focused on an existing building dating from the 80s and on which it was proposed an intervention aimed at expansion and adaptation to a new program.

因此,修复/扩建项目的重点是以下原则。
设计一个解决方案,将原有的建筑与一个能够解释住房计划并同时适合原有建筑的扩建建议衔接起来。
Thus, the project of rehabilitation / expansion focused on the following principles:
Designing a solution that articulates the pre-existing construction with a proposal of expansion able to interpret the housing program and fit simultaneously to the pre-existing construction.

利用现有建筑的 "L "型结构,对私人和社会区域的明确区分进行投资。
丰富现有房屋的发电机概念,门廊,强调室内和室外的联系,在南面和西面创造更大的开口。
Invest on a clear distinction between private and social areas, taking advantage of the “L” configuration of the pre-existing construction.
Enrich the generator concept of the existing house, the porch, emphasizing the connection between interior and exterior with the creation of larger openings in south and west facades;

插入 "天井 "作为解决房屋自然采光和通风相关问题的额外元素,同时探索交叉的视觉关系。
用水镜增加游泳池的面积,使其总面积与涉及到的建筑成正比,同时创造一个优越的户外生活区域。
Insert the "patio" as an additional element in the resolution of issues associated with natural lighting and ventilation of the house, exploring simultaneously the crossing visual relations;
Increase the area of the pool with a water mirror, resulting in a total surface directly proportional to the construction that involves it, creating simultaneously a privileged area of outdoor living.

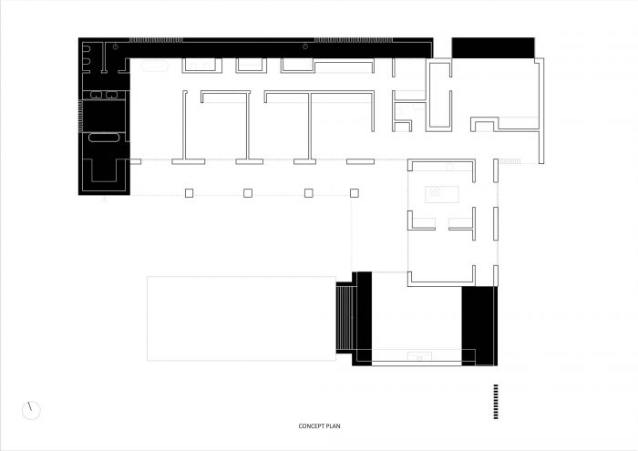
构思。
从体量上看,该项目试图通过纠正一些排列方式和加强建筑最初的 "L "型配置,使建造的物体更加清晰。
新的配置是通过新的体量来实现的,这些体量在现有计划的连续性中与现有建筑相连,并复制了覆盖计划的几何形状,但通过其独特的材料特性而与众不同。
CONCEPT:
Volumetrically, the project tries to introduce greater clarity to the constructed object by correcting some alignments and reinforcing the “L” configuration that the building originally held.
The new configuration is achieved through new volumes that are attached to the existing building in the continuity of existing plans and replicating the geometry of coverage plans, but distinguishing itself through its singular materiality.

最初的建筑砖石计划和暴露的混凝土计划的结合,使我们能够确定房子的不同 "时间",将预先存在的结构和最近的干预结合起来,目的是建立新的空间关系和新的程序性承诺。
这些新的 "机构 "同时能够阐明房子与街道和花园建立的联系,后者是封闭的,而后者是开放的。
The combination of the initial construction masonry plans and the exposed concrete plans allow us to identify the different "times" of the house, combining pre-existing structure with the recent intervention, which are intended to build new spatial relations and new programmatic commitments.
These new "bodies" enabled simultaneously to articulate the connection that the house establishes with the streets, which is closed, and with the garden, which is opened.

方案。
从功能上讲,该项目只分布在一层。
大厅作为一个 "膝盖 "运作,从中区分出两个主要区域--左翼的社交区和通往房间的通道,从入口处穿出。
PROGRAM:
Functionally, the program is distributed on one floor only.
The Hall operates as a “kneecap” from which the two major areas are distinguished - social area on the left wing and the access to the rooms that develops threading the entrance area.

与社会项目相对应的区域包括厨房、餐厅、客厅和直接与游泳池相关的大门廊。
游泳池的延伸支持了客厅和水面之间的视觉关系,同时加强了建筑和游泳池之间的联系,游泳池周围是大型的户外生活区。
The area corresponding to the social program includes the kitchen, the dining room, the living room and the large porch that relates directly to the pool.
The extension of the pool supports the visual relationship between the living room and the water level while enhancing the connection between the building and the pool around which is located the large outdoor living area.

更多的限制区域来自于三个卧室的线性分布,最后一个是房子的主卧室,在那里一个新的体积接收厕所、更衣室和它们之间的一个小天井,负责这两个空间的照明和通风。
在入口处,办公室/图书馆可以自行打开或关闭,压缩或扩大这个区域,在未来有可能将其整合到卧室侧翼。
The more restricted area results from linear distribution of three bedrooms, the last being the master bedroom of the house, where a new volume receives the toilet, dressing room and a small patio between them, responsible for lighting and ventilation in these two spaces.
Still in the entrance area the office/library allows to open or close itself, compressing or dilating this area, with it being possible, in the future, to integrate it in the bedroom wing.

综上所述,所采用的设计策略是对物体的清晰解读和对其用途和功能方案的要求相结合的结果。
天井和门廊负责调解室内空间和房屋的外部。
In synthesis, the design strategy adopted results of the combination between the demand for a clear reading of the object and of its program of uses and functions.
The patios and porches are responsible for mediating the interior spaces and the exterior of the house.

材料。
我们选择使用传统的材料和涂料,如水泥材料、石膏、木材和当地传统的陶器,结合在明显的混凝土和木板模板中的新元素的建设,使材料具有一定的可塑性,使其适应房屋项目的规模。
MATERIALITY:
We opted for the use of traditional materials and coatings, as exemplified by the cement materials, plasters, woods, and the pottery of local tradition, combined with the construction of new elements in apparent concrete with wood planks formwork that allowed a certain plasticity to the material, adapting it to the scale of the house program.

房屋采用米白色的油漆,作为设计的一个衔接元素,将原有的结构和新的建筑元素统一起来。
The painting of the house in an off-white color acts as an articulating element of the design, unifying the pre-existing structure and new building elements.








Architects: Atelier Data
Area : 314 m²
Year : 2014
Photographs :Mercês Tomaz Gomes
Architect In Charge : Filipe Vogt Rodrigues, Inês Maia Vicente, Marta Mateus Frazão
Design Team : Filipe Rodrigues, Inês Vicente, Marta Frazão, Emmanuel Novo
Landscape Architecture : Rui Sequeira
Structure : Augusto Candeias
Infrastructure : Augusto Candeias
City : Quarteira
Country : Portugal