The Somiatruites是两兄弟的项目,一个是建筑师,一个是厨师,他们希望共同踏上一段旅程,让美食和建筑结合在一起,将共同的融合价值观传递给一个街区、一个城市和一个非常特殊的社会文化背景。
The Somiatruites is a project of two brothers, an architect and a chef, with the desire to embark on a journey together where cuisine and architecture would come together and transmit shared values of integration to a neighbourhood, a city, and a very specific socio-cultural context.




该项目始于2013年,对Rec de Igualada社区的一家旧制革厂进行翻新,将其改造成一家餐厅。
The project began in 2013 with the refurbishment of an old tanning factory in the Rec de Igualada neighbourhood, transforming it into a restaurant.

Rec街区位于城墙和河流之间,五百多年来,这里一直是一个大型制革厂与河边小花园并存的地区。虽然那里仍有生产世界上最好的皮革的制革厂,但接连不断的危机让这个伟大的建筑遗产变得空荡荡的。
The Rec neighbourhood, situated between the walls and the river, for more than five hundred years has been an area in which the large tanneries existed alongside small gardens in the riverside surroundings. Though there are still tanneries there producing what is considered to be one of the best leathers in the world, successive crises have left a great architectural heritage empty.

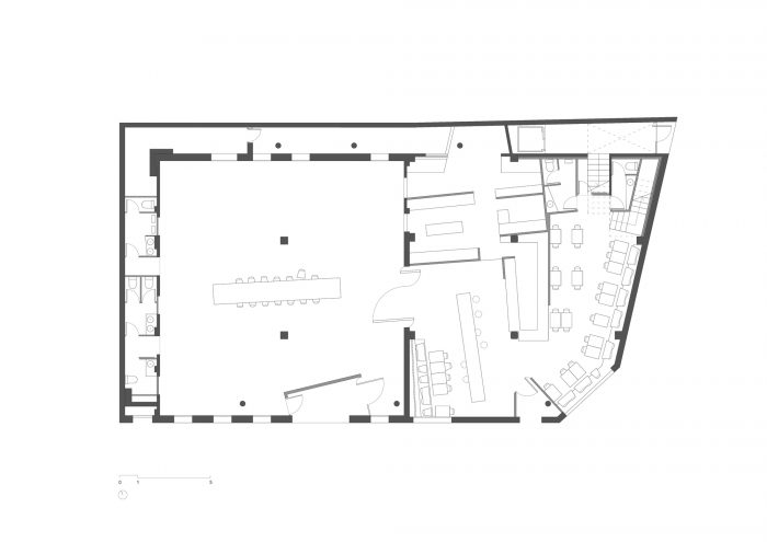
在保持历史联系的同时,贡献一个有能力促进街区复兴的项目是前提之一。酒店是进化的餐厅项目,为制革公司提供了可以接待客户的空间。
Somiatruites酒店的创建意愿是以可持续的方式将自身融入到街区的建筑中,成为全球美食项目的一部分。
Contributing a project with the capacity to promote the regeneration of the neighbourhood, while maintaining historical links, was one of the premises. The hotel is the evolved restaurant project, providing the tanning companies with space where they could host their clients.
Hotel Somiatruites was created with the will to integrate itself into the architecture of the neighbourhood in a sustainable manner and become part of the global gastronomic project.



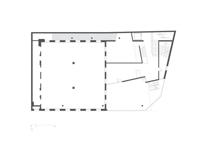
该建筑是以轻金属结构的形式建造的,位于旧制革厂之上,保留了它的原始状态,由一条阴影线隔开,显示了时间的对比,也将新的和旧的、现有的框架融合在一起。
外立面由格子界定,提供遮阳,这是现代人对老式制革厂干燥区格子的致敬。
The building is constructed as a light metallic structure that sits atop the old tannery, preserving it in its original state, separated by a line of shadow that shows the contrast of time and also integrates the new with the old, existing framework.
The facade is defined by lattices that provide shade from the sun and which are a modern-day nod to the lattices found in the drying areas of old tanneries.

覆盖整个屋顶的是一个花园,Rec社区的起源--制革厂之间的花园--在这里汇聚,是对未来可持续社区转型的承诺,也是设计和解释Somiatruites美食的主要工具。花园由生活在那里的鸡施肥,由工厂下面的井水灌溉。
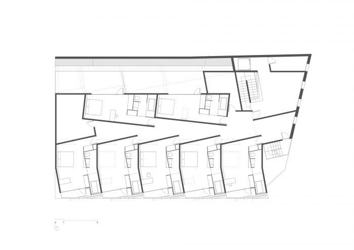
在室内装修方面:以皮革、木头、灯光为工具,营造舒适温馨的空间,适应客人的需求。很多客人都是商务旅行者,这就意味着房间不是简单的房间,而是会议和生活空间,通过可以收进天花板的床和也可以消失的桌子,使得空间可以变换,充满活力。
Covering the whole of the roof is a garden where the origins of the Rec neighbourhood - gardens among tanneries - converge, and is a commitment to a future transformation of a sustainable neighbourhood and the main tool for designing and explaining the Somiatruites cuisine. The garden is fertilised by the chickens living there and irrigated by the well water from beneath the factory.
In the interior: leather, wood, and light are the tools used to create comfortable and welcoming spaces that adapt to the needs of guests. The fact that many guests are business travelers means that the rooms are not simply rooms but also meeting and living spaces, made possible by beds that can be tucked away into the ceiling and tables that also disappears, making the space transformable and dynamic.








建筑师:Xavier Andrés Arquitecte
面积:4628平方英尺
年份:2019年
摄影:Adrià Goula
制造商:Ecowood、GAP Associates、Instamarsa、Sib Bisbal
国家:西班牙Architects: Xavier Andrés Arquitecte
Area: 4628 ft²
Year: 2019
Photographs: Adrià Goula
Manufacturers: Ecowood, GAP Associates, Instamarsa, Sib Bisbal
Country:Spain