"Sora no Mori "是一个法律认可的医疗机构,配备了世界上最高水平的医务人员和最新的设备,但来的人都没有病。我想创建一个村庄,温柔地帮助他们的孩子的自然欲望。
"Sora no Mori" is a legally recognized medical facility equipped with the world's highest level of medical staff and the latest equipment, but the people who come are not sick. I wanted to create a village that would gently help the natural desires of their children.


在冲绳曾经有一个美丽而深邃的森林,同时还有用森林中的树木建造的建筑。这些建筑大部分都在战争中消失了。这个项目是恢复森林的尝试,并创造一个针对在自然中生活的环境。冲绳有一个非常舒适的气候。即使夏天的阳光很强烈,如果你靠近阴影,你会被来自海边的清爽的微风所抚慰。即使在冬天,来自太阳的热量也足以让你感到温暖。而在台风季节,现代结构分析技术使建筑物保持稳定,足以抵御强风的侵袭。
There used to be a beautiful and deep forest in Okinawa along with architecture that are built from the trees of the forest. Most of those have been lost in the war. This project is an attempt to revive the forest and to create an environment directed towards living amongst nature. Okinawa has a very comfortable climate. Even if the summer sun is strong, if you get close to the shadows, you will be soothed by the refreshing breeze from by the sea. Even in winter, the heat from the sun is sufficient to keep you warm. And during the typhoon seasons, modern structural analysis technology keeps the building stable to enough to withstand the strong winds.



基本上,冲绳的气候保持不变,是最适合人们居住的环境。通过这一点,我们将从传统的冲绳建筑中学习与自然相处的智慧,并推动现代尖端结构技术的发展。
Basically, the climate of Okinawa remains the same and it is the most comfortable environment for people to live in. Through this, we will learn the wisdom of living with nature from traditional Okinawan architecture and to push the boundaries of modern cutting-edge structural technology.


该建筑有深深的屋檐和宽阔的走廊,从室内就可以欣赏到大自然。它的设计使房间可以向外开放,从内部拥抱自然。在树荫下保持凉爽,同时体验冲绳的微风。
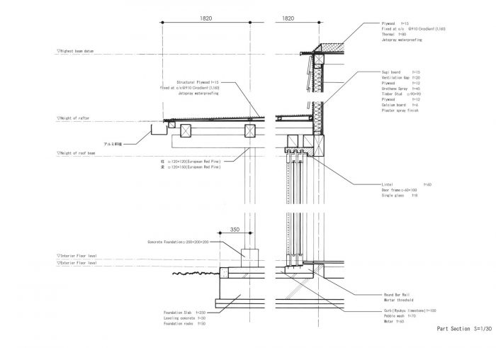
The architecture has deep eaves and wide corridors where nature can be enjoyed from indoors. It is designed such that the rooms could be opened to the outside and to embrace nature from within. Staying cool in under the shade whilst experiencing the Okinawa breeze.

亭子排在路的尽头,这都是通往冲绳丰富的琉球石灰岩地面。这是一个放松的地方,可以在手术后休息和停留。检查室被设计成一个大型生活空间,供病人接受咨询。花园中种植的大部分植物都来自琉球群岛。这些植物的类型都是经过精心挑选的,以便它们能够相互补充,并且这些植物的存在是为了传递一种平静的气味。Sora no Mori "是一个完全用木材建造的建筑。不同类型的木材被精心挑选用于结构和内部装饰,以达到自然的纺织质量。
Pavilion is lined up at the end of the road, which is all led to the rich Ryukyu limestone floor of Okinawa. It is a relaxing place to rest and stay after the procedure. The examination room is designed as a large living space for patients to receive consultations. Most of the plants that grown in the garden originates from the Ryukyu islands. The plant types are carefully chosen so that they complement with each other, and that the vegetation exist as a way to deliver a calming scent. ‘’Sora no Mori’’ is an architecture that is fully constructed with timber. Different types of wood are carefully selected for the structure as well as the interior finishes in order to achieve a natural textile quality.

位于设计中心的是一个巨大的无窗建筑。这是指被琉球石灰岩包围的首里城堡的基地。这是一个高性能的洁净室,包括手术部、采卵室、人工授精室等,充分利用了最新的医疗技术。每个房间的空气压力都得到控制,创造了一个特殊的环境,使细菌极难进入。另一方面,能够接受治疗的人可以看到的手术室和取卵室,其墙面设计采用了没有拐角的弧形线条。包括由场景控制装置控制的波动的照明创造了一个放松的空间。
Located in the centre of the design lies a huge windowless building. This is in reference to the base of Shuri Castle surrounded by Ryukyu limestone. It is a high-performance clean room that includes an operating department, egg collection room, artificial insemination room, etc. that make full use of the latest medical technology. The air pressure in each room is controlled, creating a special environment that makes it extremely difficult for bacteria to enter. On the other hand, the operating room and egg collection room, which can be seen by those who can receive treatment, are designed with a wall surface that uses curved lines without corners. Lighting that includes fluctuations controlled by the scene control device creates a relaxing space.

"Sora no Mori "是一个面向未来的信息。它是一个 "怀旧的未来",在向过去学习的同时融入了尖端技术。希望这种尝试能够超越场地的界限,作为对整个冲绳或整个世界的信息。
“Sora no Mori” is a message for the future. It is a "nostalgic future" that incorporates cutting-edge technology while learning from the past. In hopes that this attempt will spread beyond the boundaries of the site as a message to the whole of Okinawa or the whole world.









Architects: Tezuka Architects
Area: 2996 m²
Year: 2014
Photographs: Katsuhisa Kida / FOTOTECA
Manufacturers: AutoDesk, Toto, LIXIL , Microstation, Mitsubishi, Panasonic
Client:Kyoutsukikai Medical Corporation
Design Team:Tezuka Architects, Tezuka Architects
Structure:Ohno JAPAN, Ohno JAPAN
Construction Company:Okidenko Company Limited, Okidenko Company Limited
City:Yaese
Country:Japan