该项目是奥斯陆港口地区名为Sørenga的8个街区/900个单元开发项目的一部分。Sørenga项目位于自己的半岛上,是大型Bjørvika开发项目的一部分,其中还包括新挪威歌剧院大楼。
The project is part of an 8 block / 900 unit development named Sørenga in the harbor area of Oslo. The Sørenga project is located at its own peninsula, and is part of the large Bjørvika development, that also includes the New Norwegian Opera building.


该地曾用于港口活动,现在已经搬迁。LPO建筑事务所的总体规划要求将900个单元分成8个街区。四个不同的建筑师小组被选来设计各个区块。
The site was used for harbor activities which is now relocated. A master plan by LPO Architects calls for 900 units divided into 8 blocks. Four different groups of architects have been chosen to design the individual blocks.

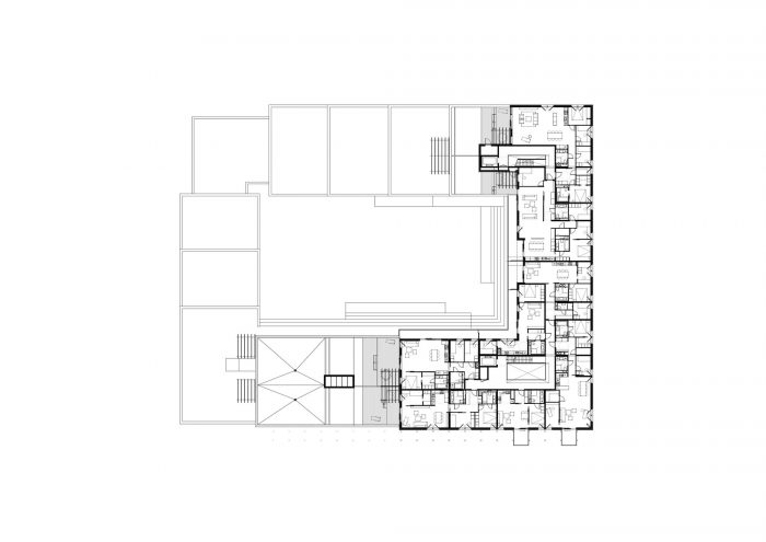
3号街区位于半岛的东侧。该开发项目的特定后退规则被用来制作一个梯田和高度雕塑化的体积构成,为所有的公寓提供优化的阳光和视野条件。大部分的屋顶面积将被用于露台。该建筑是一个传统的块状结构,具有清晰的外部和内部。慈祥的花园被表现为它自己的角落体积。3号楼约14500平方米,包括127套公寓,一个亲切的花园,一个小的商业空间和停车区。
Block 3 is located at the east side of the peninsula. The specific set‐back rules for the development has been utilized to make a terraced and highly sculptured volumetric composition that provides for optimized sun and view conditions for all the apartments. Most of the roof area will be used for terrace purposes. The building is a traditional block structure with a clear outside and inside. The kinder garden is expressed as its own corner volume. Block 3 is about 14.500 m2 which includes 127 apartments, a kinder garden, a small commercial space and parking areas.


四个合作的建筑团队同意在外墙使用一种共同的主要材料;一种深蓝色的砖,具有反射性的表面。3号街区的庭院一侧采用了抗海水的铝板。
The four collaborating architectural teams have agreed upon using a common main material for the facades; a dark bluish brick, with a reflective surface. The courtyard side of block 3 is clad in seawater resistant aluminum panels.













Architects: JVA
Area : 14500 m²
Year : 2012
Photographs :Nils Petter Dale, Knut Bry
Manufacturers : Press Glass
City:OSLO
Country:Norway