南波西米亚村庄的家庭住房通常是什么样子的?找到尽可能小的地块,通常是在一个大地产的前院里。尽可能快地在上面建造一个带坡屋顶的小方屋。用酒红色的混凝土屋顶瓦片和蓝色或绿色的外墙来装饰它。用典型的板式围栏将地块包围起来,沿途种植雷公藤树。
What does the usual construction of family houses in South Bohemian villages look like? Find the smallest possible plot of land, often in the forecourt of a large property. Build a small square house with a hipped roof on it as quickly as possible. Decorate it with burgundy concrete roof tiles and a blue or greenish facade. Surround the plot with a typical panel fence and plant thuja trees along it.



我看不到景观,怎么办?最重要的是,没有人能看到我。后来发现房子并不能满足我的所有需求。建一个车库,最后,把它改成一个双车库。为割草机和工具添加一个花园房子,为烧烤棚添加一个凉亭,为木材添加一个凉亭,用联锁铺面连接一切。
What about the fact that I can't see the landscape? The most important is that no one can see me. Find out later that the house doesn't cover all my needs. Build a garage, and eventually, convert it into a double garage. Add a garden house for the lawn mower and tools, a gazebo for grilling shed for wood, and connect everything with interlocking paving.



米利丁的家庭住宅是我们对如何用现代建筑进入南波西米亚村庄环境的答案。我们从一开始就知道,我们想创造一个简单和慷慨的体量,可以容纳一个家庭的所有需求。
The family house in Miletín is our answer to how to enter the environment of a South Bohemian village with contemporary architecture. We knew from the beginning that we wanted to create a simple and generous volume that could accommodate all the demands of a family.

房子,将不需要为了创造自己的亲密感而躲避周围的环境,因为质量本身决定了院子和框架周围的田野和森林。房子的外墙与发展的特征相辅相成,它不只是创造一个硬边界 "栅栏后面的地雷 "和那个周围。
House that will not need to hide from its surroundings in order to create its own intimacy, because the mass itself determines the yard and frames surrounding fields and forests. The facade of the house complements the character of development, it does not just create a hard boundary „mine behind the fence“ and that around.

我们在工作中采用屋檐屋顶和传统比例的典型形状,寻找其空间变化。没有必要过多地考虑房子的物质性,我们遵循传统和经验。白色和橙色,石膏墙和海狸尾巴的瓷砖出现在景观中。
We work with the archetypal shapes of gable roofs and traditional proportions, looking for their spatial variations. There is no need to think too much about the materiality of the house, we follow tradition and experience. White and orange color, plastered walls and beaver tail ceramic tiles appear in the landscape.


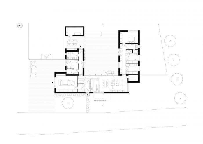
三翼建筑在一翼提供技术设施、车库、书房和带盖的户外厨房。第二翼与通道平行,占据了入口和主要的生活空间,并升至屋顶。覆盖着门廊的玻璃墙将其与院子相连。第三翼作为一个亲密的卧室区。
The three-wing building offers technical facilities, a garage, a study room, and an outdoor kitchen with covered seating in one wing. The second wing, parallel to the access road, occupies the entrance and main living space raised to the roof. Glass wall covered with a porch connects it to the yard. The third wing serves as an intimate bedroom area.






















Architects: Atelier 111 Architekti
Area : 336 m²
Year : 2021
Photographs :BoysPlayNice
Manufacturers : TON, Maimana
Architect : Jiří Weinzettl, Barbora Weinzettlová
Project : Michal Hamada
Country : Czech Republic