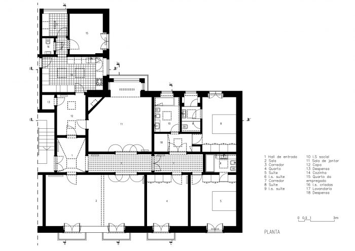
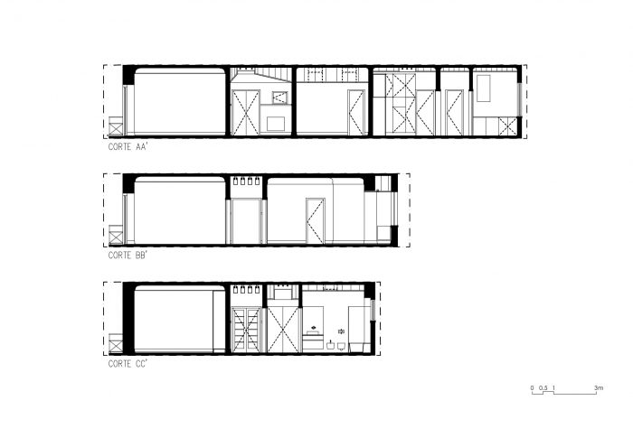
该公寓的空间本质保持了原来的规划,尽管整个内部被翻新了。
The spatial essence of the apartment was maintained in its original plan, although the whole interior was renovated.





由于有两个厕所通向同一个空间,我们创造了两个舒适的套房,令人惊讶的是,在这样一个大而高贵的公寓里,以前并不存在这种套房。
Since there were two toilets opening to the same space, we created two comfortable suites, which surprisingly didn’t exist before in such a big and noble apartment.

随着不同类型和形状的室内照明的创造,所有广泛的通道都变得生动起来。
With the creation of different types and shapes of interior illumination, all the extensive passageway was animated.




















Architects: João Tiago Aguiar Arquitectos
Area : 2583 ft²
Year : 2016
Photographs :Fernando Guerra | FG+SG
Manufacturers : Efapel, -, CIN, MOSAICOS D’ALCARIA, MÁRMORES IRMÃOS BERNARDES, PADIMAT
Lead Architect : João Tiago Aguiar
Project Team : Ana Caracol, João Nery Morais, Rúben Mateus, André Silva, Maria Sousa Otto, Rita Lemos, Alexandra Tavares, Renata Vieira
Builder : Oficina dos Sonhos
City : Lisbon
Country : Portugal