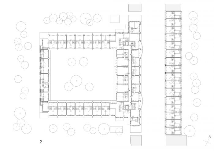
Spaarndammerhart恢复了Spaarndammer街区的城市结构。在20世纪70年代因建造当地学校而消失的街道,Spaarndammerschool,已经被恢复了。该计划还恢复了两道街墙,并为该社区增加了一个公共庭院。通过两个大门可以进入,它也与德克勒克的标志性建筑 "船 "相连接。事实上,该街区的特点是有几个世界著名的阿姆斯特丹学派的纪念碑。
The Spaarndammerhart restores the urban fabric of the Spaarndammer neighborhood. The street that disappeared in the 1970s for the construction of the local school, Spaarndammerschool, has been restored. The plan also brings back two street walls and adds a public courtyard to the neighborhood. Accessible through two large gates, it also connects to De Klerk's iconic ‘The Ship’ building. In fact, the neighborhood is characterized by several world-famous monuments of the Amsterdam School.



2
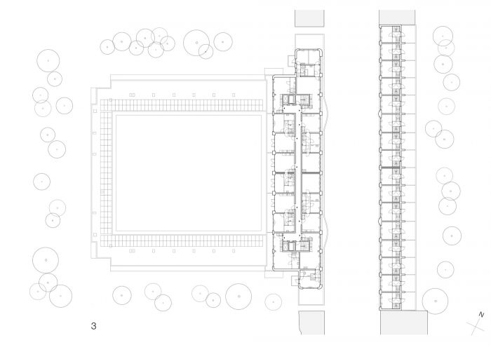
该项目的位置不仅被德克勒克的Het Schip和Spaarndammerplantsoen包围,而且还被瓦伦坎普的Zaanhof和De Bazel的Zaandammerplein包围。虽然Spaarndammerhart的建筑是明确的当代建筑,但它也有对这些阿姆斯特丹学派经典的微妙参考。例如,该建筑采用了丰富而细微的红砖和黄砖砌体,庭院的 "内部立面 "采用了釉面砖,明确的立面结构采用了细长的型材框架,以及沿建筑体量的 "软 "渐变。此外,视觉艺术--在这种情况下,由Martijn Sandberg设计--是大型建筑和景观设计的一个组成部分。
The project’s location is surrounded by not only De Klerk’s Het Schip and Spaarndammerplantsoen, but also Walenkamp’s Zaanhof and De Bazel’s Zaandammerplein. And while the architecture of Spaarndammerhart is unmistakably contemporary, it also has subtle references to these Amsterdam School classics. For instance, the building features rich and nuanced masonry in red and yellow brick, glazed bricks for the 'interior facades' of the courtyard, slender profile frames in an unambiguous facade structure, and ‘soft’ progressions along the building’s mass. In addition, visual art – in this case by Martijn Sandberg – is an integral part of the larger architecture and landscape design.


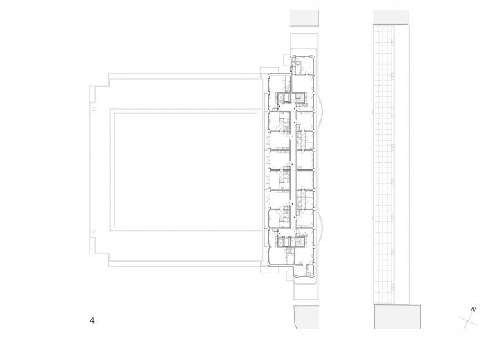
在这个大型街区,房屋和公寓被设计成不同的类别和类型:包括为初创者、老年人和较大的家庭提供的社会租赁住房,为私人租赁部门提供的租赁公寓,以及在一个公共庭院中的自住房屋。公寓的出入口位于两个大门处,可同时进入房屋和院子。通往地下停车场的坡道也位于南门。
In the large block, houses and apartments have been designed in different categories and typologies: including social rental housing for starters, seniors and larger families, rental apartments for the private rental sector, and owner-occupied homes in a communal courtyard. The apartment entrances are located at two gates, which provide access to both the houses and the courtyard. The ramp to the underground parking garage is also located at the southern gate.


大门上方的阳台突出,所以它们清楚地标明了从街上的入口。在大门上,Martijn Sandberg的艺术作品描绘了与邻里的 "时间联系"。两个社会空间和一个居民公共区域为社区功能提供了空间,并强调了 "集体 "的概念。根据DS景观设计师的设计,一个 "绿垫 "已经在院子里铺开。一个集体花园被放置在现有建筑和新建筑之间,周围的房屋也可以进入。
The balconies above the gates protrude so they clearly mark the entrances from the street. In the gates, the art of Martijn Sandberg depicts the 'connections in time' with the neighborhood. Two social spaces and a communal area for residents provide space for neighborhood functions and underline the concept of ‘collectivity’. A 'green cushion' has been laid out in the courtyard following a design by DS Landscape Architects. A collective garden is placed between the existing buildings and the new construction, which is also accessible to the surrounding houses.

小区由四层楼的地面生活/工作用房组成(自有部门)。这个街区的特点是每栋房子的垂直衔接,以及通往后花园和地下储藏室的两个窄门。在这里,花园也是集体的,以确保长期保留绿色特征。所谓的 "侵占区 "已被应用于整个项目。这些是公共街道和私人住宅之间的过渡区。
The small block consists of ground-level living/working homes in four stories (owned sector). The characteristic of this block is the vertical articulation per house and the two narrow gates to the rear garden and the underground storage rooms. Here too, the gardens are collective in order to ensure the green character is retained for the long term. So-called 'encroachment zones' have been applied throughout the project. These are transition zones between the public street and the private home.


它们由一个用青石铺成的深凹处组成。它邀请居民来使用这些地方。这符合阿姆斯特丹的传统,即房屋朝向街道。该住宅区共包括80套住宅,其中包括26套社会住房,18套私人部门的出租房,以及36套自住的住宅。此外,还有两个社区区域,一个公共房间,一个可容纳56辆小汽车的地下停车场,以及100多个昆虫、蝙蝠和鸟类的设施。
They consist of a deep recess paved with bluestone. It invites residents to appropriate these places. This fits in with an Amsterdam tradition of having houses oriented towards the street. The residential block comprises a total of 80 homes, including 26 social housing, 18 private sector rental, and 36 owner-occupied homes. In addition, there are two community areas, a common room, an underground parking garage for 56 passenger cars, and more than 100 facilities for insects, bats, and birds.

























Architects: Korth Tielens Architects, Marcel Lok_Architect
Area : 12676 m²
Year : 2021
Photographs :Dennis De Smet
Manufacturers : Deppe brickwork, Kawneer, Muhr brickwork, St Joris brickwork, Stahlbau, Vande Moortel
Lead Architects : Mike Korth, Marcel Lok, Gus Tielens
Structural Engineer : Strackee
City : Amsterdam
Country : The Netherlands