当维也纳Speising消防站的警报响起时,消防员只有30秒的时间来准备和出动。在分秒必争的情况下,建筑师的首要任务是确保最佳的流程效率,从而实现战术功能。同时,这个重要的基础设施项目,一个一年365天、一天24小时都有工作人员的建筑,其简介要求有一个独特的建筑设计。
When the alarm sounds at Vienna’s Speising Fire Station, the firefighters have just 30 seconds to get ready and turn out. When every second counts, the primary task of the architect is to ensure optimum process efficiency and so tactical functionality. At the same time, the brief for this vital infrastructure project, a building that is staffed 24 hours a day and 365 days a year, called for a distinctive architectural design.



1927年夏天,维也纳消防队搬进了位于Speisinger街的新建房舍,这是维也纳第13区最繁忙的交通要道之一。90年过去了,这些房舍已经不再能满足一个紧急服务机构的业务需求,而这个机构的作用正在不断地演变和扩大。2018年,维也纳市议会的消防和灾难应对部门发起了一个设计竞赛,以取代现有的面向街道的结构,并对其背后的主楼进行重组和总体翻新。illiz architektur公司的获奖作品的工作于2021年1月完成。
In the summer of 1927, the Vienna Fire Brigade moved into newly built premises on Speisinger Straße, one of the busiest traffic thoroughfares in Vienna’s 13th district. 90 years on, these premises had ceased to meet the operational needs of an emergency service whose role was constantly evolving and expanding. In 2018, Vienna City Council’s Fire and Disaster Response Department launched a design competition for a building to replace the existing street-facing structure and the reorganization and general renovation of the main building behind it. Work on the winning entry from illiz architektur was completed in January 2021.

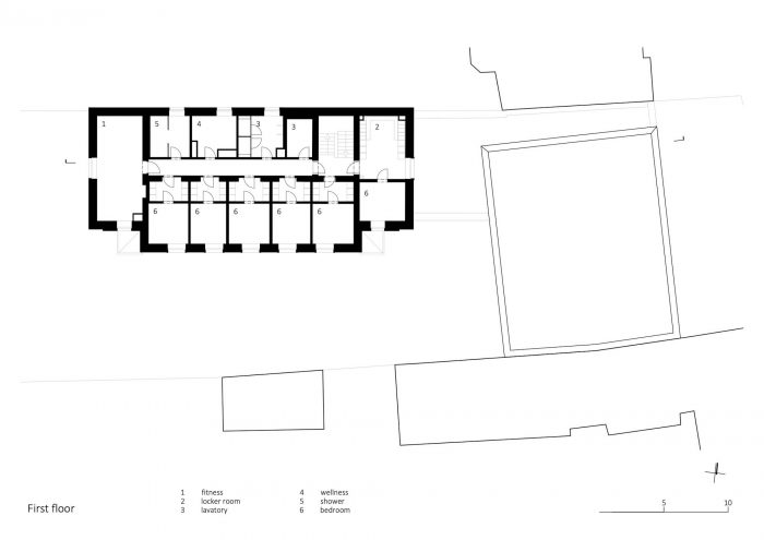
改造后的车站包括三个空间/功能单元:车辆大厅、高活动区和安静的房间。位于场地后部的19C后期建筑的空间,从街道向后延伸了一段距离,已经被重新组织,现在可以完全使用了。公共区域和厨房与相邻的餐厅和室外露台位于一楼;12名消防员的六个安静的 "准备室 "被安置在楼上。新的单层车辆大厅面向街道。现在由一个低层的 "连接结构 "连接,它也是消防站的主要入口,大厅和原来的建筑仍然是可识别的独立结构。值班长的办公室被战略性地安置在靠近这个主入口的地方,位于车辆大厅和公共区域之间。
The revamped station comprises three spatial/functional units: vehicle hall, high-activity areas, and quiet rooms. The space in the late 19C building at the rear of the site, which extends back some distance from the street, has been reorganized and is now fully usable. The common areas and kitchen with adjoining dining room and outdoor terrace are located on the ground floor; the six quiet “ready rooms” for the twelve firefighters are accommodated upstairs. The new single-story vehicle hall faces the street. Now connected by a low-level “linking structure”, which also forms the main fire station entrance, both the hall and the original building remain recognizably independent structures. The watch commander’s office is strategically positioned close to this main entrance, between the vehicle hall and the common areas.


车辆大厅的热解耦设计既高效又可持续。考虑到施工时间短,我们选择了高度的预制件,预制混凝土构件和空心板横跨12米宽的大厅,三辆红色消防车随时准备出动。沿着后墙排列的是一系列的红色储物柜。在其他地方,大厅的内部以清水混凝土为主,这是一种不易燃的材料,传达出一种安全感。在大厅的左边,一个高大的入口门控制着通往内部庭院的通道,它为工作人员的停车和培训演习提供了空间。在右边,立面高度的变化表明后面是较低的辅助房间。
The thermally decoupled design of the vehicle hall is both efficient and sustainable. A high degree of prefabrication was chosen in view of the short construction time, with precast concrete elements and hollow-core slabs spanning the 12-meter-wide hall, where three red fire engines stand ready to turn out at a moment’s notice. Arrayed along the rear wall is a series of red lockers. Elsewhere, the interior of the hall is dominated by fair-faced concrete, a non-flammable material that conveys a sense of safety. To the left of the hall, a high entry gate regulates access to the interior courtyard, which provides space for staff parking and training exercises. To the right, a change in facade height indicates the lower ancillary rooms behind.

新建筑为Speisinger Straße提供了一个连续的面孔,并使前院变得更加清晰。巨大的车辆大厅高达六米,与大的城市环境融为一体,而功能性的建筑围护结构及其特有的高大的折叠式车库门则提供了一个非常独特的标志。立柱和拱形门风格的外墙产生了意想不到的构造效果,功能性的外墙高度在与右侧相邻的防火墙的交界处形成了一个受欢迎的缺口。
The new build presents a continuous face to Speisinger Straße and gives the forecourt a newfound clarity. While the outsized vehicle hall, rising to a height of six meters, blends into the larger urban context, the functional building envelope with its characteristically high folding garage doors provides a very individual stamp. The column-and-architrave style facade creates an unexpectedly tectonic effect and the functional drop-in facade height creates a welcome gap at the junction with the adjoining firewall on the right.


选择维也纳外墙经常出现的经典黄色--在Speising占主导地位--有助于将新建筑与周围环境联系起来。这种强烈的原色将外墙的各种金属元素聚集在一起,并赋予Speising消防站自己独特的特征。作为一个整体,该项目为消防员提供了一个保护性的公共服务空间,他们经常冒着自己的生命危险去拯救他人。
The choice of the classic yellow so often found on Viennese facades – and which dominates in Speising – helps tie the new building into its surroundings. This strong primary colour brings together the various metal elements of the facade and gives Speising Fire Station its own distinctive character. Taken as a whole, the project offers a protective, public-service space for the firefighters who regularly risk their own lives to save those of others.









Architects: Illiz Architektur
Area: 605 m²
Year: 2021
Photographs: tschinkersten
Lead Architect: Daniel Sutovsky
Building Physics: RWT plus ZT GmbH
Electrical Engineering: Woschitz Engineering ZT GmbH
Construction Work: Steiner Bau GesmbH
Roofing Works:C & R Abdichtungstechnik GmbH
Sanitary Systems:FM Installations GmbH
Control Engineering:Hans Lohr GmbH
Electrical Systems:Gottwald GmbH & Co KG
Windows:Felbermayer Fenster und Türen
Metal Works And Glazing:Allmetall Aluminium- und Stahlbau GmbH
Metal Works Doors:Adolf Tobias GmbH
Aluminum Facade:Reinhard Eder Blechbaugesellschaft m.b.H.
General Metal Works:Bekehrti GmbH
Tiling Work:AS Stein & Fliesendesign GmbH
Cast Stone:AFS Stein GmbH
Flooring:Drini Memedi KG
Dry Lining:Friedrich Kletzenbauer Trockenbau GmbH
Painting Work:Koch Alexander e.U.
Statics:RWT plus ZT GmbH
Building Services:Woschitz Engineering ZT GmbH
Fire Protection:Ederer WKSB GmbH
City:Wien
Country:Austria