这个项目的核心是一个典型的实验:在一个相对较小的城市地块上建造最多的带有私人花园的个人住宅;一个密度为每公顷约40栋房屋的更紧凑的住区的发展模式。它的目的是为那些希望在城市背景下住在私人住宅中的人们提供一个替代生活在大城市边缘的选择。该项目试图为高密度低层开发固有的类型学挑战找到答案。 多少个性是可能的?有多少隐私是必要的?需要多少集体形式?多大程度的社区和社会互动是可取的?
This project is in its core a typological experiment: a maximum of individual homes with private gardens on a relatively small urban plot; a model for the development of more compact settlements with a density of approx. 40 houses per hectare. It aims to offer an alternative to living on the periphery of big cities for people who would like to live in a private house in a more urban context. The project tries to find answers to the typological challenges inherent to high-density low-rise developments: How much individuality is possible? How much privacy is necessary? How much collective form is required? How much community and social interaction is desirable?




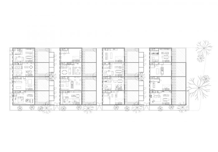
条纹和墙体的组合。该住宅项目已在荷兰阿纳姆市实现。该项目位于19世纪有吸引力的Spijkerkwartier社区和一个小型社区公园之间的边界。建筑体量被组织成四个平行的条带,每个条带由四个或多或少相同的梯形房屋组成。
Ensemble of stripes and walls. The housing project has been realized in the Dutch city of Arnhem. The site lies on the border between the attractive 19th century neighbourhood Spijkerkwartier and a small community park. The building volume is organized in four parallel stripes, each consisting of four more or less identical terraced houses.

北面的外墙相对封闭,而朝南的外墙则相当开阔,以便让阳光最大限度地进入住宅。条带之间的各个花园都有围墙,以保证居民足够的私密性。花园围墙被设计成建筑的一个组成部分。两组独立的自行车存储空间位于房屋的条纹之间。
While the north facades are relatively closed, the facades facing south are quite open to allow for a maximum of sunlight to enter the homes. The individual gardens between the stripes are walled to guarantee enough privacy for the inhabitants. The garden walls are designed as an integral part of the architecture. Two clusters of individual storage space for bicycles are located between the stripes of houses.

住宅通过3米宽的小巷进入,作为居民的集体空间。每条小巷都有一个小门,标志着公共空间和集体空间的边界。树木和灌木的紧凑景观围绕着房屋延伸。它的功能是作为一个绿色缓冲区,并有助于将项目定义为一个实体。
The homes are accessed through 3-meter-wide alleys, that function as collective spaces for the inhabitants. Each alley is closed off with a small gate that marks the border between public and collective space. A compact landscape with trees and bushes stretches around the houses. It functions as a green buffer and helps to define the project as an entity.

该项目将自己作为一个集体的集合体,以一个清晰的,几乎是雕塑的城市形式,表达了居住区作为一个建筑结构的想法。此外,建筑使居民可以被识别为一个小社区的一部分,而不仅仅是一个单独房屋的居民。
The project presents itself as a collective ensemble with a clear, almost sculptural, urban form that expresses the idea of the settlement as one built structure. Furthermore, the architecture makes the inhabitant recognisable as part of a small community instead of being merely an inhabitant of an individual house.



有空隙的房屋。12米x7.5米的简易房屋相当灵活,可以容纳不同的个人生活方式。最多可以有5个睡房,客厅和浴室的位置不同。一楼的自由高度为2.8米,一楼为2.65米。两层楼都有一个开放式楼梯连接,以减少单纯的流通空间。楼梯被放置在一个4,5m x 3,1m的空隙内。这个空间让冬日的阳光进入房子的深处,形成了住宅的空间中心。
Houses with a void. The simple homes of 12m x 7,5m are quite flexible and can house different individual lifestyles. Up to five sleeping rooms with different positions of the living- and bathrooms are possible. The free height of the ground floor is 2,8m while the first floor is 2,65m. Both floors are connected with an open stair to reduce mere circulation space. The stair is placed inside a void of 4,5m x 3,1m. This space allows the winter sun to enter into the depths of the house, and forms the spatial centre of the home.

朝南的玻璃幕墙在房子和相应的花园之间建立了强烈的视觉联系。超过2.9米宽的大推拉门加强了室内外之间流畅的空间关系。花园的其他三面都有围墙,形成一个约50平方米的天井。所有房屋都有个性化的户型设计。在销售过程中,为了适应个人的意愿和预算,在楼梯、卫生间、门、装修等方面给买家提供了不同的选择。
The glass facade towards the south creates a strong visual connection between the house and the corresponding garden. The fluent spatial relation between the inside and the outside is enhanced by big sliding doors of more than 2,9m width. The other three sides of the garden are walled and form a patio of about 50 square meters. All houses have individualized floor plans. In the course of the selling process different options were offered to the buyers regarding stairs, bathrooms, doors, finishing etc. in order to accomodate individual wishes and budgets.


砖的建筑。为了获得建筑的安静表达,其主要强调的是整个建筑的空间特征,砖似乎是一种准确的建筑材料。通过它的浅色(白色带点黄色),实现了最大限度的光反射,减少了密集居住区的视觉冲击。砖的使用方式,使得北立面优雅的垂直窗户周围不需要额外的金属包覆。
Architecture of brick. To obtain a quiet expression of a building, whose main emphasis lies in the spatial character of the entire ensemble, brick seemed to be an accurate building material. Through its light colour (white with a tint of yellow) a maximum of light reflection is achieved, which reduces the visual impact of the dense settlement. The bricks are used in a way that no additional metal cladding around the elegant vertical windows of the north facade is required.

这种砖型是与德国的一家砖厂合作专门开发的。保温砖砌体所需的伸缩缝,以及承重园墙与保温外墙非承重砖砌体之间的接缝的可视性要尽量减少。砖结构与带防晒玻璃的青铜阳极氧化铝窗和集成的灰色遮阳板相结合。其结果是一个温和的合奏,具有惊人的慷慨。其坚实而又轻盈的材料化让人想起20世纪中叶的古典住宅。
The brick type has been specially developed in collaborations with a German brick manufacturer. The visibility of the dilatation joints needed in the insulated brickwork, as well as the joints between the loadbearing garden walls and the non-loadbearing brickwork of the insulated facades, was to be minimized. The brickwork is combined with bronze-anodized aluminium windows with sun-protection glass and integrated greyish sunscreens. The result is a modest ensemble with a striking generosity. Its solid but at the same time light materialisation recalls classical mid-century housing estates from the 20th century.











建筑师:Atelier Kempe Thill
面积:2650平方米
年份:2018年
摄影:ULRICH SCHWARZ, BERLIN
制造商:Bega, FSB
设计团队:André Kempe, Oliver Thill, Jan Gerrit Wessels with: Laura Paschke, Martins Duselis, Ruud Smeelen, David van Eck, Andrius Raguotis, Valérie van de Velde
城市规划:BFAS, Amsterdam, Van Diest Ontwerp, Baarn
砖墙:Hagemeister Weimar, schijnvoegsteen custom made joint: Beamix
结构工程师:Goudstikker - de Vries Almere
分包商:Copal installatietechniek Haaren
城市:Arnhem
国家:荷兰
Architects: Atelier Kempe Thill
Area: 2650 m²
Year: 2018
Photographs: ULRICH SCHWARZ, BERLIN
Manufacturers: Bega, FSB
Design Team:André Kempe, Oliver Thill, Jan Gerrit Wessels with: Laura Paschke, Martins Duselis, Ruud Smeelen, David van Eck, Andrius Raguotis, Valérie van de Velde
Urban Planning:BFAS, Amsterdam, Van Diest Ontwerp, Baarn
Brick Facade :Hagemeister Weimar, schijnvoegsteen custom made joint: Beamix
Structural Engineer:Goudstikker – de Vries Almere
HVAC:nvt.
Subcontractor:Copal installatietechniek Haaren
City:Arnhem
Country:The Netherlands