该建筑是为位于Pozuelo(马德里)的Francisco de Vitoria大学设计的,包括一个体育中心和教室综合体。它包括使用体育馆、多功能厅、健身房、游泳池、物理治疗等。体育馆还可以作为一个大型的多功能区和会议厅使用,为一系列的大学活动提供便利。
Designed for the campus of the Francisco de Vitoria University in Pozuelo (Madrid), the building houses a sports center and classroom complex. It includes the use of sports halls, multi-purpose rooms, a gymnasium, swimming pool, physiotherapy, etc. The sports complex can also be used as a large multi-purpose area and meeting hall, facilitating a range of university activities.





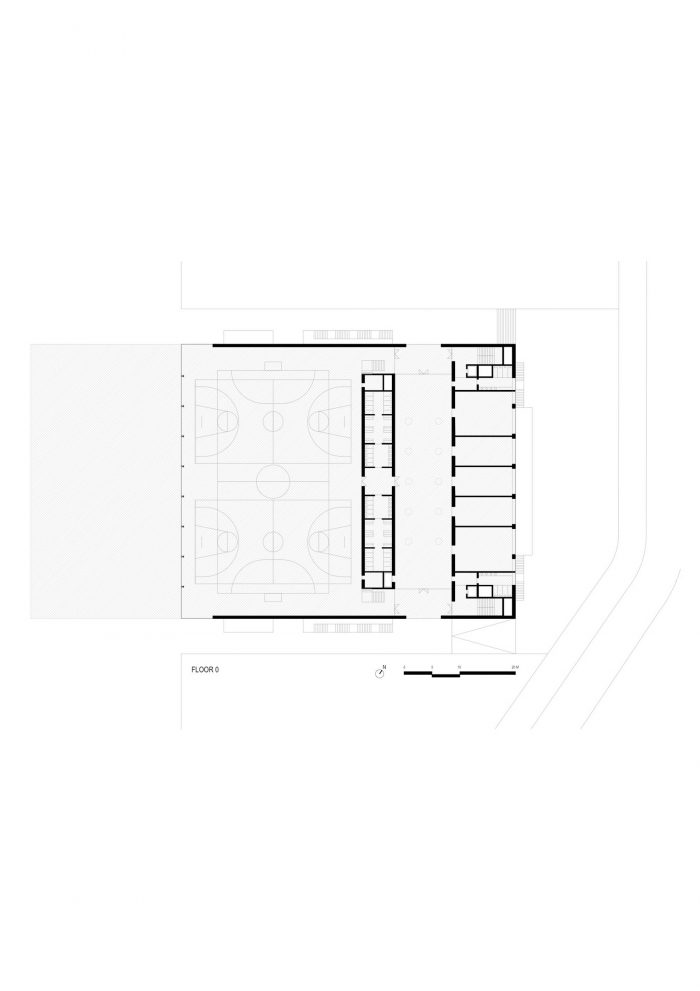
建筑物的设计在最大高度和排列方式上是克制的,并在体量上适应校园的总体布局。并打算在体量和立面材料方面明确区分体育和教学区。该项目的基本元素是一个大型的半透明光盒,60x50x12米,经过过滤和控制,与校园的主要广场进入一个空间关系。
The design of the building is restrained and volumetrically adapted to the general layout of the campus in terms of maximum height and alignment. And it is intended to clearly differentiate the sports and teaching areas in terms of volume and façade material. The fundamental element of the project is a large translucent box of light, 60x50x12m, filtered and controlled, entering into a spatial relationship with the main square of the campus.



两个干净、明确的盒子被一个低层建筑连接在一起,其屋顶成为一个相互连接的天井。
Two clean, well-defined boxes are joined together by a low-rise building whose roof becomes an inter-connecting patio.


体育馆的设计考虑到了轻盈性,采用GRC玻璃纤维强化混凝土,与更封闭的教室综合体和低矮的相互连接的建筑不同。在体育场馆的体量中,各面的朝向被赋予了不同的价值,因此,更多暴露在阳光下的南面斜面的外墙被封闭在GRC玻璃纤维增强混凝土的预制板中,而北面斜面的外墙则采用了半透明的玻璃。西南面的外墙有一个低矮的透明玻璃条,突出了与校园主广场的联系。这种透明机制在面向上层天井的东北部立面上得到了重复。因此,广场和体育场馆之间形成了一种视觉关系,而教室建筑群的西南立面则成为整个建筑群的背景。
The sports pavilion is designed with lightness in mind, in GRC glass fiber reinforced concrete, unlike the more closed classroom complex and low interconnecting building. In the volume of the sports complex the orientation of the various sides are valued differently, so that the facades of the southern dihedral, more exposed to sunlight, are enclosed in a prefabricated panel of GRC glass fiber reinforced concrete, while those of the northern dihedral are in translucent glass. The southwestern facade features a low strip of transparent glass highlighting the link with the main square of the campus. And this mechanism of transparency is repeated on the north eastern facade facing the upper patio. Thus a visual relationship is created between the square and the sports complex, while the southwestern façade of the classroom complex becomes a backdrop to the complex as a whole.

亭子的结构是钢制的:外墙上的柱子和梁的网格,以及解决屋顶大跨度的桁架。所有这些都涂成了白色。结构的其余部分是钢筋混凝土,其独特之处在于地下室游泳池区域的宽角梁。
The structure of the pavilion is in steel: a grid of pillars and beams on the facades and trusses to resolve the great roof span. All painted in white. The remainder of the structure is in reinforced concrete, with the unique feature of wide angled beams over the basement swimming-pool area.

其结果是一个非常清醒和正式的克制的建筑。
The result is a building of great sobriety and formal restraint.





















Architects: Alberto Campo Baeza
Area: 9000 m²
Year: 2017
Photographs: Javier Callejas
Manufacturers: BANDALUX, Ecophon
Collaborator Architects:Ignacio Aguirre López, Alejandro Cervilla García, María Pérez de Camino, Tommaso Campiotti, Miguel Ciria Hernández, Elena Jiménez Sánchez, Imanol Iparraguirre, María Moura
Structure:Andrés Rubio Morán
Installations:Úrculo Ingenieros
Quantity Surveyor:Francisco Melchor Gallego
Glass Facade Consultant:José Pablo Calvo
Project Manager:Francisco Navarro, María Lamela, Francisco Armesto
Constructor:Clásica Urbana; Jesús Díaz Poblaciones, Francisco Martínez Reche, Jorge Garriga, Mónica Grau
City:Pozuelo de Alarcón
Country:Spain