The Springhill的房子位于万隆的山坡上,是为凉爽的山区和潮湿的热带气候设计的住宅。场地本身是一个轮廓的钩子,形成一个小角落,夹在周围的两个邻居之间。该住宅计划作为一个退休住宅,由四个人包括他们的孩子居住。
Located in the upper hillside of Bandung, The Springhill's house is a residential designed for the cool mountainous region and humid tropical climate. The site itself is a contoured hook formed in a small corner pinched between its two surrounding neighbors. The residential is to be planned as a retirement house occupied by four people including their children.




完成的建筑采用了几乎对称的方形块的形状。因此,与它的动态曲线和轮廓的场地相比,它的形式也给人一种坚定和硬朗的感觉。放在侧面的巨大拉伸屋顶也为房屋的视觉语言增加了更多的大胆和阳刚之气。立面有两边的面孔,有不同的材质和颜色。西侧使用了灰色的预制现浇混凝土,并带有一点乌林木的棕色,来覆盖其表面。而北面则使用了简单的白色油漆墙,上面覆盖着由乌林木排成的第二层皮肤。看一下房子的边界围栏,它没有使用坚硬的材料,只是一个轮廓分明的花园,被大自然的柔软所覆盖,其形式是一排排的alang-alang草和小植物。植物的透明性和轻盈性正在突出房子的大胆形状。
The finished building took a shape of an almost symmetrical square block. Therefore, its form also gives a sense of firmness and stiffness compared to its dynamic curved and contoured site its placed. A massive stretched roof placed on the side also adds more boldness and masculinity to the visual language of the house. The facade has two sides of the face with different materiality and color. The west side uses a grey pre-casted in situ concrete with a little hint of the brown color from ulin wood to cover its face. While the north side uses a simple white painted wall covered by secondary skin made from lined up ulin wood. Looking at the boundary fence of the house it's not using a hard material, just a contoured garden that is covered by nature's softness in the form of alang-alang grass and small plants placed in a row. The transparency and lightness of the plants are highlighting the house's bold shape.


这座房子想要完全诚实地使用与自然相似的颜色和材料。这种形式和材料的最小化不仅仅是为了视觉上的舒适,也是为了适应热带气候的热舒适性和便于维护。它厚厚的混凝土外墙是为了最大限度地减少从建筑最热的一侧--西面的热量摄入。而在东面使用的第二层皮肤不仅是为了热舒适,也是为了保护内部用户的隐私而使用的半透明罩。西面的立面在中间被分割开来,创造了一个两个体块连接在一起的感觉,在中间形成一个开口,这将是主入口。当我们往里走的时候,主入口一开始可能看起来很小。再往里走,我们会被房子角落里的一个不大的绿色花园所欢迎。由于花园的空隙被放置,它与混凝土块形成了对比,并从外面的花园创造了一个连续的景观视野。它也在提供自由的空间,并从主要的起居室和用餐区失去视野,框住了花园的两边。光线和空气从空隙的两边进入,自然光和交叉通风发生了,构成了一个舒适房子的主要规则。
The house wants to be fully honest with color and materiality that resemblance nature. Such minimality of form and material isn't just for visual comfort but also contextual to the thermal comfort of tropical climates and for ease of maintenance. Its thick concrete facade is to minimize heat gain from the west, the hottest side of the building. While the use of secondary skin in the east is not just for thermal comfort but also a semi-transparent cover for the privacy of the user inside. The west facade is split in the middle creating a perception of two masses joined together forming an opening in the center that will be the main entrance. As we journeyed inside, the main entrance may seem small at first. Another step in, we are welcomed by a modest green garden in the corner of the house. As the garden void is placed, it contrasts the block of concrete and creates a continuous landscape view from the outside garden. It is also offering freedom of space and loss of vision from the main living and dining area, framing both sides of the garden. The light and air entered from both sides of the void, and natural light and cross ventilation happened, composing the main rules of a comfortable house.



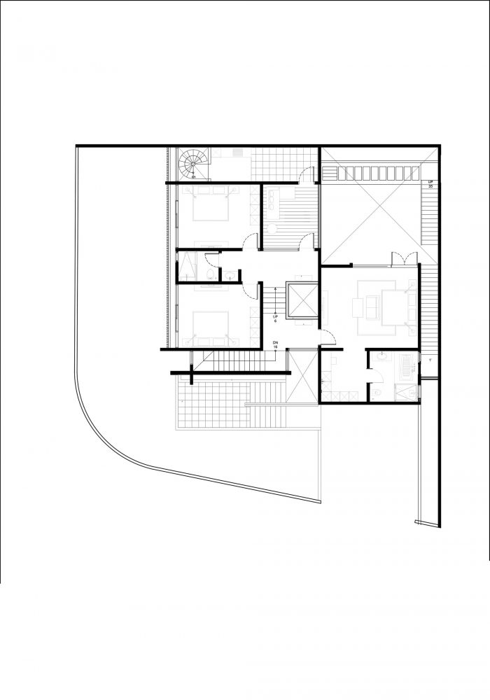
在睡眠区,里面有一个小的空隙,用于新鲜空气的通风,使顶部区域的空气流通。一个共享的休息阳台被放置在中间,为家庭提供了一个公共的休闲区,让他们聚集在一起放松。此外,它还为自然光和交叉通风创造了一个通道。主卧室被分隔在西侧。主卧室有一个小阳台,可以看到屋内花园的私人景观。此外,为了完全完成这个房子,在花园里放置了一个小钢梯,与主卧室相连,然后到屋顶花园。在那里,我们可以清楚地看到万隆的山坡和山脉提供的美丽景色。Springhill的房子是一个解决方案的组合,是对场地、气候、材料和形式之间实用主义的重新思考。毕竟,房子必须让住在里面的人感到舒适。
In the sleeping area, a small void is placed inside for fresh air to ventilate the top area. A shared lounge balcony is placed in the middle giving a communal hangout area for the family to gather and relax. Also, it creates a passage for natural light and cross ventilation. The master bedroom is separated on the west side. The master bedroom has a small balcony and a private view of the garden inside the house. In addition, to completely finish the house a tiny steel stair is placed in the garden linked to the master bedroom, then to the roof garden. There we can get a clear sight from the beautiful view of Bandung hillside and mountains offered. Springhill's house is a combination of solutions, a rethinking of the pragmatism between site, climate, materiality, and form. After all, a house must be comforting for the people that live inside.



















Architects: Pranala Associates
Area : 462 m²
Year : 2019
Photographs :KIE
Manufacturers : Hansgrohe, Duravit, MIWA, YKK Nexsta
Contractors : Bouw Atelier
Lighting Consultant : Lentera Art Lighting
Furniture : Kaii Living, VIKU
Principal Architect : Ronald Pallencaoe, Erick Laurentius, Darius Tanujoyo
Architect In Charge : Erick Laurentius, Chrystal Natalie
Copywriter : Garda Ady Yasa
City : Bandung
Country : Indonesia