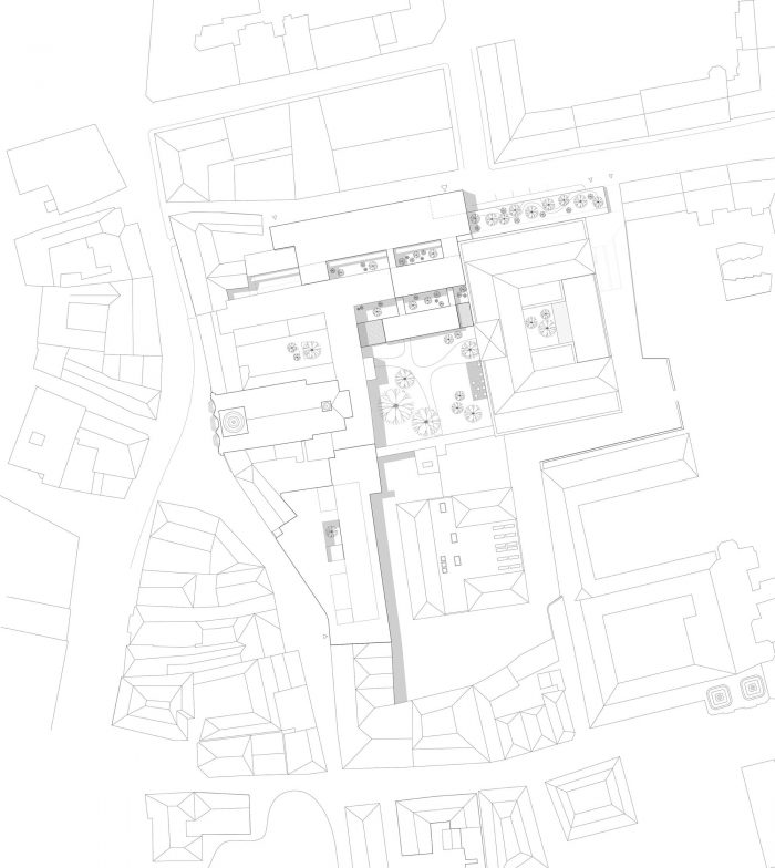
位于Eggenberg的圣约翰医院的解散及其被整合到位于格拉茨中心的Marschallgasse的新址,意味着除了对医院的构成进行修改之外,它还获得了一个新的外观,一个与历史悠久的老城区保持一致的外观。
The dissolution of the Hospital of St. John of God in Eggenberg and its integration into the new site in Marschallgasse in the center of Graz meant that in addition to a revision of the hospital’s composition, it also received a new appearance, one which keeps with the historic old town.



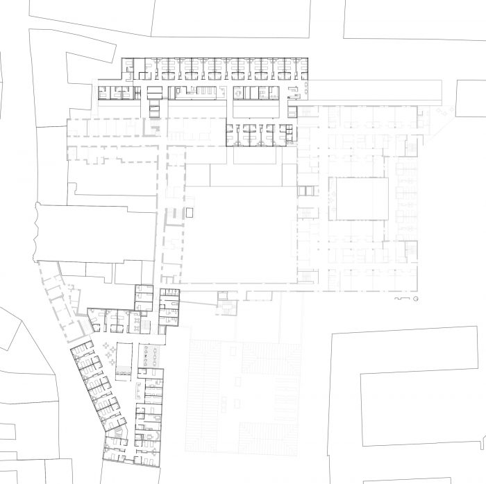
这些措施的特点是增加了两处大型设施。通过创建一个连贯、宽敞的内院,并将各种建筑元素连接成一个大的整体,从城市规划和建筑学的角度来看,原来不尽人意的情况得到了 "治愈"。院子被清理出来,一个线性的建筑结构被开发出来,以一种特定的、精确的方式与现有的建筑相联系。
The measures are characterized by two large additions. Through the creation of a coherent, spacious inner courtyard and the joining of the various building elements into one large whole, the original situation, which was unsatisfactory from an urban planning and architectural point of view, was “healed”. The courtyard was cleared and a linear building structure was developed that relates to the existing building in a specific, precise way.




结构和设计上有问题的元素被拆除,取而代之的是与新设计一致的特征。围绕庭院的结构和功能的环形封闭现在由一个新的建筑来实现,它被仔细地整合到周围环境中。平屋顶被设计成屋顶花园等,并作为病人和工作人员逗留和放松的地方。
Structurally and design-wise questionable elements were demolished and replaced by characteristics that are consistent with the new design. The structural and functional ring closure around the courtyard is now achieved by a new building that is carefully integrated into the surroundings. Flat roofs were designed as roof gardens, among other things, and serve as places for patients and staff to linger and relax.

外墙是根据数学原理用网格和浮雕来调制的。这导致了表面和线条的谨慎、生动的相互作用,以及由一层楼高的白色预制混凝土元素组成的雕塑般的立面设计,俏皮地拾起并延续了历史悠久的老城区的立面形象。
The facade was modulated according to a mathematical principle with grids and reliefs. This resulted in a discreet, lively interplay of surfaces and lines and a sculptural façade design of storey-high, white prefabricated concrete elements that playfully picks up and continues the facade image of the historic old town.













Architects: Dietger Wissounig Architekten
Area : 25100 m²
Year : 2021
Photographs :David Schreyer, Paul Ott
Lead Architects : Arch. DI Dietger Wissounig, Arch. DI Reinhold Tinchon
Landscape Designer : Studio Boden
Electrical Engineering : Friebe & Korp
Building Physics : Vatter ZT GmbH
Local Construction Supervision : DI Markus Weiner ZT GmbH
Renovated Area : 8.600 m²
New Built Area : 16.500 m²
Medical Technology : LIMET Consulting und Planung für Medizintechnik
Fire Protection : Norbert Rabl Ziviltechniker GmbH
Building Technology : Lang GmbH
Statics : Eisner ZT GmbH
City : Graz
Country : Austria