问题和主要想法 - 在我们发现该地块面积很小,位于拥挤的城市空间,并将用于商业建筑后。我们怀疑,在我们的项目中,使用单层或双层概念的普通类型宿舍是否是土地有效性的最佳设计?
Issue and Main idea - After we found out that the site has such a small area, located in crowded urban space and will be used for commercial building. We are doubt, is the common typology dorm by using single or double loaded concept are the best design for land effectiveness in our project?



我们做了一项研究,比较了一般的双层走廊概念和我们的概念,结果显示,普通概念并不比我们提供的更有效。
We did a study to compare the general double-loaded corridor concept with our concept and the result showed that the common concept is not more effective than what we offer.



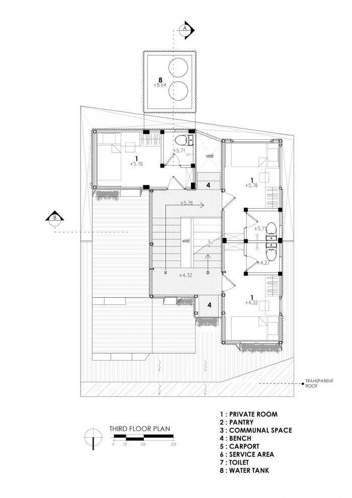
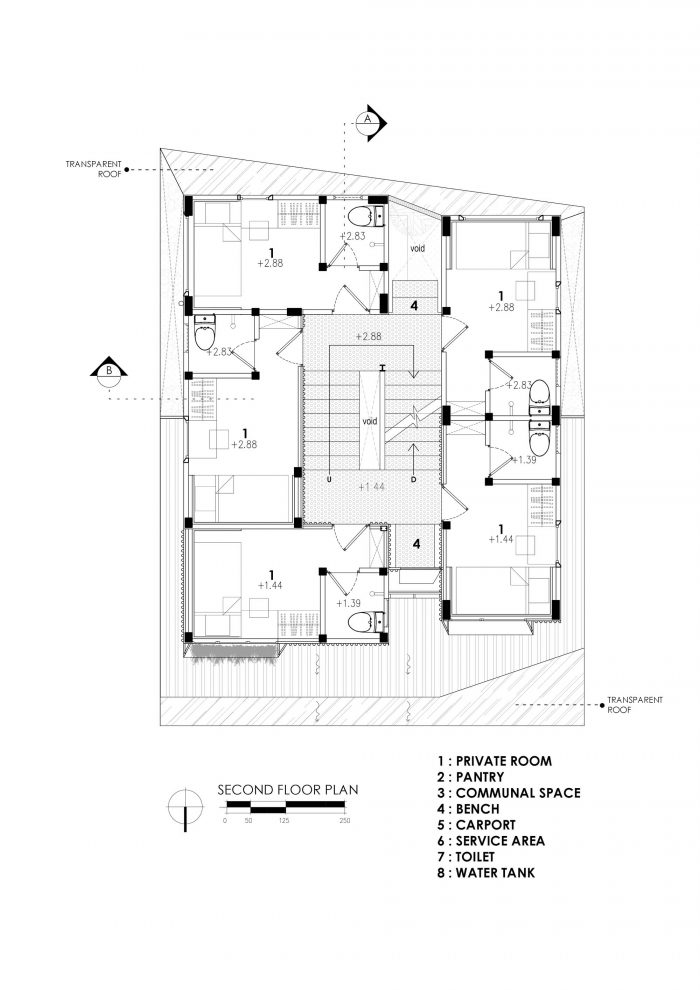
接管过去作为单位面积的人流的走廊区域是我们的第一个想法。这个想法使楼梯成为每个单元之间唯一的水平和垂直循环。同时,楼梯可以成为居民的社交空间。因此,在单位总数完全相同的情况下,我们所提供的概念比普通的双层概念给予更少的建筑面积。这证明了我们的概念对土地的有效性更为有效。与其他宿舍设计类型相比,这种循环系统成为另一种建筑声明。为了使这一声明更加有力,我们使用了红色的外墙。这是因为红色是最强烈的颜色,其波长为630-760纳米,这使得红色能立即抓住人们的眼睛。
Taking over the corridor area that used to be human circulation for the unit area is our first idea. This idea makes the stair become the only one horizontal and also vertical circulation between every unit. Also, the stairs could be a social space for the residents. So, with the exact same total of units, the concept we offer giving more less floor space area than the common double-loaded concept. It proves that our concept is more effective for land effectiveness. This circulation system becomes another architecture statement than the other dormitory design typology. To make this statement stronger, we used red colour for the façade. It is because red is the most intense colour and its wavelength are 630 – 760 nm, that making red colour instantly grab people’s eyes.

体量和被动设计策略--功能和位置是住宅区之间的多居所,这成为建筑形式的想法,我们希望这个建筑成像一个累积的堆叠的房子。我们通过主通道形成的堆积体来实现这一形象,这种实现形成了一个分层的空间。然后,跟随每个单元的网格下方的零散的倾斜屋顶使这个形象更加强烈。这些屋顶下的空间将被用作夹层,以便在未来扩大单元的房间。
Massing & Passive Design Strategies - The function and location which is a multi-dwelling between residential areas become the idea for the building form, we want this building imaging a cumulative stacked house. We implement this image through the stacked mass formed by the main circulation, this implementation formed a split-level space. Then, the fragmented sloping roof that follows each unit’s grid below makes the image stronger. The space under those roofs will be used as a mezzanine to expand the unit’s room in the future.



同时,带有零散屋顶的堆积体成为对热带气候的另一种回应,可能会有更多的空气流通到建筑内部。另一个策略是在建筑群的每一侧都有一个后退的距离,这样建筑群就不会与周围的其他建筑粘连在一起,也就形成了一个空隙。先导体的空隙与中间绿地的空隙相连,中间绿地也是一个楼梯和场地背面的绿色空间。这两个区域被放置在每个单元之间,成为空气和阳光的来源,通过穿孔的脚步,空气和光线可以从领航体和天窗穿透,达到最大化。引导体形成的空隙成为居民的支持区域,如停车区、公共空间、储藏室和洗衣区。
At the same time, stacked masses with fragmented roofs become another response for the tropical climate that potentially having more air circulation to the inside of the building. Another strategy is making a setback distance on every side of the mass so the mass won’t adhere to the other building around and it also formed a void. The emptiness of the pilotis mass connects to the void in the middle green space that also a staircase and green space on the back of the site. These 2 areas were placed between every unit and it became a source of air and sunlight, it maximized by the perforated footstep that air and light can be pass-through from the pilotis mass and skylight. The empty space formed by pilotis mass become some support area for the resident such as parking area, communal space, pantry and laundry area.


细节和材料 - 楼梯是通往单元的唯一通道,由钢和铁的悬空结构设计而成,具有雕塑感。它显示了一个悬空的楼梯系统结构,为居民提供了一个标志性的和令人难忘的体验。楼梯脚下的钢制穿孔平面使来自天窗的光线和它的影子可以穿过,并突出了裸露的砖和红色金属墙之间的组合纹理,使房间的特点更加强烈,并延续了外部设计。
Details & Material - The stair is the only one access to the unit, sculpturally designed by a suspended structure using steel and iron. It shows a hanging stair system structure that gives an iconic and memorable experience for the residents. Steel perforated flat on the stair’s footstep makes the light from the skylight and its shadows can move through and highlighting the combined texture between exposed brick and red metal wall and make stronger the room characteristic that continues with exterior design.

这个建筑,基本上在最高层有一个轻型结构,没有任何来自上面的负载。这个系统用来使他们的结构更加有效。我们在最高层的墙壁上使用了通常使用钢架的屋顶材料,与此同时,在底层,我们使用混凝土作为地板,并在墙壁上使用裸露的砖块。这些裸露的材料可以最大限度地减少建筑的维护,所以它不需要被重新粉刷。颜色的变化会随着时间和气候的变化而自然发生,从而达到长期的效果。
This building, basically have a light structure on the highest floor that doesn’t have any loaded from above. This system uses to make them more effective structure. We use a roofing material that usually uses a steel frame for the wall on the highest floor, meanwhile, on the ground floor, we use concreates for the floor and exposed brick for the wall. Those exposed materials could minimize maintenance of the building so it doesn’t need to be repaint. Colour changes will happen naturally over time and climate for the long-term effectiveness.


























Architects: Ismail Solehudin Architecture
Area: 178 m²
Year: 2021
Photographs: Mario Wibowo
Manufacturers: Nippon Paint, Boss, Mortar Utama, Philips, Rucika
Lead Architect: Ismail Solehudin
Contractor: Wani Build
Assistant Designer:Jamilah Uswah
Project Manager:Ali Yazid Bustomi
Site Manager:Zaini Tamrin
Structure Engineers:Setyadi Muztaba
Architects:Ismail Solehudin Architecture
City:Bogor
Country:Indonesia