Andre Kong工作室通过挤压一系列阶梯状的砖块体量,扩建了伦敦东南部的维多利亚式排屋,其中有一个新的卧室、书房和浴室。这个项目是在这个家庭搬迁后的两个重大变化中产生的:另一个孩子的到来和一个长期在家工作的转变。突然间,这个家庭的房子变得越来越大,需要更多的空间,需要一个避开忙碌的青年家庭的避难所。
Andre Kong Studio has extended a Victorian terraced house in southeast London by extruding a series of stepped brick volumes hosting a new bedroom, study, and bathroom. The brief emerged out of two significant post-lockdown changes for the family: the arrival of another child and a shift to permanently working from home. Suddenly the family was outgrowing their house and needed more space and a refuge from the rest of the busy youth-filled household.



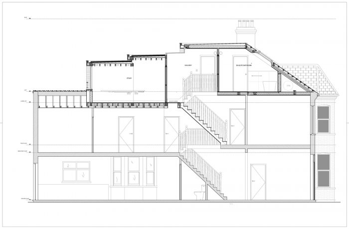
与房子的原始规划相呼应,该建筑的体量遵循L型,打破了原本庞大的体量。这是通过像望远镜一样向下延伸的体量来实现的,这些体量相互拉开,为充满光线的房间衔接了天窗。支腿的灰色砖颊与屋顶的颜色相融合,遵循同样的阶梯逻辑,创造出一种锥形和纹理的效果。阶梯式砖块的尺寸确定了形式。材料的尺寸也告知了较轻的砖门的规模和比例,每个较小的体量都是从这些砖门中引出的。
Echoing the original plan of the house, the massing follows its L-shape, breaking down an otherwise imposing mass. This is achieved with volumes that step down like a telescope, pulling out of each other, articulating clerestories for light-filled rooms. The grey brick cheeks of the outrigger, which blend with the roof color, follow the same stepping logic, creating a tapered and textured effect. The sizes of the stepping brickwork define the form. The dimensions of the materials also inform the scale and proportion of the lighter brick portals from which each smaller volume is drawn out.

与其使用全砖,不如使用砖头,因为砖头很重,而且需要对现有的房子进行不可持续和昂贵的钢结构升级,Andre Kong工作室选择在较轻的绝缘木材结构上使用砖头滑块,以创造相同的效果,同时在相同厚度的墙壁上实现更好的热性能。现有的屋顶瓦片被保留并重新使用以减少浪费。
Instead of using full bricks, which would have been heavy and would have required unsustainable and costly structural steel upgrades to the existing house, andre kong studio opted to use brick slips on a lighter insulated timber structure to create the same effect whilst also achieving better thermal performance for the same thickness of the wall. The existing roof tiles were retained and re-used to minimize wastage.

充满光线的室内以天然材料为特色,如天然木材和石材、裸露的木材椽子和原有的砖墙,庆祝烟囱的阶梯式砖砌结构,以加强内部和外部、旧和新之间的关系。
The light-filled interiors feature natural materials such as natural wood and stone, exposed timber rafters, and the original brick walls, celebrating the stepping brickwork of the chimney stacks to reinforce a relationship between the inside and outside, between old and new.


"英国的阁楼扩建工程传统上以屋顶瓦片为特色,与现有的屋顶相融合。在阶梯式阁楼中,我们希望以一种更现代的方式来强调这个新楼层的存在,同时仍然要与现有房屋的颜色和材料相协调。自然的选择是使用砖,选择了两种颜色,一种是深灰色,与现有的混凝土板砖相融合,另一种是较浅的伦敦砖,以补充现有的砖块。"
“Loft extensions in the UK traditionally feature roof tiles on their sides, to blend with the existing roofs. In Stepped Loft we wanted to assert this new level's presence, in a more contemporary way, while still being sympathetic to the colors and materials of the existing house. The natural choice was to use brick, choosing two colors, one dark grey, to blend with the existing concrete pantiles, and the other, a lighter London stock brick to complement the existing brickwork.”


andre kong工作室探索如何将材料传统、环境和技术创新意外地结合起来,为可持续的建筑、物品和体验找到新的、有趣的、优雅的解决方案。工作室在不同的规模和项目中,通过连接设计学科的探究性和迭代性构思的彻底过程,以独特的方式处理每个简报。
andre kong studio explores how material tradition, context, and technological innovation can be unexpectedly combined to find new, fun, and elegant solutions for sustainable buildings, objects, and experiences. Working across scales and programs, the studio approaches each brief in a unique way through a thorough process of inquisitive and iterative ideation bridging design disciplines.









Architects: andre kong studio
Area : 70 m²
Year : 2022
Photographs :Luke O’Donovan
Manufacturers : Crosswater, Zangra, Kite Flooring, The Brick Tile Co
Structural Engineering Company : Blue Engineering
Contractor / Builders : Optimal Developments
Project Architect : Andre Kong
Photography : Luke O'Donovan
Party Wall Surveyor : John Rowan and Partners
City : London
Country : United Kingdom