新图书馆位于多塞特郡被列为二级保护建筑的斯坦布里奇磨坊农场内的一组附属建筑中。主屋是由乔治亚风格的农舍改造而成,下面有一条浅浅的河流,流经一个保存完好的水磨。图书馆建筑原本是一个牛棚,但四十多年来一直用于储存农场机械和花园维护设备。
The new library is set in a group of outbuildings within the curtilage of the Grade II listed Stanbridge Mill Farm in Dorset. The main house is a beautifully converted Georgian farmhouse with a shallow river running beneath to turn a well-preserved water mill. The library building was originally a cow shed but had been used for the storage of farm machinery and garden maintenance equipment for over forty years.




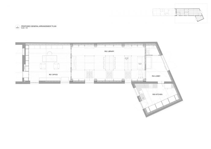
克劳肖建筑事务所被要求设计一个雄心勃勃的改造方案,将这个不受喜爱的外围建筑改造成一个美妙的地方,吸引人们经常使用,并将以前狭窄、光线不足的农场建筑作为图书馆和办公室使用,特别是用来存放私人藏书,包括一部分有关帕拉迪奥建筑的历史书籍。虽然需要对内部进行决定性的改造,但我们认为该建筑的原始用途需要成为故事的一部分。高大的中殿和一对过道采用了古典图书馆的形式,但在原建筑的登记册上,使用了传统农场木匠和金属制品的材料和建筑技术--使新旧用途之间有了一定程度的相似性。
Crawshaw Architects were asked to design an ambitious conversion that would transform this un-loved out-building into somewhere fabulous that would attract frequent use and bring the previously narrow, poorly-lit farm building into service as a library and office, not least to house a private collection of books, including a section of historic books on Palladian architecture. While a decisive transformation of the interior was called for, we felt that the original use of the building needed to be part of the story. The high nave and pair of aisles are in the form of a classical library but are set out in the register of the original building using the materials and construction techniques of traditional farm carpentry and metal-work- making possible a degree of analogy between the old and the new uses.



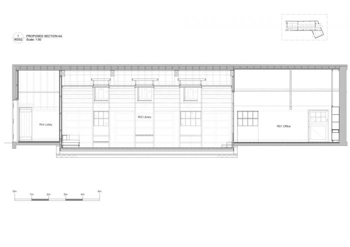
结构上的干预仅限于拆除两个原来的木质桁架,用层压木质门框代替,以稳定外墙,并为桶状拱顶的中殿让路。三个新的保护风格的屋顶灯打断了拱顶,为书架提供自然光。图书馆的地板已被人工挖出一部分,并降低了两英尺。
The structural interventions are limited to the removal of two of the original wooden trusses which have been replaced with laminated wooden portal frames in order to stabilize the external walls and to make way for the barrel-vaulted nave. Three new conservation-style roof lights interrupt the vault to provide natural light to the book-stacks. The floor in the library has been partially dug out by hand and lowered by two feet.

拱顶、柱子、书架、桌子和座位都是由相同的实心橡木板和型材制成的,特意选择了显示树节和自然瑕疵的材料,并使用简单的传统套筒式木匠工艺进行组装。新的内部门窗与现有的黑色钢架外窗相匹配。所有的固定装置都是现代的,但与原来的铁框架和固定装置密切相关。
The vault, columns, shelves, tables, and seating are made of the same solid oak planks and sections, deliberately selected to show knots and natural blemishes, and assembled using simple traditional socketed carpentry. The new internal doors and windows match the existing black steel-framed external windows. All the fittings are contemporary but closely related to the original iron frames and fixings.


对现有外壳的重新利用,使用木质结构干预和天然绝缘材料,使这个项目具有高度的可持续性。
The re-purposing of the existing shell using a wooden structural intervention and natural insulation materials combine to make this project highly sustainable.
































Architects: Crawshaw Architects
Year: 2021
Photographs: Ingrid Rasmussen
Manufacturers: Crittall, The Rooflight Company, Caeser Stone, David Chipperfield, Kuber, Space Copenhagen, Tornado
Structural Engineering: Hardman Engineers
Construction Firm: Cando Constructions
Architect:Pandora Dourmisi
City:Wimborne
Country:United Kingdom