我们的标准就是你的品味。"斯特德咖啡 - 由于大流行病导致旅行变得困难,欧洲古典风格在最近的室内潮流中享受其全盛时期,因为人们越来越难体验欧洲古典的室内设计。
‘Our standard is your taste.’ sted coffee - As travel becomes difficult due to the pandemic, European classical style enjoys its heyday in the recent interior trend, because it gets harder for people to experience European classical interior designs.





客户在大邱的一个叫Yangnyeongsi的老城区租到了一栋楼。原因是该建筑的外观有一种古典的气息,就像欧洲的老建筑一样。在设计位于大邱市中心东城路的 "sted coffee "时,我们希望为这个新诞生的空间增加别致性,包括客户希望的一维古典风格。
The client got a lease on a building in an old town called Yangnyeongsi in Daegu. The reason is that the exterior of the building has a classical vibe just like the old European buildings. In designing “sted coffee” located in Dongseong-ro, the center of Daegu, we wanted to add chicness to the newly born space, including the one-dimensional classical style that the client wanted.

我们在长条形吧台的上部安装了明亮的壁炉,使其表现出欧式风格的造型,一楼是我们提出的这种不同寻常的风格,将作为一个配对系统来运作,提供与咖啡师直接冲泡的特色咖啡相配的甜点。
We installed a bright barrisol on the upper part of the long bar so that it expresses a European-style molding, and the first floor, where we proposed this unusual style, will be operated as a pairing system that provides desserts that go well with the specialty coffee brewed directly by the barista.

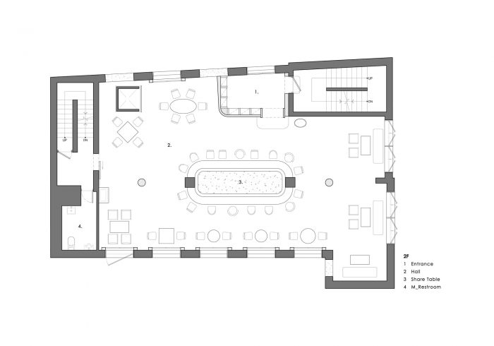
二楼的设计重点是品尝咖啡,把一楼的咖啡拿来,创造一个舒适的欧式氛围。此外,我们在梨泰院(首尔一个受欢迎的国际区)的一家古董店购买了家具,通过添加现代金属使其成为一种别致的风格,使其具有功能性和耐久性。有了这些家具,我们能够创造一个 “古典"(古典+别致)的空间,让那些喜欢坐在由欧洲古典街道的别致艺术家设计的物品上的顾客能够有一个有趣的体验。
The second floor was designed to focus on tasting coffee by bringing the coffee from the first floor and creating a comfortable European-style atmosphere. In addition, we purchased furniture at a vintage shop in Itaewon(a popular international district in Seoul) to turn it into a chic style by adding modern metals to be functional and durable. With this furniture, we were able to create a “Classical”(Classical + Chic) space so that customers, who enjoy sitting on objects designed by chic artists from a classical European street, can have a fun experience.



























Architects: design by 83
Area : 306 m²
Year : 2022
Photographs :Donggyu Kim
Design : Minsuk Kim, Donghyun Nam, Chanun Park
Design Team : Suhyun Jo, Hansol Jo
Construction : Sehyun Lee
Furniture : design by 83, Chanun Park x Tt, Byungmin Bae
Branding : hypt design
City : Jung-gu
Country : South Korea