亲爱的A,
从昨天开始,我们就可以俯瞰这座城市。
景色令人叹为观止。宁静的夜色和柔和的灯光,预示着一个璀璨的未来。在远处,我们感知到神话般的屋顶,仰面躺在空中的小腿,大都市的宁静,以及已经看到的新世界的象征。但我不会在这里用长篇大论的描述来烦扰你。在我们之间,没有人会看无聊的描述到最后。不管怎么样,这次的到来是一个新的开始。我们离开了眼前的、令人疲惫的现实。我们把重力、惯性和日常的不透明抛在脑后。
这就是我们要停留的地方。
我们在锌山之巅的这艘玻璃船里找到了一个不可改变的避难所。别处从这里开始。我们从我们的观景台想到了你。有时,我们喜欢想象你出现在这个我们无法停止沉思的风景中。明天我们会给你写信,了解更多细节。至于离开城市的事,我们不再去想了。
Dear A,
Since yesterday we overlook the city.
The view is breathtaking. The calm night and its soft lights predict a radiant future. In the distance we perceive mythical roofs, lying on their backs with their little legs in the air, the metropolitan tranquility, and the symbol of an already seen new world. But I am not going to bore you here with a long description. Between us, nobody reads boring descriptions until the end. Whatever, this arrival is a new beginning. We left the immediate and exhausting reality. We left gravity, inertia, and daily opacity behind us.
This is where we will stay.
We found an unalterable sanctuary in this glass ship at the top of the zinc mountain. The elsewhere starts here. We think of you from our viewing point. Sometimes we like to imagine that you appear in this landscape we cannot stop contemplating. We will write you tomorrow for more details. As for leaving the city, we do not think about it anymore.



狭隘与宽厚
在典型的巴黎(和郊区)环境中开发住宅建筑,意味着要与巴黎的密度相关的特殊限制进行谈判。其目的是利用这些规则,提供一个受欢迎的和创新的国内建筑形象。这是关于处理项目的情况。这意味着有很多优势(两条街道之间的交叉地块,一整层的高度差),而不是不便(地块的狭窄,令人印象深刻的相邻建筑)。
特别是,最近的邻居的建筑,(70年代的大型高层建筑和90年代末Frédéric Borel的建筑)带来了强烈的建筑体积感。它们是强大的,但也是相当自闭的建筑,其中的对话或一种类型的连续性似乎很难解决。总而言之,这种背景下的建筑正在乞求一种新的城市奇异性,它将在同一时间充分探索城市的可能性,并作为一种强大但不同于其邻居的建筑而存在。
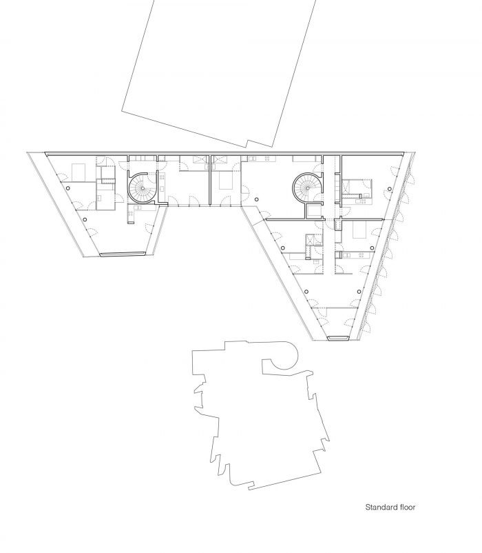
受制于密度和效率的问题,项目的轮廓完全被街道的最小距离规则所限定。因此,两个垂直的棱柱构成了主要的几何形状,由一个较薄的中央建筑连接起来,面向花园和光线(由于从街道后退6米)。
建筑的高度由街道的最小距离规则决定。R+4 rue des Pavillons, R+7 rue Pelleport. 地面的一级差甚至夸大了高度的差异,从院子里看,似乎又增加了一个层次。这些房屋都有共同的原则,在几种类型上都有所下降。除了工作室之外,它们都有双重方向,有宽敞的外部空间--露台和凉亭。他们让光线进入,主要是东/西向。该项目在体量上的零散性使其具有多种类型,每种类型都有自己的特点和与环境的关系。
Narrowness versus generosity
To develop a housing building in a typical Parisian (and suburban) context, means to negotiate with particular constraints, linked with the Parisian density. The aim is to take advantage of those rules to offer a welcoming and innovative image of domestic architecture. It is about dealing with the situation of the project. It means as many advantages (a crossed over plot between two streets, a difference of height of one full level) than inconveniences (narrowness of the plot, impressive adjoining buildings).
Particularly, the architecture of the closest neighbors, (a large 70’s high rise building and the late 90’s building from Frédéric Borel) imposes strong architectural volumetry. They are strong but also rather autarkic architectures, with which the dialogue or a type of continuity seem hard to settle. All in all, this context is begging for a new urban singularity, which will in the same time fully explore the urban possibilities and stand as a strong but different kind of architecture than its neighbors.
Restrained by questions of density and efficiency, the project’s profile is entirely defined by the street’s minimum distance rules. As a result, two vertical prisms compose the main geometry, linked by a thinner central building orientated toward the garden and the light (thanks to a six meters step back from the street).
The heights of the building are defined by the street’s minimal distance rules: R+4 rue des Pavillons, R+7 rue Pelleport. The difference of height is even exaggerated by the one level difference of ground, which seems to add another level when seen from the courtyard. The housings are sharing common principles, declined in several typologies. Besides the studios, they all have double orientations, with generous exterior spaces – terraces and loggias –. They let the light in, with a mainly east/west orientation. The volumetric fragmentation of the project allows a large variety of typologies, in each case with its own particularities and relations with its environment.


从Rue des Pavillons可以看到,但在街区中心的宁静中,花园是一个安静的空间。整个底层是一个宽敞的自由空间,为居民提供了一个绿色区域。时而带屋顶,时而开天窗,成为庭院、花园、自行车库和游乐场。
为了保持私密性和防止阳光照射,项目提供了过滤器,用三种材料开发。天然阳极氧化铝,织物和玻璃。立面对阴影和光线的游戏作出反应,成为一种抽象的质感,根据其用途而局部变化。
这个项目在其异质背景下的最后一个强有力的形象是证明了舒适性和表现力可以在一个几乎是间歇性的地块中表达出来,它不能再注定是狭窄的。
Visible from the rue des Pavillons but in the tranquility of the heart of the block, the garden is a quiet space. The whole ground floor is a generous free space for the inhabitants, with a green area. Sometimes with a roof, sometimes opened on the sky, it becomes courtyard, garden, bike garage, and playground.
In order to preserve intimacy and to protect against sunshine, the project is provided with filters, developed in three materials: Natural anodized aluminum, fabric and glass. The façade reacting to a game of shadows and light becomes an abstract texture, locally changing according to its uses.
A last strong image for this project in its heterogeneous context would be the demonstration that comfort and expressiveness can be expressed even in an almost interstitial plot, which can not anymore be doomed to narrowness.
















建筑师:BRUTHER
年份:2017年
摄影: JULIEN HOURCADE, MAXIME DELVAUX, JESÚS GRANADA
城市:巴黎
国家:法国
Architects: BRUTHER
Year: 2017
Photographs: JULIEN HOURCADE, MAXIME DELVAUX, JESÚS GRANADA
City: PARIS
Country: FRANCE