这个新的摄影工作室本身就是一个传播和创造的地方,也是一个生活的地方。为了将照顾孩子的日常礼仪与复杂的工作日程相结合,很大一部分空间是为业主和合作者的孩子准备的。
This new photography studio is a place of diffusion and creation as well as a place of life in its own right. For the sake of integrating the daily rituals of child care to the complex schedules of work, a large part of the space is dedicated to the children of the owners and the collaborators.




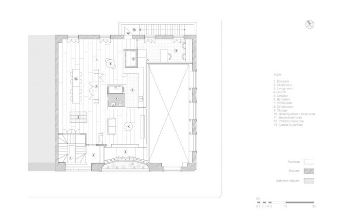
原有的空间已经被完全重组,以创造一个开放和多功能的空间。在开口处添加百叶窗,可以根据一个既简单又美观的装置来调节自然光,这是摄影师的工作所固有的。
The original space has been completely restructured to create an open and versatile space. The addition of shutters to the openings allows to modulate the natural light, inherent to the work of the photographer, according to a device both simple and aesthetic.

空间被植入的 "物体-空间 "分割开来,重新配置了填充物和空隙,在相对较小的空间规模上提供了不寻常的视觉突破。
The space is fragmented by the implantation of "objects-places" which reconfigure the fills and the voids to offer unusual visual breakthroughs with regard to the relatively modest scale of the places.






Architects: Alain Carle Architecte
Area : 140 m²
Year : 2016
Photographs :Adrien Williams
Manufacturers : Artemide, Dinesen, HAY
Structural Engineer : Zarrabi & Associés
Contractor : Domra Construction
Conception Team : Isaniel Levesque
Wood Flooring : Dinesen
Millwork : Clef de Voûte
Shutters : Industries La Belle
City : Montreal
Country : Canada